
Comentariul autorului:
Amplasată în zona limitrofă a orașului, în vecinătatea unei dezvoltări imobiliare de case individuale, terenuri în proces de conversie de la țesut rural tradițional (cu destinație agricolă) către una rezidențială, Casa H se conturează ca o reacție rațională și sensibilă la contextul existent. Beneficiarul și-a dorit o casă simplă, discretă, dar funcțională, destinată spațiului familial, ce evocă arhetipul de casă cu șarpantă în două ape, reinterpretându-l în cheie contemporană.
Amplasament și context
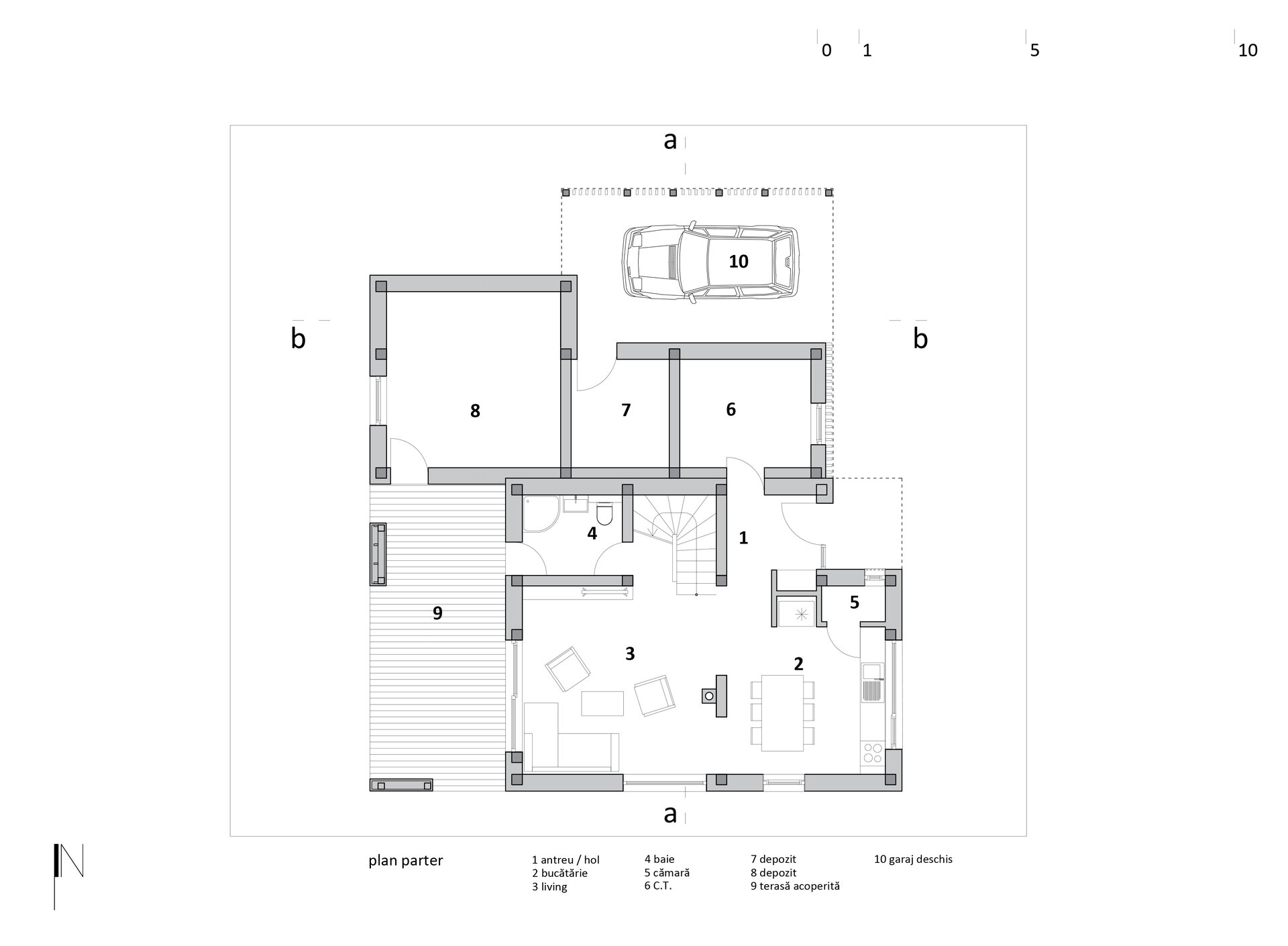
Amplasarea volumului principal răspunde orientărilor optime pentru iluminare naturală și protecție vizuală, dar și reglementărilor de retragere de pe frontul stradal. Corpul anexă — o extensie parter simplă, pe structură ușoară — servește ca depozit, spațiu tehnic, carport și, nu în ultimul rând, atelier / sală de repetiții sau studio muzical— element distinctiv ce reflectă interesele și nevoile beneficiarului.
Concept volumetric și organizare funcțională
Volumul casei păstrează forma arhetipală: un paralelogram cu acoperiș în două ape, o formă clară, familiară, dar eficientă. În contrast, anexa parter, cu structură ușoară din lemn, se plasează lateral, evanescent, pentru a păstra simplitatea volumului principal, dar oferind suplimentar funcțiuni utile. Această stratificare între volum dominant și extensie secundară subliniază intenția de a echilibra austeritatea formală cu nevoia contemporană de spații flexibile.
Raportul cu exteriorul și peisajul
Fațada principală este tratată cu decență: goluri moderate, proporționate, o expresie controlată către stradă, respectând intimitatea. În spate, deschiderea către curte este mai generoasă, facilitând integrarea activităților ludice și sociale. Deschiderea atelierului de repetiție, orientată spre grădină și terasă, rezonează cu ideea de fluiditate între interior și exterior.
Soluții constructive și materiale
S-a ales un limbaj material simplu: finisaj neutru de tencuială albă pentru corpul principal, în armonie cu zona rural-urbană. Extensia parter are finisaje mai calde, placaj din șipci verticale de lemn, sugerând ușurință și adaptabilitate. Structura principală este tradițională — zidărie cu sâmburi de beton + șarpantă lemn — iar cea auxiliară ușoară, pentru montaj rapid și eficient. Astfel, costurile și complexitatea sunt controlate.
Aspecte tehnice și funcționale
Sunt prezente elemente de eficiență energetică: orientarea atentă, izolație corespunzătoare, ferestre eficiente, cu dimensiuni controlate în funcție de orientare și perspective, încălzire eficientă în pardoseală cu pompă de căldură.
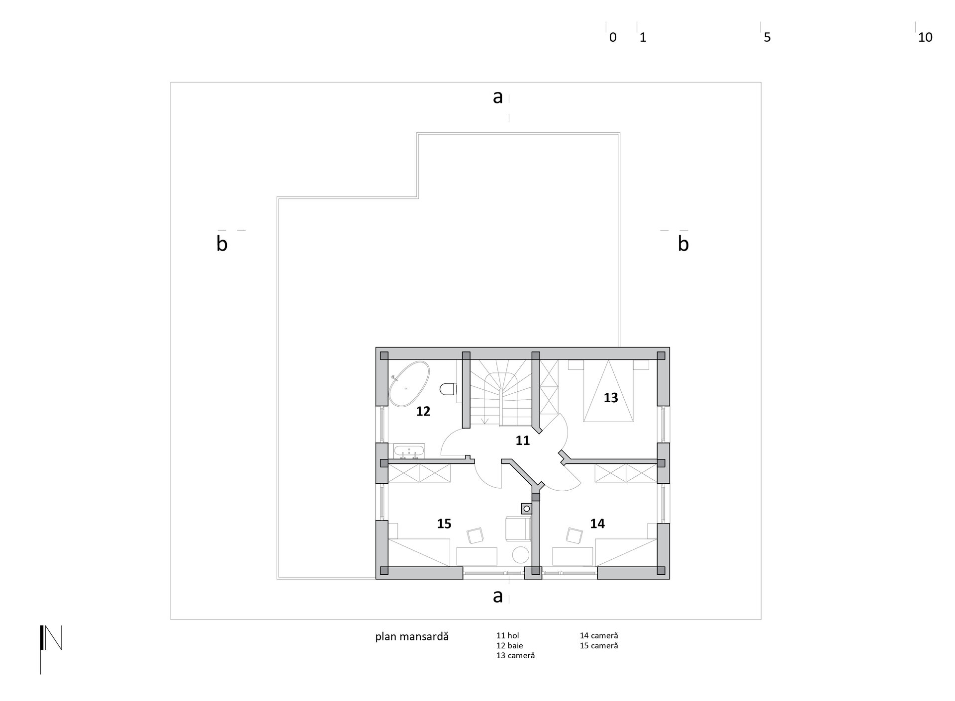
Experiența de locuire
Interiorul este intim, cu spații bine conturate pentru funcțiuni de zi și noapte. Livingul este poziționat spre grădină, în contact cu sala de muzică, creând o ambianță familială deschisă, dar protejată. Circulațiile sunt eficiente, iar atașarea spațiilor anexe crește confortul, fără a compromite simplitatea formală.
Volumul arhetipal al casei, combinat cu extensia funcțională ușoară, oferă un echilibru între continuitate și adaptare, între intimitate și deschidere. Aici, designul este minimalist nu din austeritate, ci din respect pentru context, familie și meșteșug. Este o casă eficientă, lucidă, adaptată vremurilor — un manifest al simplității locuirii responsabile.