
Comentariul autorului:
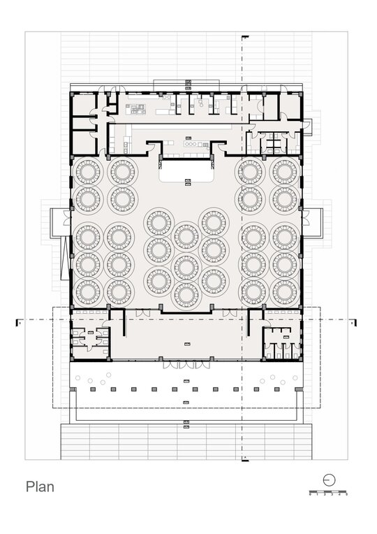
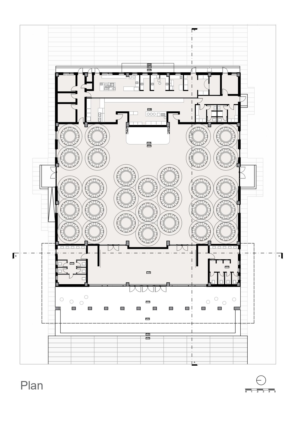
“Galla Events” este un spațiu destinat evenimentelor, având o suprafață generoasă de 1513,3 mp, la care se adaugă două anexe, terase acoperite, care împreună au 80 mp. Construit pe un parter înalt, localul are proporții armonioase, îmbinând eleganța clasică și funcționalitatea modernă. Volumetria simplă, bine proporționată, este pusă în valoare de fațadele finisate cu tencuială decorative, ce oferă textură și profunzime accentuate de lumina naturală.
Amplasarea localului pe teren este strategică, fațada principală fiind orientată spre vest, pentru a o valorifica. Zonele verzi completează ansamblul, creând un filtru față de împrejurimi și conturând alei pietonale generoase.
Interiorul este conceput cu un accent pe durabilitate și funcționalitate, însă păstrând un caracter estetic. Materialele utilizate pentru finisajele interioare aduc atât un plus estetic, prin varietate, cât și eficiență, datorită durabilității acestora.
Rezultatul este o construcție echilibrată, care îmbină calitățile arhitecturale cu cele practice, oferind un spațiu versatil, pregătit să răspundă atât exigențelor estetice, cât și celor funcționale.