
Comentariul autorului:
Proiectul propune transformarea unui spațiu comercial din perioada comunistă, situat în centrul orașului Alba Iulia, într-o clinică stomatologică contemporană. Spațiul ocupă parterul și mezaninul unui bloc construit în apropierea fostului magazin central „Unirea” și se remarcă prin înălțimea generoasă și suprafețele vitrate ample, gândite inițial pentru a conecta viața urbană la nivelul străzii cu funcțiunile comerciale.
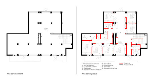
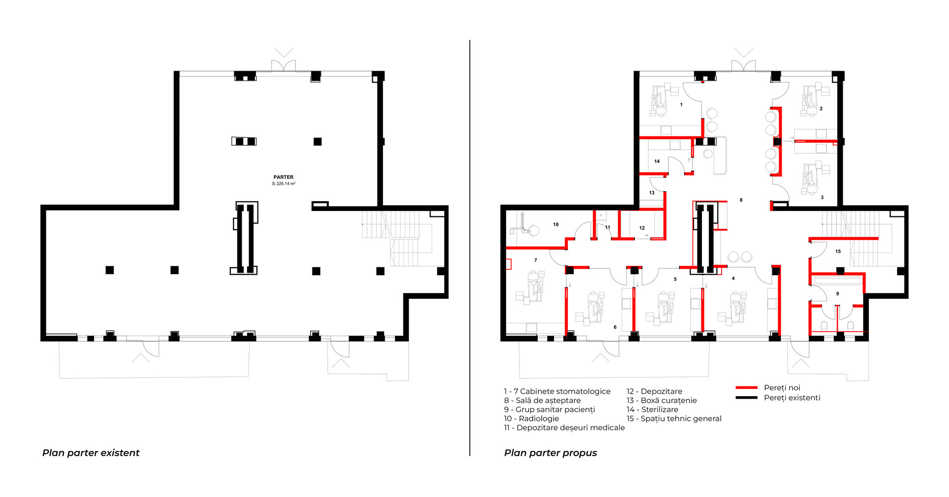
La preluarea proiectului, spațiul era complet necompartimentat. Deciziile de organizare au fost influențate de tema de proiectare, caracteristicile originale ale locului, dar și de o constrângere structurală: un zid de beton armat aflat central, imposibil de eliminat, care a dictat întreaga logică de compartimentare.
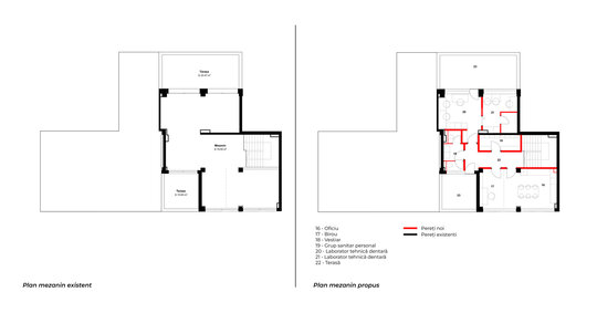
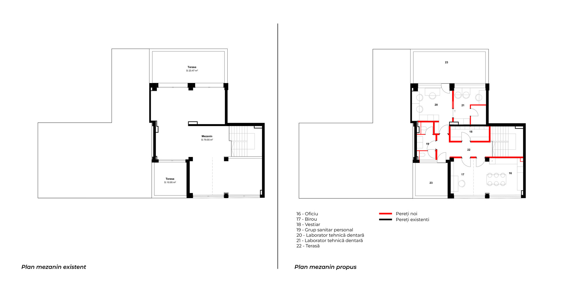
Parterul reunește toate funcțiunile cu acces public – șapte cabinete, radiologia, zona de așteptare, grupuri sanitare și spații tehnice. Mezaninul este dedicat personalului și include vestiare, laboratorul de tehnică dentară, birou și o zonă de relaxare.
Ne-am propus crearea unui spațiu prietenos și echilibrat, care să diminueze anxietatea pacienților printr-o atmosferă caldă și naturală. Paleta cromatică se bazează pe nuanțe de verde oliv și bej, completate de texturi din lemn de stejar, într-un dialog subtil cu elemente de sticlă, metal negru și beton aparent.
Cabinetele sunt delimitate prin uși vitrate înalte (280 cm), ce permit luminii să circule și contribuie la orientarea facilă a pacienților. Grupurile sanitare reiau același limbaj vizual, cu detalii și nișe gândite specific funcțiunii.
Pentru a păstra o legătură discretă cu istoria clădirii, am integrat riflaje din lemn, suprafețe de beton texturat și sticlă, reinterpretate într-o cheie contemporană.