
Comentariul autorului:
Proiectul de recuperare și recondiționare a corpului fostei Școli de Arhitectură (1892) constă în amenajarea spațiului pentru o nouă funcțiune: spațiu de lucru pentru un birou de arhitectură. În urma documentării clădirii istorice am redescoperit ceea ce înseamnă arhitectura: un echilibru între latura creativă și cea tehnică. De asemenea, ne-am amintit de planurile blue-print și de munca depusă înainte de era digitală, iar ca omagiu al arhitecților dinaintea noastră, am ales o abordare care să arate diferențele dintre fizic și virtual.
Firma fictivă de arhitectură activează sub numele de „Cube Lab”. Atât numele cât și logoul firmei ilustrează conceptele care stau la baza proiectelor: tipologii de volume simple, dar încărcate cu semnificații, sinceritatea materialelor și estetica experimentală care transmite un mesaj sau relevă o anumită stare. Într-o lume în care aproape orice lucru este posibil de efectuat și o identitate este ușor de construit, ne-am dorit să punem accent pe necesitatea autenticului și fiecare element sau material folosit are un rol semnificativ în discursul arhitectural. Sediul biroului se desfășoară pe etajul 6 și mansardă.
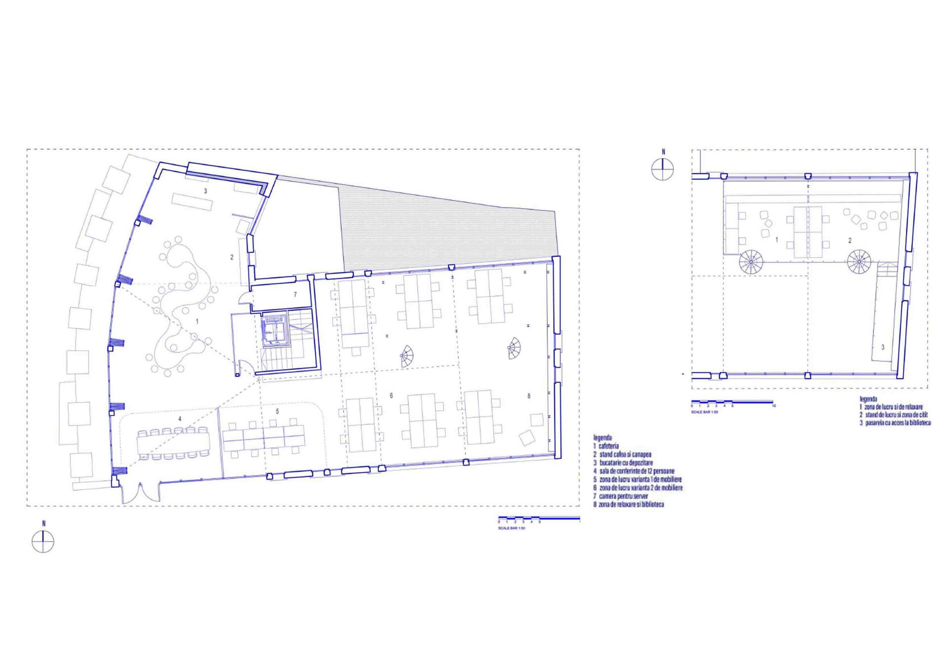
Planul etajului 6 cuprinde zona de recepție (desk și anexă), o zonă de așteptare și două săli de întâlnire (2-4 persoane). Zona publică este despărțită de cea privată printr-un spațiu versatil care poate lua forma unei săli de expoziție, prezentări V.R., etc. Zona de birouri cuprinde departamentele generale, o sală de conferință (capacitate de 16 persoane) și biroul directorului cu spațiu pentru ședințe. Spațiul de la mansardă a fost împărțit în zona de lucru și zona de cafeterie. Spațiul de lucru constă în birouri și o zonă de machetaj, delimitat de perdele fonoabsorbante, care pot manipula spațiul în funcție de nevoi. Capacitatea totală este de 41 de angajați. Adiacent zonei de machetaj se află o sală de conferință pentru 12 persoane, delimitată de un perete mobil cu finisaj acustic.
În amenajare am aderat la principii și tehnologii sustenabile. A fost necesară o intervenție arhitecturală pentru optimizarea spațiului, motiv pentru care am propus astfel o supantă, ce permite o nouă înțelegere și simțire a spațiului. Poziționată decentrat, supanta cuprinde și o pasarelă către biblioteca de pe peretele estic. Accesul către spațiul mezanin se realizează prin două scări elicoidale din tablă îndoită vopsită. Structura supantei este simplă, metalică, vopsită în alb, cu o prezență diafană în perimetrul zonei de lucru, structura nouă fiind ajutată de cabluri metalice pentru o senzație de plutire. Am propus înlocuirea învelitoarei originale cu o învelitoare metalică prevăzută cu o cavitate de circulare a aerului.
Ventilația naturală se realizează prin implementarea luminatoarelor tip Velux, care asigură o calitate a aerului, dar și o iluminare nordică benefică. Finisajele sunt în mare parte aparente: beton, tencuială decorativă, șapă industrială, metal, tablă, mesh, oferind spațiului un caracter nefinisat specific ideii de lucru și productivitate.