
Comentariul autorului:
Beneficiarii și-au dorit o casă cu structură timberframe, în standard pasiv, care să valorifice cât mai eficient terenul disponibil, de aproximativ 500 mp. Dincolo de dorința pentru o locuință confortabilă, aceștia au urmărit un proiect sustenabil, adaptat nevoilor unei familii moderne, dar și cerințelor de eficiență energetică și întreținere redusă pe termen lung.
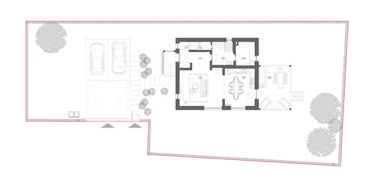
Pornind de la aceste cerințe, a fost concepută o locuință compactă, dar în același timp spațioasă, dezvoltată pe două niveluri – parter și mansardă – cu o suprafață construită de circa 175 mp. Proiectul include o terasă generoasă de aproximativ 18 mp, două locuri de parcare la sol și o curte de circa 340 mp, care permite atât amenajarea unui spațiu verde relaxant, cât și integrarea unor zone de grădină sau loc de joacă pentru copii. Amplasarea locuinței a fost gândită astfel încât să ofere un echilibru între amprenta la sol și suprafața liberă, păstrând totodată intimitatea prin retragerile față de vecinătate.
Parterul cuprinde un living generos și luminos, care devine punctul central al casei. Livingul comunică vizual și funcțional cu bucătăria și zona de dining, organizate în regim open-space, dar cu posibilitatea de închidere. Zona de zi este spațioasă și bine iluminată natural, oferind familiei un loc unde se poate reuni zilnic sau unde pot fi organizate mese festive. Accesul se face printr-un hol spațios, din care se ajunge la scara interioară și la grupul sanitar. Din acesta se face legătura către camera tehnică – spațiu ce funcționează și ca spălătorie. Tot aici, sub scară, a fost valorificat spațiul rezidual pentru depozitare, o soluție practică și discretă. Bucătăria se deschide către terasa acoperită, ideală pentru relaxare, pentru a lua masa în aer liber sau pentru momente petrecute cu prietenii.
Mansarda a fost configurată pentru a răspunde nevoilor beneficiarilor. Aici au fost prevăzute trei dormitoare, dintre care unul poate fi utilizat ca birou pentru munca de acasă sau ca spațiu pentru oaspeți. Această flexibilitate este esențială pentru adaptarea locuinței la diferite etape din viața familiei. Tot la mansardă se află și o baie spațioasă, precum și un hol care leagă armonios camerele între ele. De asemenea, a fost propusă utilizarea spațiului rezidual de deasupra scării interioare, amenajat sub forma unui dressing.
Propunerea inițială a beneficiarilor presupunea o dispunere mai puțin eficientă a spațiilor interioare. Pentru a optimiza costurile și funcționalitatea, a fost necesară regândirea organizării pe criterii de simplitate și eficiență. A fost propusă o dispunere judicioasă a încăperilor într-un volum compact, fără elemente decorative inutile sau soluții arhitecturale complicate, care ar fi crescut costurile fără beneficii reale. Această abordare pragmatică a condus la o reducere semnificativă – de aproximativ 30% – a costului structurii de lemn, fără a compromite calitatea sau estetica finală.
Pe lângă optimizarea volumului, s-a acordat o atenție deosebită eficienței energetice. Amplasarea ferestrelor și orientarea cardinală a locuinței au fost studiate atent pentru a maximiza aportul solar în sezonul rece și pentru a preveni supraîncălzirea vara. În acest sens, răcirea pasivă este asigurată prin utilizarea de jaluzele tip venețiene, care controlează lumina și temperatura interioară. În plus, încăperile cu funcțiuni secundare (precum grupurile sanitare, camera tehnică sau scara) au fost amplasate pe latura de nord, reducând pierderile de căldură și îmbunătățind performanța termică generală.
Această abordare holistică, în care arhitectura, structura și orientarea sunt integrate într-un ansamblu coerent, conduce la costuri reduse de întreținere și la un confort termic ridicat pe tot parcursul anului. Practic, locuința funcționează eficient atât iarna, când necesarul de încălzire este scăzut, cât și vara, când răcirea naturală diminuează dependența de sisteme mecanice.
Designul eficient și compact, utilizarea inteligentă a spațiilor reziduale (precum cel de sub scară pentru depozitare), materialele sustenabile și principiile de eficiență energetică fac din această casă o soluție viabilă pentru locuirea contemporană, responsabilă și durabilă. Mai mult decât o simplă locuință, proiectul reprezintă o investiție pe termen lung în calitatea vieții, în confort și în reducerea impactului asupra mediului.
Pentru cei interesați să descopere în detaliu organizarea și aspectul final al locuinței, există și o vizualizare 3D interactivă. Aceasta poate fi accesată simplu, prin scanarea codului QR de pe panou, oferind o perspectivă realistă asupra spațiilor interioare, dar și asupra modului în care casa se integrează pe terenul de 500 mp.