Milló

Autor(i):
AÉ02 (arh. Elena Viziteu, arh. Anda Zota)
Colaboratori:
Structură: ing. Alexandru Pintilie, ing. Rareș Bentu
Constructor: WeMat, Allevo Aedificia
Producție mobilier: The Edit, Mediascope
Artiști: Alexandru Arion, Piotr Dabrowa
Fotografii: Ollie Tomlinson
Localizare:
România, București

Comentariul autorului:

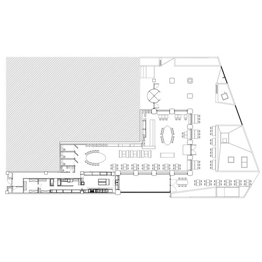
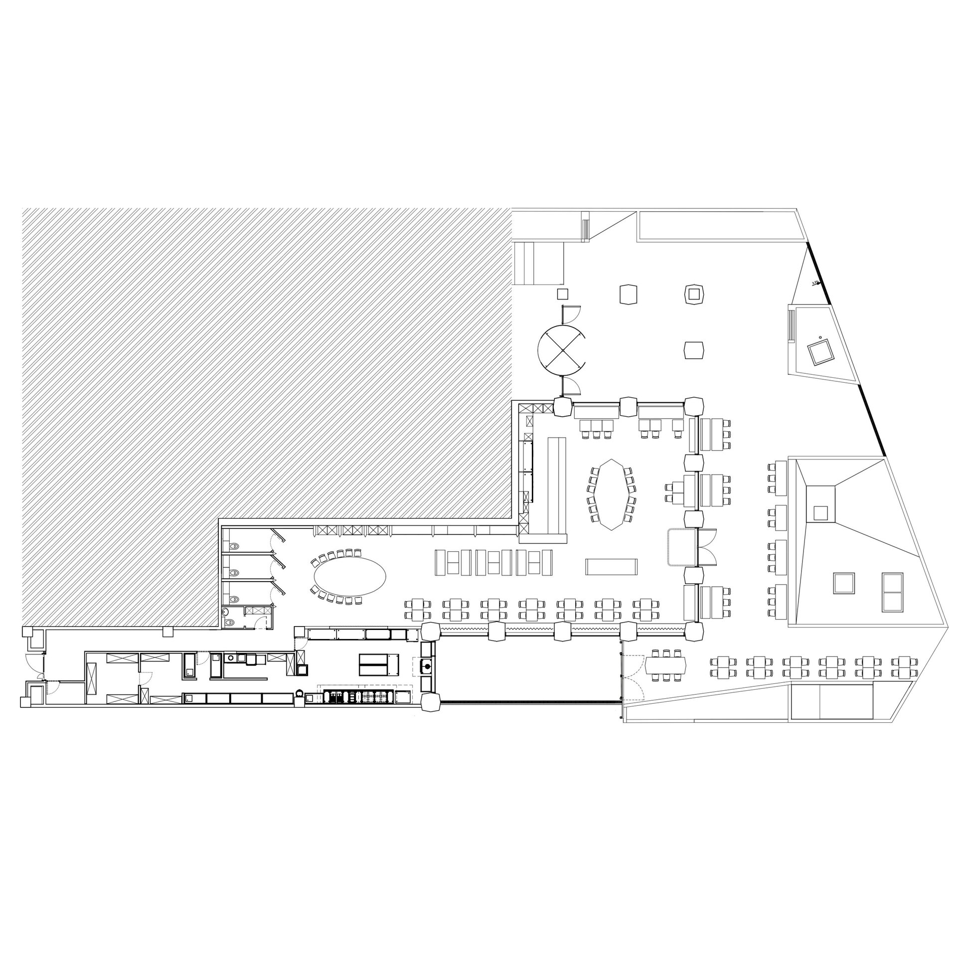
MILLÓ reprezintă o explorare elegantă a geometriei şi a materialelor, punând accentul pe atmosferă teatrală și materialitate pentru a da viață unui design unic.