
Comentariul autorului:
Casa cu galerie CB
Casa cu galerie este mai mult decât o locuință — este o experiență estetică, un spațiu care respiră artă, lumină și naturalețe. Situată în ansamblul Avalon, în nordul Bucureștiului, într-un cadru natural privilegiat, cu lacuri și vegetație matură, casa reflectă personalitatea unei familii dinamice, pline de veselie, care trăiește cu bucurie fiecare zi și valorizează frumosul în toate formele sale. Proiectul de amenajare interioară a fost conceput ca o extensie a stilului lor de viață: liber, creativ, echilibrat și profund conectat cu natura.
Designul îmbină influențe japandi cu minimalismul contemporan, dar fără a cădea în austeritate. Este un minimalism cald, texturat, care invită la explorare și confort. Paleta cromatică este dominată de tonuri neutre — bejuri, griuri deschise, alburi calde — care creează un fundal perfect pentru accentele de lemn natural, piatră brută și textile moi. Fiecare material a fost ales nu doar pentru estetică, ci și pentru senzația tactilă pe care o oferă: lemnul care încălzește, piatra care ancorează, lumina care învăluie.
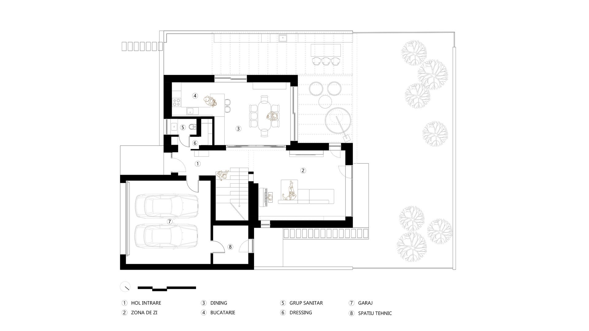
Parterul este gândit ca un spațiu deschis, fluid, în care funcțiunile se întrepătrund firesc. Bucătăria este un spațiu de creație culinară, cu fronturi din lemn și o peninsulă placată cu piatră gri, care adaugă greutate vizuală și texturală. Zona de dining este amplasată strategic lângă ferestrele mari, astfel încât masa din lemn masiv să fie mereu scăldată în lumină naturală. Este locul unde familia se adună, unde se râde, se povestește și se celebrează cotidianul.
Livingul se deschide generos către grădină, iar mobilierul este ales cu grijă pentru a păstra spațiul aerisit și primitor. Biblioteca tip Curiosity, cu forme arcuite, nu este doar un element decorativ — este o declarație de stil. Inspirată de galeriile de artă, ea adăpostește cărți, obiecte de design, sculpturi mici și tablouri care vorbesc despre pasiunile și universul interior al familiei. Arcurile, prezente subtil în mobilier și arhitectură, adaugă un ritm vizual care leagă spațiile între ele și creează o atmosferă de eleganță discretă.
Materialele naturale sunt omniprezente: lemnul de stejar, piatra travertin, textilele din in și bumbac. Acestea nu doar că oferă confort vizual, ci și contribuie la o acustică plăcută și la o senzație generală de calm. Suprafețele vitrate mari permit o relație directă cu exteriorul, iar grădina devine o extensie a spațiului interior. Lumina naturală joacă un rol esențial în compoziție, evidențiind texturile, volumele și obiectele de artă, care sunt amplasate cu grijă pentru a fi puse în valoare.
Etajul este dedicat zonelor private, dar păstrează aceeași coerență stilistică. Camera copiilor este un spațiu viu, adaptabil, cu mobilier modular și zone de joacă integrate. Paturile supraetajate, combinate cu o structură de cățărare, transformă camera într-un mic univers de aventură, unde energia și imaginația celor mici sunt celebrate. Culorile sunt jucăușe, dar pastelate, păstrând echilibrul vizual cu restul casei.
Dormitorul matrimonial este o oază de liniște, unde influențele japoneze se simt în simplitatea formelor, în paleta cromatică și în modul în care spațiul este organizat. Logia închisă, cu vedere spre grădină, este locul ideal pentru lectură, meditație sau pur și simplu pentru a savura liniștea dimineților. Mobilierul este redus la esențial, dar fiecare piesă are o prezență sculpturală, contribuind la atmosfera de echilibru și rafinament.
Această casă nu este doar un spațiu de locuit — este un manifest pentru un stil de viață care celebrează arta, natura și relațiile autentice. Fiecare colț este gândit pentru a inspira, pentru a aduce bucurie și pentru a susține ritmul vieții de familie. Este o locuință care vorbește despre armonie, despre atenția la detalii și despre frumusețea lucrurilor simple, bine făcute.