
Comentariul autorului:
Într-o perioadă în care dezvoltarea contemporană își neglijează adesea fundamentele ecologice, arhitectura regenerativă readuce în prim-plan legătura esențială dintre oameni și loc. Living Systems propune un cadru în care arhitectura crește din reciprocitatea dintre locuitori și mediu, dintre materiale și memorie, dintre structură și sit.
Living Systems este un concept în care arhitectura devine inseparabilă de mediul ei, modelată de condițiile care o definesc. Așa cum ecosistemele, fie izvoare hidrotermale, păduri tropicale sau câmpii aride, dezvoltă strategii de reziliență și reînnoire, la fel și așezările umane se construiesc ca sisteme biologice și culturale, profund integrate în locurile pe care le locuim.
Casa nu mai este gândită ca o structură rigidă, ci ca un cadru adaptabil la context și în timp. Tipologia se inspiră din tradițiile vernaculare ale EAU, unde organizarea orientată spre interior și curțile oferă confort termic și intimitate. Terasele umbrite și spațiile ierarhizate susțin un mod de locuire ce ține cont de aspectele climatice specifice și valorile culturale ce se impun.
Designul modular are un grad mare de adaptabilitate, sistemul putând fi ajustat în funcție de utilizatori și contextele culturale diferite. Obloanele variază în opacitate și pot fi deschise complet, păstrând coerența arhitecturală și oferind în același timp ritm și diversitate fațadelor.
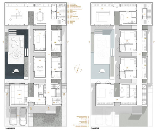
Arhitectura Living Systems redefinește locuirea prin principii de organizare spațială care reflectă viața cotidiană. Aceasta propune o succesiune de spații închise și deschise, cu un echilibru între zone private și comune, între continuitate și retragere. Casa este concepută ca un cadru flexibil, capabil să evolueze odată cu locuitorii. Structura spațială susține schimbarea tiparelor de viață,individuale sau colective, fără a necesita modificări permanente. În locul unei configurații fixe, permite transformarea în timp.
Orientată spre interior, casa generează un cadru intim și protejat. Curțile și terasele umbrite devin extensii ale spațiului interior, definind tranziții confortabile între interior și exterior și contribuind la controlul climatic pasiv.
Construit pe principii modulare, sistemul se adaptează cu ușurință. O cameră își poate schimba funcțiunea de la spațiu de lucru la cameră pentru oaspeți, de la zonă privată la cadru comun. Extensiile exterioare pot fi închise, umbrite sau deschise, după nevoie, astfel încât casa răspunde atât schimbărilor de rutină, cât și variațiilor sezoniere sau generaționale. Nu este un obiect static, ci o structură vie: ancorată, adaptabilă și receptivă la complexitățile vieții cotidiene.
Strategia de dezvoltare este etapizată, având în centru un ax structural care ghidează circulațiile și susține o logică organizațională clară. Modulele sunt articulate secvențial, creând legături fluide între zonele private și cele comune. Sistemul locuinței este pregătit pentru extinderi atât pe orizontală, cât și pe verticală.
Caracteristici cheie:
1. un ax central care structurează fluxurile interne și externe;
2. curți și terase umbrite pentru răcire pasivă și intimitate;
3. camere cu utilizare multiplă (ex. birou sau cameră pentru oaspeți);
4. componente modulare care permit reamenajări fără demolare.
Proiectul se bazează pe metode constructive reversibile, reutilizabile și reciclabile. Materialele sunt selectate pentru durabilitate și impact redus asupra mediului. Tehnicile privilegiază construcția modulară și montajul cu pierderi minime, sprijinind economia circulară și reducând consumul de resurse.
Una dintre provocările majore a fost conceperea unei arhitecturi capabile să rămână adaptabilă pe termen lung, fără a pierde coerența și relevanța culturală. O altă provocare a vizat integrarea intimității și a strategiilor climatice într-un cadru modular deschis. Aceste aspecte au fost rezolvate printr-o succesiune atentă de secvențe spațiale, prin închideri flexibile și printr-un limbaj modular care admite variații fără a genera fragmentare.
Rezultatul este un sistem scalabil și adaptabil, capabil să funcționeze în contexte diverse. El propune un nou model de locuire, ancorat cultural, receptiv la mediu și rezilient. Arhitectura extinde acest model la scara urbană, generând un cadru regenerativ în care dezvoltarea este înțeleasă ca proces continuu și flexibil, nu ca obiect final.