
Comentariul autorului:
AV10 – Scenografia cotidianului în tonuri de gri
Proiectul AV10 se constituie ca un discurs despre locuirea contemporană, în care interiorul devine spațiu de reflecție asupra echilibrului dintre funcționalitate, estetică și raportarea la natură. Amplasată în nordul Bucureștiului, în proximitatea lacului Pipera, locuința se află la intersecția dintre liniștea mediului ambiental și dinamica urbană, valorificând o poziționare ce permite simultan intimitate, confort și acces la metropolă. Această inserție în peisajul natural, marcat de vegetație și apă, conferă proiectului nu doar un context privilegiat, ci și o sursă de inspirație pentru conceptul arhitectural, orientat spre simbioză și armonie.
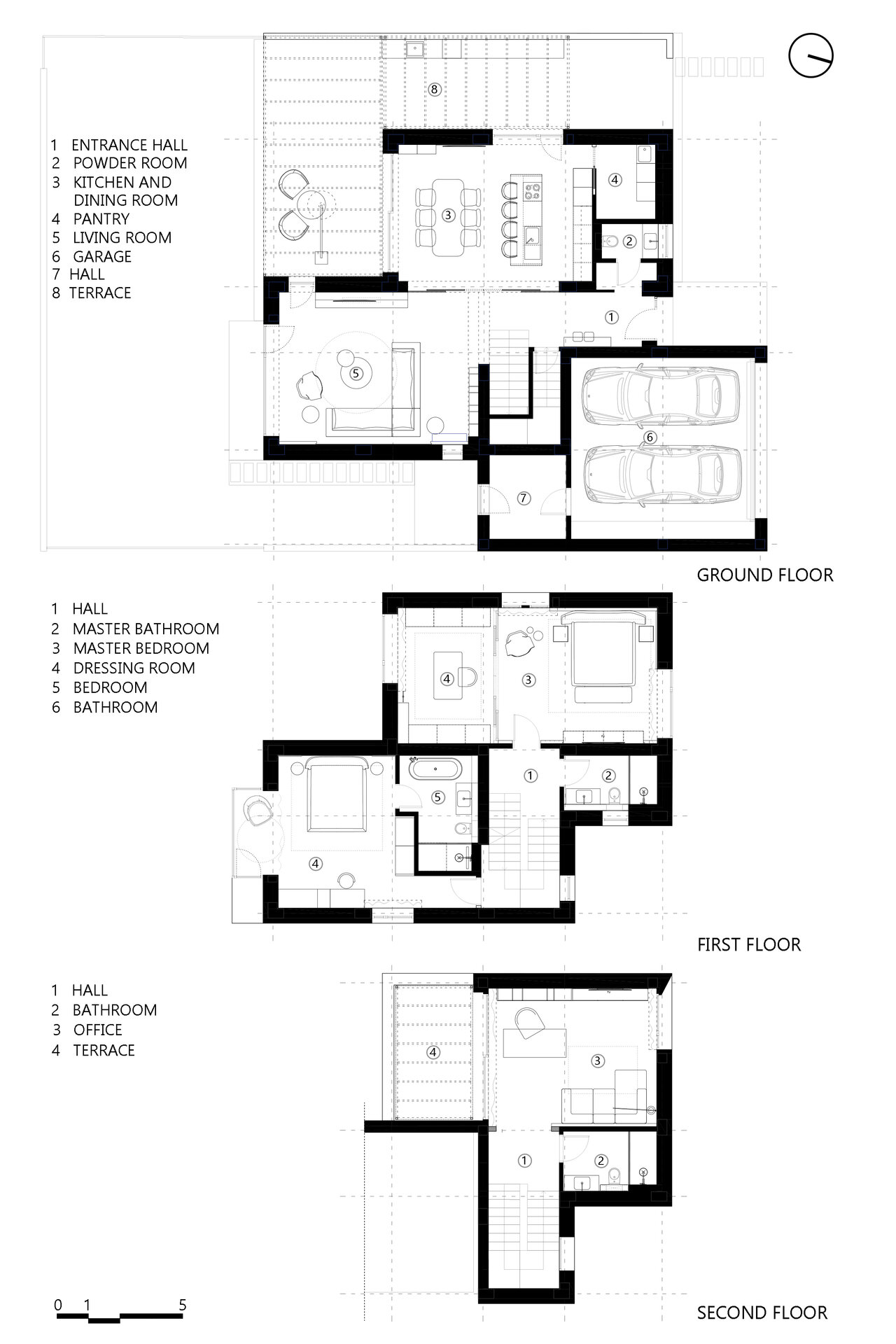
Structura casei, desfășurată pe trei niveluri, reflectă o logică funcțională clară, în care fiecare spațiu se conturează ca parte a unui parcurs coerent. Parterul, dedicat zonei de zi, este definit de deschidere și fluiditate. De la holul de acces, unde se insinuează contrastul subtil dintre tonurile de gri și texturile naturale, până la bucătăria minimalistă cu insula sa centrală, spațiul este gândit ca un continuum în care materialitatea, cromatica și lumina își răspund reciproc. Zona de dining aduce căldură prin accente de lemn, în timp ce livingul, articulat pe dublă înălțime, stabilește legătura organică dintre interior și grădina privată. Vitrajul amplu și șemineul central creează un nucleu de reprezentativitate și intimitate, în care esteticul și funcționalul se suprapun.
O atenție specială este acordată zonei scării, concepută nu doar ca element de circulație, ci ca generator de experiențe spațiale. Vitrina cu plante, ce delimitează subtil livingul, introduce o dimensiune biophilică, în timp ce oglinzile inserate în casa scării multiplică lumina și volumul, oferind la fiecare podest o perspectivă diferită asupra locuirii.
La etaj, spațiile se umanizează prin intimitate și personalizare. Camera copilului devine un manifest cromatic distinct, unde tonurile neutre se completează cu accente vibrante de verde turcoaz, generând un mediu ce îmbină studiul, jocul și relaxarea într-un echilibru atent dozat. În contrast, mansarda se configurează ca spațiu al introspecției și creativității. Dominată de nuanțe închise, aceasta propune o atmosferă sobră și elegantă, în care biroul, element central, coagulează funcționalitatea și estetica într-o compoziție rafinată.
Întregul proiect este guvernat de o estetică minimalistă, definită prin linii clare, tonuri neutre și accente naturale, însă minimalismul propus nu devine auster, ci un cadru al rafinamentului și confortului. Materialele, texturile și lumina sunt orchestrate pentru a genera o atmosferă de echilibru și coerență, unde interiorul nu este izolat, ci se prelungește firesc către natură.
ALTFEL, AV10 depășește statutul unei simple amenajări interioare și se afirmă ca reflecție asupra modului în care arhitectura poate redefini relația dintre om și locuire. Într-o epocă a fragmentării și a accelerării, proiectul propune o locuință în care claritatea funcțională, estetica subtilă și deschiderea către mediu se întâlnesc pentru a contura o experiență de viață contemporană, elegantă și profund ancorată în dialogul cu natura, într-o veritabilă scenografie cotidiană în tonuri de gri.