
Comentariul autorului:
În inima Clujului, pe Bulevardul Eroilor, o clădire clasată ca monument istoric își regăsește vocația printr-un proiect de design interior care aduce patrimoniul în dialog cu prezentul. Intervenția respectă și valorifică trecutul printr-o restaurare discretă și o reinterpretare atentă, unde memoria locului devine resursă pentru un spațiu contemporan.
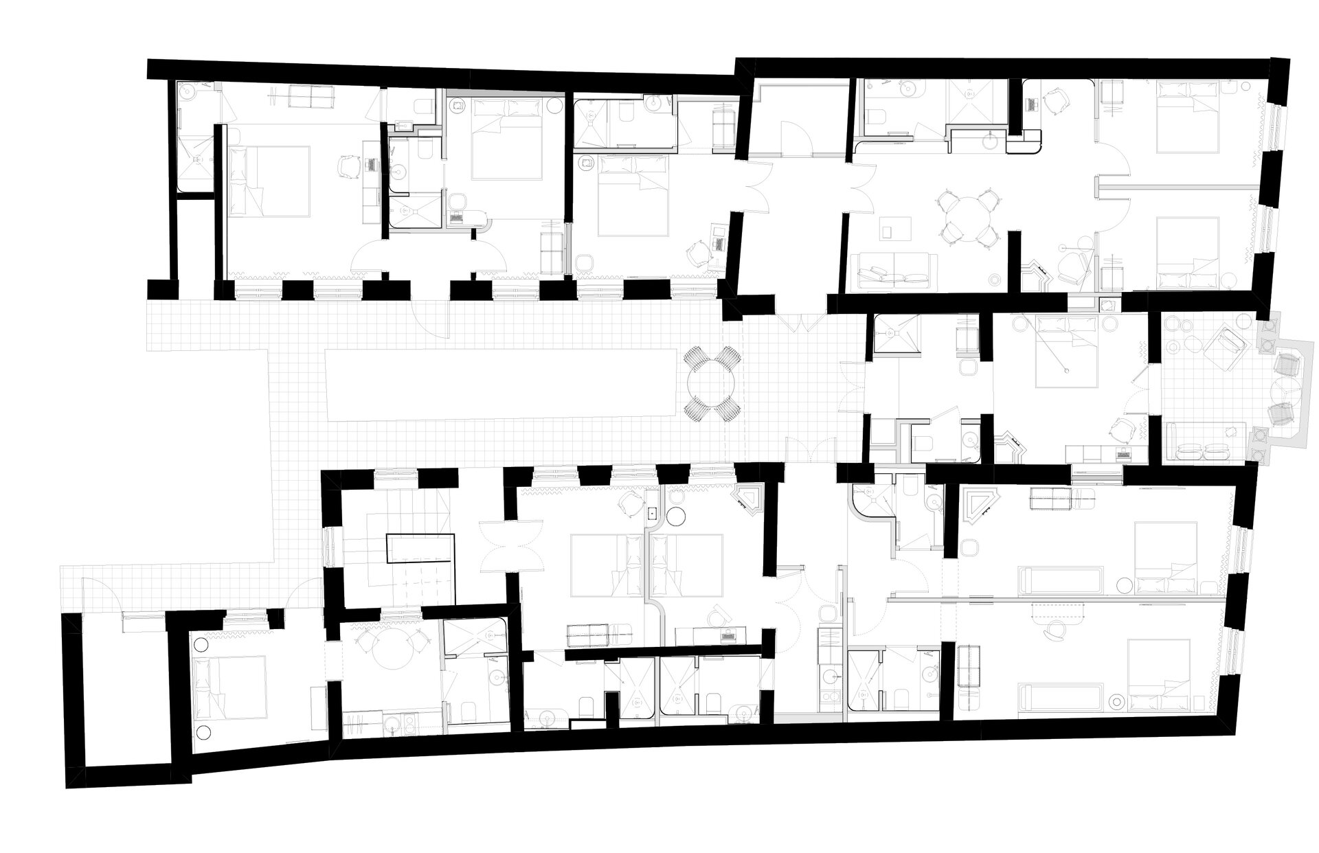
Amenajarea propune zece încăperi dedicate turismului, dezvoltate sub conceptul de „cutie de bijuterii”. Clădirea istorică este cutia, interiorul proiectat devine montura, iar bijuteriile sunt oamenii care îi dau valoare prin experiențele trăite. Paleta cromatică – teracotă, verde, albastru și tonuri pământii – diferențiază și individualizează fiecare cameră, păstrând în același timp unitatea ansamblului.
Intervenția este deopotrivă respectuoasă și curajoasă. Compartimentările au fost realizate cu pereți ușori, pentru a nu altera planimetria inițială a monumentului. Elementele decorative existente – sobe de teracotă cu detalii fine, fresca tavanului din casa scării, fragmente de tencuială originală păstrate vizibil – devin ancore între trecut și prezent, între autenticitate și vitalitate reînnoită.
Proiectul depășește funcțiunea de boutique hotel și propune o experiență arhitecturală. Crează spații care evoluează odată cu cei care le locuiesc, care stimulează interacțiunea, dialogul, reflecția și celebrarea. În esență, arhitectura este cu și despre oameni – despre felul în care un loc poate transforma stări și relații. Orașele contemporane trebuie să devină mai umane, iar spațiile lor – vii, flexibile și deschise comunității.
Flexibilitatea și autenticitatea definesc această intervenție: un proiect care nu renunță la trecut, ci îl reinventează, transformându-l într-un cadru pentru prezent și viitor. Este un gest arhitectural discret și non-invaziv, dar puternic, care arată că patrimoniul și contemporaneitatea nu se exclud, ci se pot potența reciproc, dând naștere unor experiențe vii, memorabile.