
Comentariul autorului:
Casa M este amplasată în cartierul Grigorescu al municipiului Cluj-Napoca, o zonă caracterizată de dualitate în ceea ce privește țesului urban și modalitățile de locuire. Reminiscențele vechiului cartier Donath se citesc în case unifamiliale și vile elegante ale secolului trecut, care se împletesc cu locuințe colective cu regimuri de înălțime între P+4 și P+9 construite în anii 1960. Restructurarea șaizecistă este atribuită arhitectului clujean Augustin Presecan, apreciată pentru amplasarea aerisită a construcțiilor și dotarea cartierului cu spații pentru comunitate, servicii de proximitate și dotări de învățământ.
Mărginit de Someșul Mic la sud și de Pădurea Hoia la nord, cartierul Grigorescu abundă de posibilități de petrecere a timpului liber și dotări sportive. Noile restructurări urbane și accesibilizare a spațiilor publice, proximitatea față de centrul orașului și de natură oferă cadrul ideal pentru o locuire de calitate, ancorată în identitate culturală.
Tema de proiectare a presupus amplasarea eficientă a unei construcții pe o parcelă îngustă și adâncă. Casa trebuia să ofere o locuire comodă pentru o familie cu 3 copii de vârste diferite. Aceasta nu-și propune să rămână neschimbată pentru totdeauna, ci să se adapteze pe parcurs nevoilor spațiale ale unei familii în schimbare. Din acest motiv, conceptul arhitectural se constituie pe un cadru fix ce îl reprezintă structura de rezistență și anvelopanta, care permite configurarea unor scenarii diferite de utilizare.
Clădirea trebuie să se adapteze la cele trei etape ale familiei:
• Etapa inițială: doi părinți și trei copii. Aceasta presupune zone de zi generoase, precum locul de luat masa, bucătăria și camera de zi, unde să existe suficient spațiu pentru o familie mai numeroasă. Sunt necesare 4 dormitoare, mai multe băi și un spațiu de lucru aproape de casă, dar totuși separat, pentru a permite desfășurarea activităților într-un ambient adecvat.
• Etapa a doua: cel mai mare copil dorește să locuiască separat (perioadă facultății și începutul carierei), așadar are nevoie de un apartament mic și independent. În rest dinamica familiei rămâne aceeași pentru o perioadă mai lungă de timp.
• Etapa a treia: părinții ajung la vârsta pensionării și devin bunici, având nevoie de un apartament ușor accesibil, fără trepte. Între timp, copiii mai mari își întemeiază propriile familii și necesită spații de locuit mai ample, dar individuale.
Parterul clădirii are un acces dedicat ceea ce permite utilizarea independentă a spațiului, ca home office (inițial) sau ca un apartament (mai târziu). Etajul accesat printr-o scară închisă are posibilitatea de a fi utilizat ca un singur apartament împreună cu mansarda, sau poate fi divizat după mai multe scenarii. Fie se delimitează un mic apartament pe jumătate din suprafață, iar cealaltă jumătate împreună cu mansarda formează o unitate locativă, fie se formează două apartamente în oglindă desfășurate pe două niveluri.
Configurația inițială a casei trebuie să ofere spațiu generos pentru lucrul de acasă: un home office dedicat și separat de spațiile casnice. Zona de zi trebuie să fie generoasă, la fel și zona de luat masa, unde cei cinci membri ai familiei pot petrece timp de calitate împreună, iar zona de noapte se va contura din 3 dormitoare pentru copii și un dormitor matrimonial. Spațiile nu se conturează pe principiul luxului ci mai degrabă pe principiul utilizării eficiente a spațiului, fără a face rabat de la confort sau de la intimitate.
Descriere funcțională, moduri de folosire și adaptabilitate
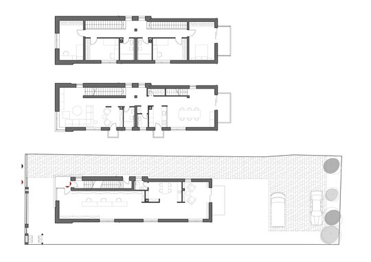
Parterul
Parterul este gândit cu acces independent, ceea ce permite utilizarea acestuia în mod flexibil. Acest spațiu poate funcționa fie ca birou de tip home office în primele etape ale familiei, fie ca un mic apartament tip studio separat, gândit pentru a treia etapă a familiei, sau chiar pentru închiriere. În acest mod, parterul poate deveni o unitate complet independentă, cu propriul său acces și configurare funcțională, fără a afecta restul locuinței. Acest spațiu beneficiază de lumină naturală și un flux optim între zonele interioare, fiind un loc adaptabil diverselor nevoi care apar pe parcurs.
Etajul
Etajul 1 se accesează separat de la parter printr-o scară închisă, iar împreună cu mansarda formează o unitate locativă completă, în etapa inițială. În această zonă se află spațiile de zi ale locuinței, o cameră de zi generoasă, care este amplasată spre stradă, separată puțin de zona de luat masa și bucătărie, creând un spațiu cu o atmosferă ideală pentru viața de zi cu zi (încăperea mai gălăgioasă). Bucătăria și locul de luat masa (încăperile mai liniștite) au fost gândite spre curte, oferind astfel un ambient plăcut și liniștit pentru mesele familiei. Aceste zone sunt gândite să fie flexibile și să sprijine interacțiunea între membrii familiei. În etapele ulterioare etajul se poate compartimenta astfel, încât să se formeze două apartamente.
Mansarda
În continuarea etajului, mansarda adăpostește zona de noapte, cu un dormitor matrimonial și trei dormitoare pentru copii, respectiv cu băile necesare în etapa inițială. Aceste camere sunt gândite să ofere confort și intimitate, fiind totodată adaptabile pe măsură ce nevoile familiei evoluează. Deși este o mansardă, în spațiile de locuit cu ajutorul lucarnelor au fost amplasate și ferestre verticale (nu numai ferestre de mansardă), astfel încât să fie compensată senzația de încăpere mică din mansardă. Și acest nivel se poate compartimenta în două zone (fiind construite două scări de acces de la etaj), și poate să funcționeze ca zona de noapte pentru două apartamente, fiecare dispunând de 2 dormitoare, ceea ce ar reprezenta etapa a treia din viața familiei.
Clădirea dispune și de un subsol cu acces separat de afară, care adăpostește spațiile tehnice și cele de depozitare necesare, luminat și ventilat prin curți de lumină amplasate pe latura vestică.
Casa M – Casa Generațiilor din cartierul Grigorescu nu este doar o locuință pentru prezent, ci o structură deschisă spre viitor. Gândită pentru a evolua împreună cu familia care o locuiește, ea oferă flexibilitate funcțională, integrare într-un context urban cu memorie și o viziune echilibrată asupra spațiului domestic – eficient, cald și ancorat în realitățile contemporane ale locuirii urbane.