
Comentariul autorului:
Prin FIGS beneficiarii au dorit să aducă în spațiul bucureștean sentimentul de relaxare specific vacanțelor în Mediterana și odată cu el toată mâncarea bună care vine la pachet, ca-n zicala: “Eat spaghetti to forgetti your regretti!”
Ambianța cromatică solară, voit inundată de culoare, trimite cu gândul la vacanță. De la galben, la verdele și rozul subtil al pulpei din interiorul smochinei, aceste tonuri caută să aducă un sentiment de confort și conexiune relaxată cu natura.
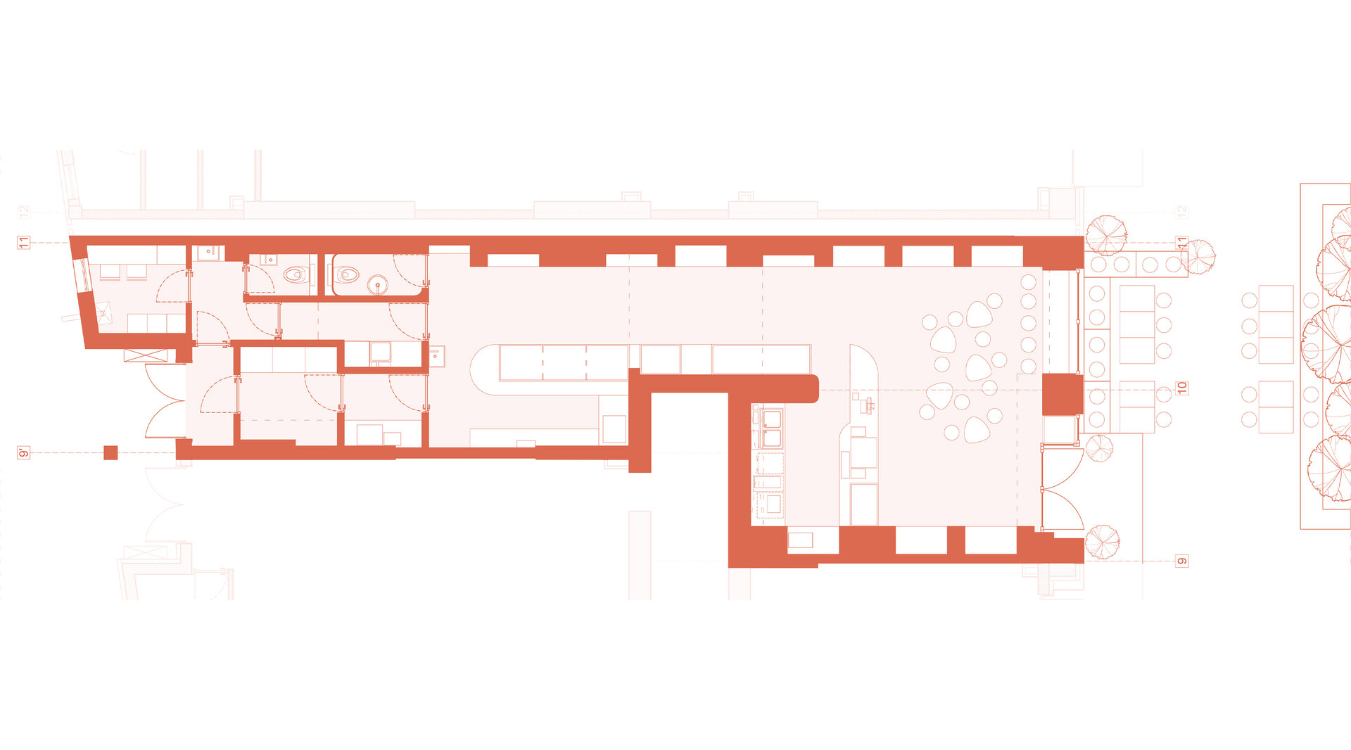
Arcadele evocă tradiția regiunilor de pe malurile Mediteranei, cu specificul lor de a crea deschidere și fluiditate între spații. Dincolo de eficiența structurală, arcadele contribuiau la filtrarea luminii și conturau acea atmosferă primitoare, sentiment pe care am încercat să-l recreăm și noi aici.
Din punct de vedere funcțional, arcadele ajută la organizarea eficientă și nepretențioasă a produselor. De-a lungul pereților laterali, nișe arcuite formează zone dedicate expunerii produselor – de la creme balsamice și uleiuri, până la dulciuri, paste și produse gourmet. Aceste arcade adaugă ritm, conducând privirea de-a lungul magazinului, către zona de băcănie din spate.
Centrul spațiului conține accentele de culoare: peretele cu muchii rotunjite de ceramică galbenă și mobilierul cu fețe de MDF verde, pentru a lega cele două zone principale: barul și băcănia.
Funcțiunile anexe, bucătăria, depozitarea și grupurile sanitare sunt distribuite în zona din spate, accesibile prin uși filomuro, discret decupate în pereții off-white.
Tencuiala rugoasă, grosier finisată a pereților, împreună cu blaturile și tavanul de lemn din surse locale contrabalansează finisajele lucioase de ceramică și MDF vopsit. Grafica definită pe același principiu al relaxării nepretențioase anunță în tușe groase categoriile de produse. Ilustrațiile jucăușe plutesc deasupra fiecărei nișe, consolidând identitatea vizuală a mărcii și oferind un contrast fantezist cu geometria curată a arhitecturii, aducând un plus de personalitate și coerență vizuală.
Tavanul este compus dintr-o rețea tip wireframe, din lemn ce formează un grid geometric și adaugă complexitate. Corpurile de iluminat suspendate completează designul cu lumină caldă, punând în valoare detaliile arhitecturale și produsele expuse.
Spațiul este completat de o zonă cu mese și scaune cu structură din cadre metalice în nuanță accent și blaturi din lemn de stejar, cu forme rotunjite. Simplitatea mobilierului echilibrează complexitatea vizuală a finisajelor și a tavanului, asigurând că spațiul rămâne primitor și nu excesiv de aglomerat.
Totul este conceput pentru a crea un spațiu unde clienții pot descoperi produse locale sau internaționale, savurând în același timp o cafea de specialitate.
Această băcănie nu este doar un magazin, ci un loc de întâlnire între design, gastronomie și comunitate – un exemplu de cum estetica modernă poate redefini comerțul de proximitate într-un mod funcțional și inspirat. În final, FIGS devine o experiență completă, unde fiecare detaliu arhitectural, cromatic și gastronomic contribuie la un univers coerent, cald și memorabil.
Un design Amuse Coeur pentru produse Amuse Bouche!