
Comentariul autorului:
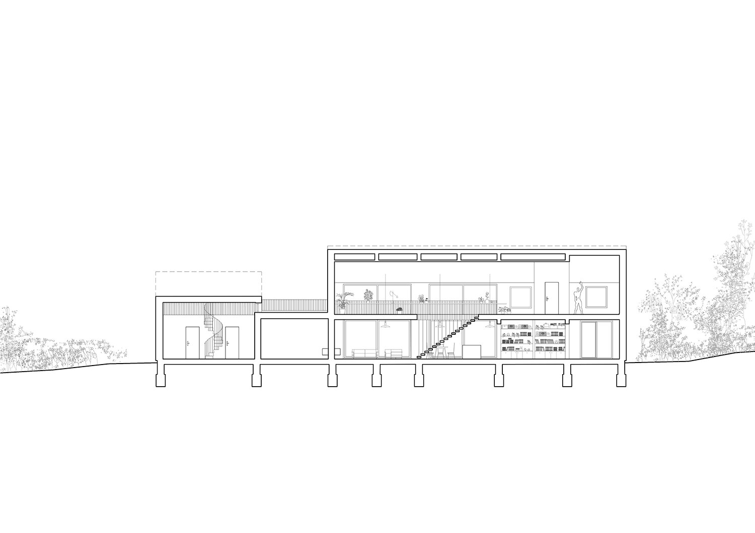
Situată pe un deal din Comarnic, casa este concepută ca un dialog între arhitectură, lumină și peisaj. Orientarea est–vest valorifică ritmul natural al zilei: dimineața, spațiile se deschid către răsărit, iar seara captează lumina caldă a apusului. Ferestrele ample devin „tablouri locuite”, înrămând perspectivele naturale și aducând vegetația și dealurile direct în interior.
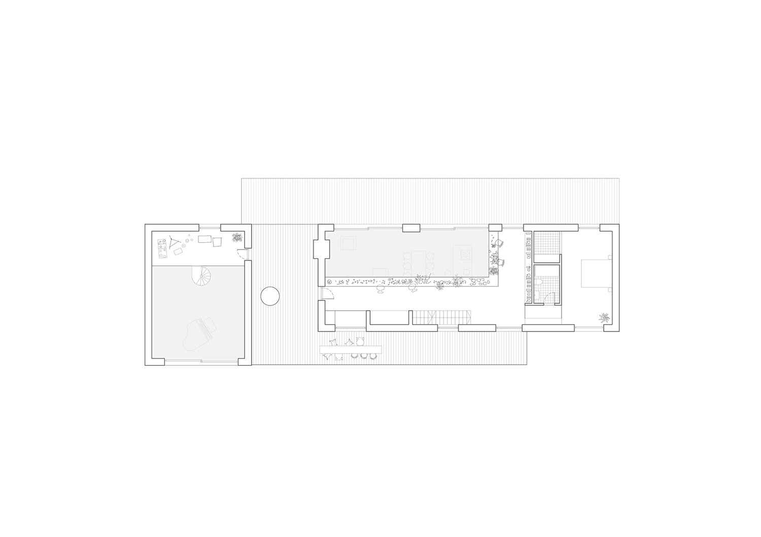
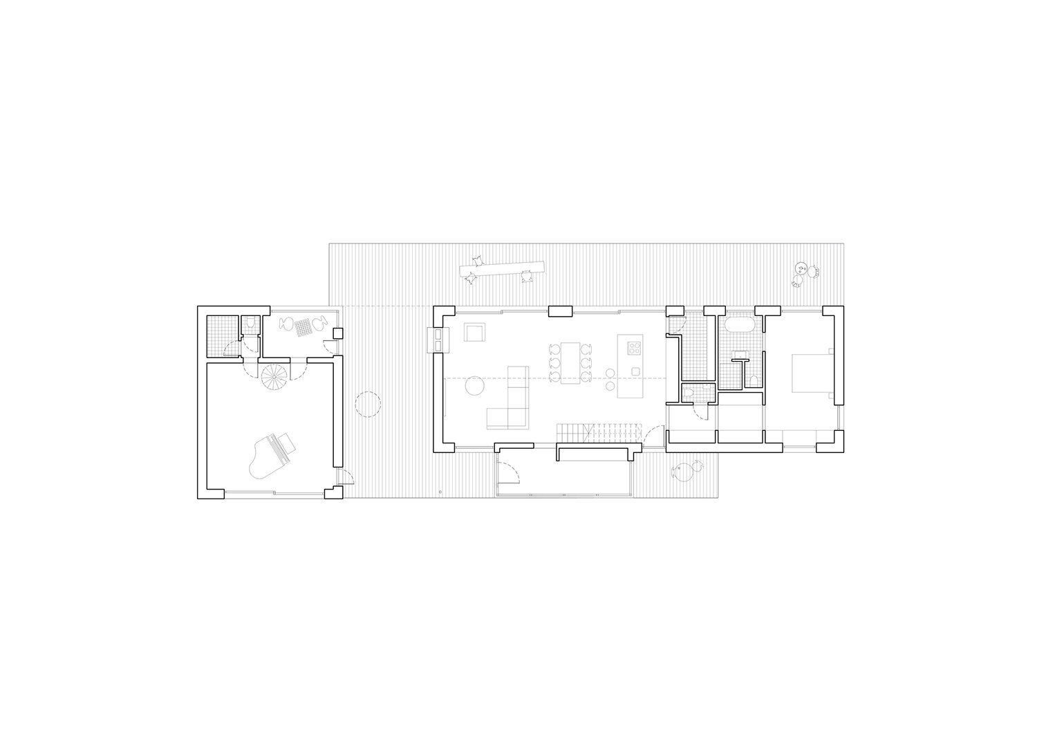
Volumetria casei este marcată de livingul cu dublă înălțime – nucleul locuinței – un spațiu fluid care conectează zonele de zi cu exteriorul printr-o terasă generoasă. Interiorul și peisajul se completează reciproc, iar casa devine un loc trăit în continuitate cu natura.
Funcțiunea include două dormitoare – unul la parter și unul la etaj – configurate pentru flexibilitate și confort pe termen lung. Bucătăria cu insulă devine centrul vieții de familie, biroul oferă intimitate pentru activități creative, iar un colț de lectură orientat către grădină adaugă un strat personal de reflecție și liniște.
Din punct de vedere constructiv, casa are o structură din zidărie portantă, șarpantă din lemn și o fațadă ventilată placată cu lemn negru – o alegere ce îi conferă un caracter contemporan și o integrare firească în peisajul natural. Simplitatea volumului, coerența detaliilor și atenția pentru eficiența energetică definesc o locuință modernă, responsabilă și ancorată în context.