
Comentariul autorului:
Având în vedere potențialul cultural și urbanistic al municipiului Pitești, precum și necesitatea revitalizării spațiului public central, prezentul proiect propune extinderea zonei pietonale și crearea unui hub cultural. Inițiativa se înscrie în cadrul strategiilor de dezvoltare urbană locală și regională, fiind susținută de Primăria Pitești și Consiliul Județean Argeș, în contextul SIDU (Strategia Integrată de Dezvoltare Urbană).
Proiectul se desfășoară în zona adiacentă Teatrului „Al. Davila” și Galeriei de Artă din centrul Piteștiului, având ca obiectiv principal completarea și revitalizarea traseului pietonal. Amplasarea în vecinătatea clădirilor cu valoare arhitecturală și istorică subliniază rolul ansamblului urbanistic existent, păstrând caracterul monumental și integrându-se armonios în compoziția urbană a orașului. În această zonă, sistematizarea anilor 1960 a rămas incompletă, menținând un front principal al clădirilor către bulevardul Republicii. Proiectul propune o recalibrare a spațiului public, orientând fluxul pietonal către parcul din apropiere, având liceul ca fundal vizual al perspectivei urbane.
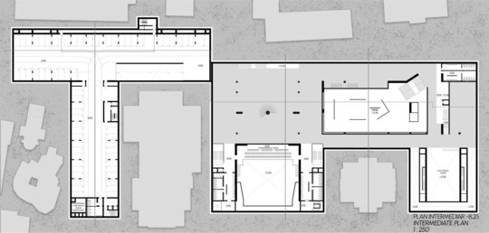
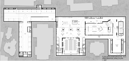
Extinderea spațiului cultural prevede crearea unui nivel subteran, la cota -10.00, cu o înălțime de 10 metri, care va oferi un cadru arhitectural modern, capabil să îmbine continuitatea funcțională cu respectul pentru compoziția urbană existentă. Acest nou strat arhitectural va deveni suportul pentru dezvoltarea programelor culturale și performative, prin intermediul hubului cultural, destinat găzduirii de spectacole de teatru, dans și concerte de anvergură.
Proiectul își propune integrarea unui reper arhitectural discret, menit să ghideze fluxul pietonal și să ofere coerență spațială între zona pietonală și parc. Noul centru cultural va funcționa astfel ca un liant esențial între elementele arhitecturale și culturale existente, contribuind la consolidarea identității urbane a orașului Pitești.
Parteneriatul dintre Primăria Pitești și Consiliul Județean Argeș, în cadrul SIDU, garantează sustenabilitatea proiectului și creează o oportunitate unică de dezvoltare culturală și urbanistică pentru oraș, prin sprijinirea programelor artistice și a evenimentelor culturale.