
Comentariul autorului:
RAD Art Fair reprezintă principalul târg de artă contemporană din București, la care participă cele mai prestigioase galerii din România. Anul acesta, evenimentul a marcat cea de-a treia ediție și s-a desfășurat pe domeniul hotelier Caro (fosta Fabrică de Glucoză).
Clădirea destinată pavilionului central a avut inițial funcția de restaurant/cantină și se distinge printr-o geometrie spațială extrem de fracturată, atât pe orizontală, cât și pe verticală, cu foarte puține unghiuri drepte, având un aspect hibrid de pește/ navă, puternic vitrată, situată pe malul lacului Tei.
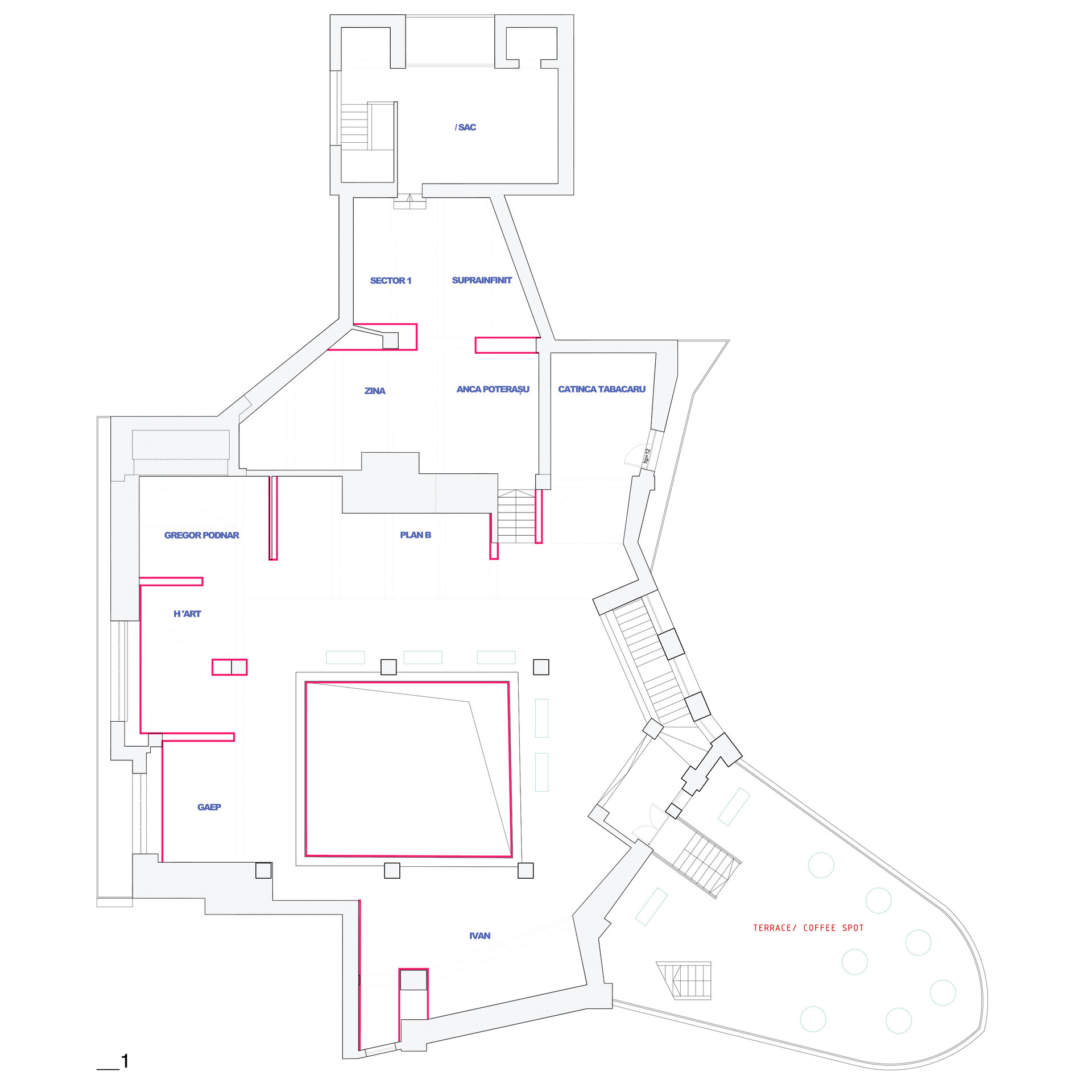
Provocarea arhitecturală a fost semnificativă, întrucât era necesară o intervenție minimală, dar eficientă de compartimentare, utilizând plăci din gips-carton, pentru a conferi nu doar un caracter de târg acestui spațiu. De asemenea, din perspectiva funcționalității, locul trebuia să acomodeze 22 de galerii, cu dimensiuni standard pentru standuri și lungimi ale pereților de expunere definite prin tema proiectului.
Intervenția arhitecturală a menținut neutralitatea spațiului alb esențial pentru standurile galeriilor, acestea fiind marcate cu câte o bandă verticală din aluminiu. Pe lângă rolul de a facilita identificarea rapidă a galeriilor, scopul a fost de a conferi un ritm parcursului, un puls al traseului care se dovedește a fi destul de labirintic.
Mai departe, am optat ca toate intervențiile de tip mobilier, signalistică și elemente de design ale traseului din afara standurilor, precum și intradosul parapetului golului de la etajul 1, să fie argintii, având în vedere că întreaga clădire prezintă tonuri calde. Finalitatea urmărită era obținerea unui spațiu neutru, cu o iluminare cât mai apropiată de natural, astfel încât lucrările expuse să devină principalele atracții, iar culoarea să provină exclusiv din artă.
Într-un spațiu de depozitare situat într-o clădire adiacenta, am organizat standurile pentru încă 6 galerii, zona Platform dedicată galeriilor emergente. A fost necesară găsirea unei soluții non-invazive, extrem de simple, dar vizual puternice, care să interconecteze cele două entități prin curte, iar răspunsul a fost clasicul covor roșu. În felul acesta am produs un traseu fluid al vizionării rezolvînd tema principală a versatilității neutrale a spațiului.