
Comentariul autorului:
Casa este situată în Oradea, într-un cartier nou dezvoltat (cu case tip), iar beneficiarii sunt o familie tânără, cu un copil mic.
Principala cerință de natură estetică a beneficiarilor a fost să integrăm terrazzo în amenajare, cerință care a dat tonul amenajării și, ulterior, numele proiectului ("The One With Terrazzo").
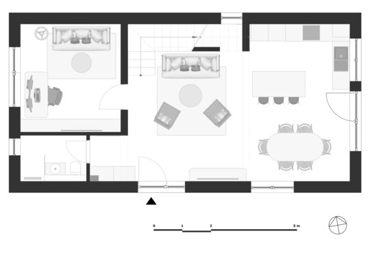
Zona de zi, bucătăria și locul de luat masa împart același spațiu și au fost gândite în ansamblu. S-a folosit aceeași pardoseală (parchet stratificat) pentru continuitate vizuală, materiale din aceeași familie, accente de negru. În zona
de bucătărie am integrat o insulă pentru a extinde spațiul mic de depozitare și de lucru. Blatul de lucru reia ideea de terrazzo, însă într-o formă mai subtilă față de băi.
În spatele canapelei se află scara către etaj. Fiind primul lucru care se vede la intrarea în casă și o piesă destul de mare a interiorului, am decis să acordăm mai multă atenție balustradei, care a trecut prin mai multe variante și iterații până să ne oprim la forma finală. Realizată din tablă perforată albă, aceasta urmează linia treptelor și contratreptelor în partea de jos, urcând până la tavan în partea de sus. Tabla perforată dă senzația continuității peretelui din spatele canapelei, păstrând în același timp transparența între spații și trecerea luminii.
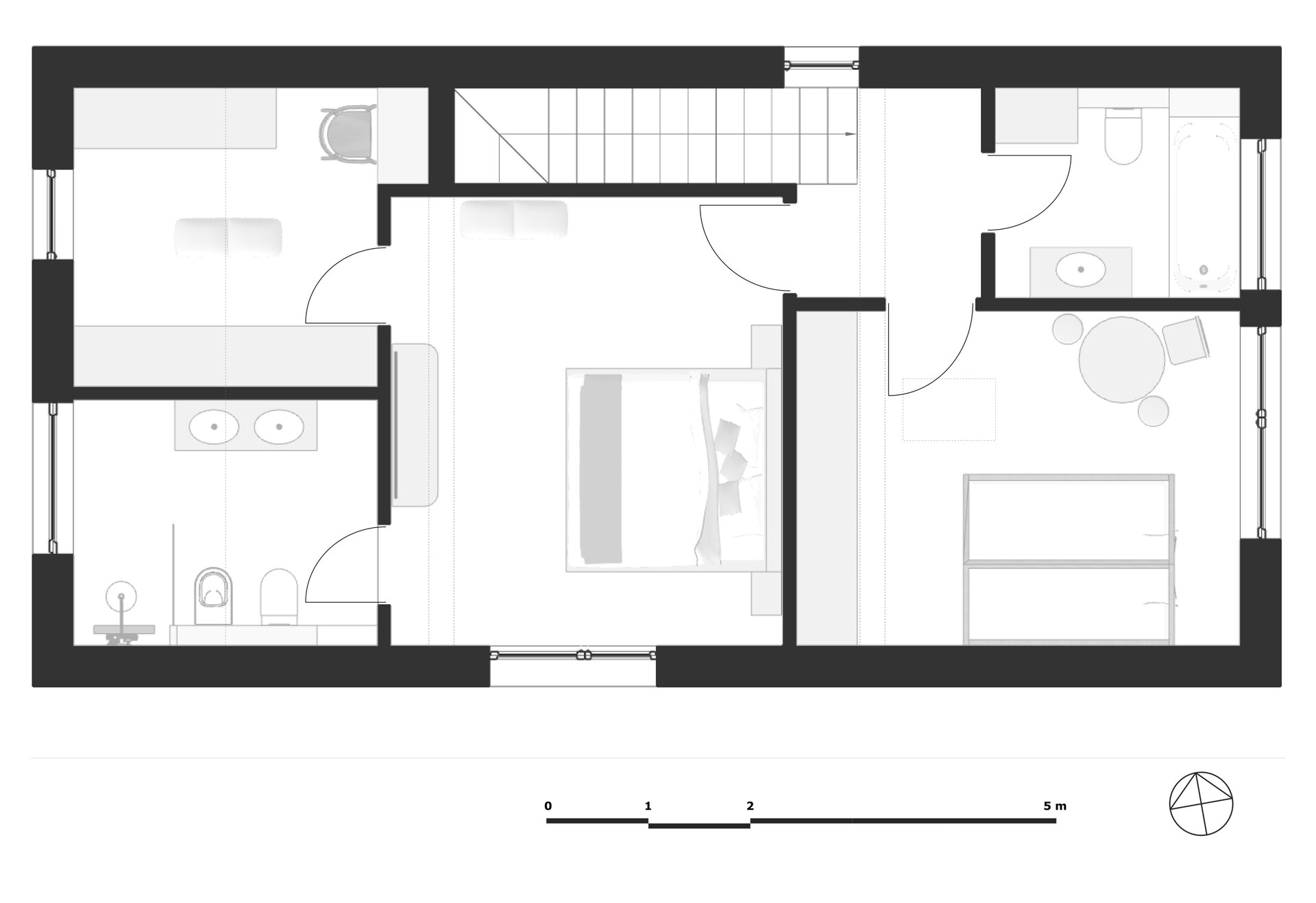
În baia matrimonială s-a folosit terrazzo cu o textură măruntă, care să nu devină obositor în timp, combinat cu plăci ceramice simple albe de dimensiuni mici în zona de duș, care dau un ritm subtil pereților, fără a concura cu terrazzo-ul ales. Pentru a încălzi schema cromatică, am ales mobilier cu fronturi din MDF furniruit stejar.
Pentru baia copilului am ales un terrazzo mai pestriț, combinat cu aceleași plăcuțe albe în zona căzii și o lavabilă într-o nuanță caldă pentru restul pereților.
Dormitorul matrimonial păstrează aceeași linie estetică, însă într-o formă mai simplă, aproape minimalistă. Având acces direct către dressing, singurul mobilier folosit aici e comoda suspendată cu sertare din fața patului. Pentru baia matrimonială și dressing am ales uși filomuro pentru un aspect mai curat al peretelui din fața patului. Camera copilului e singura încăpere în care am adus culoare cu peretele turcoaz pastel deschis, în rest urmărind aceeași schemă cromatică.