
Comentariul autorului:
TOTEM _ Sistem Structural Adaptabil
CONCEPT
Proiectul prezintă propunerea noastră pentru concursul internațional de arhitectură HOUSE OF THE FUTURE 2024/25, făcând parte dintre cele 40 de lucrări selectate în shortlist și reprecintă o explorare continuă a viitorului spațiilor de locuit pentru cetățenii Emiratelor Arabe Unite.
Soluția propusă îmbină patrimoniul cultural, grija ecologică și arhitectura contemporană, inspirându-se din simbolurile totemice ce exprimă identitate și legătura cu natura. Sistemul modular este flexibil și adaptabil, permițând extinderi orizontale și verticale, potrivindu-se diverselor contexte rezidențiale. Materialele tradiționale — piatră, teracotă și lemn sculptat — oferă izolație naturală și durabilitate, protejând eficient împotriva căldurii deșertului prin metode pasive. Elementele sustenabile, precum acoperișurile verzi, panourile solare și turnurile pentru ventilație naturală, împreună cu curțile umbrite, facilitează răcirea naturală. Panourile perforate și materialele termoizolante contribuie la confort termic și reduc consumul energetic. Astfel, Totem asigură nu doar protecție, ci și o legătură armonioasă între tradiție și inovație în peisajul arhitectural.
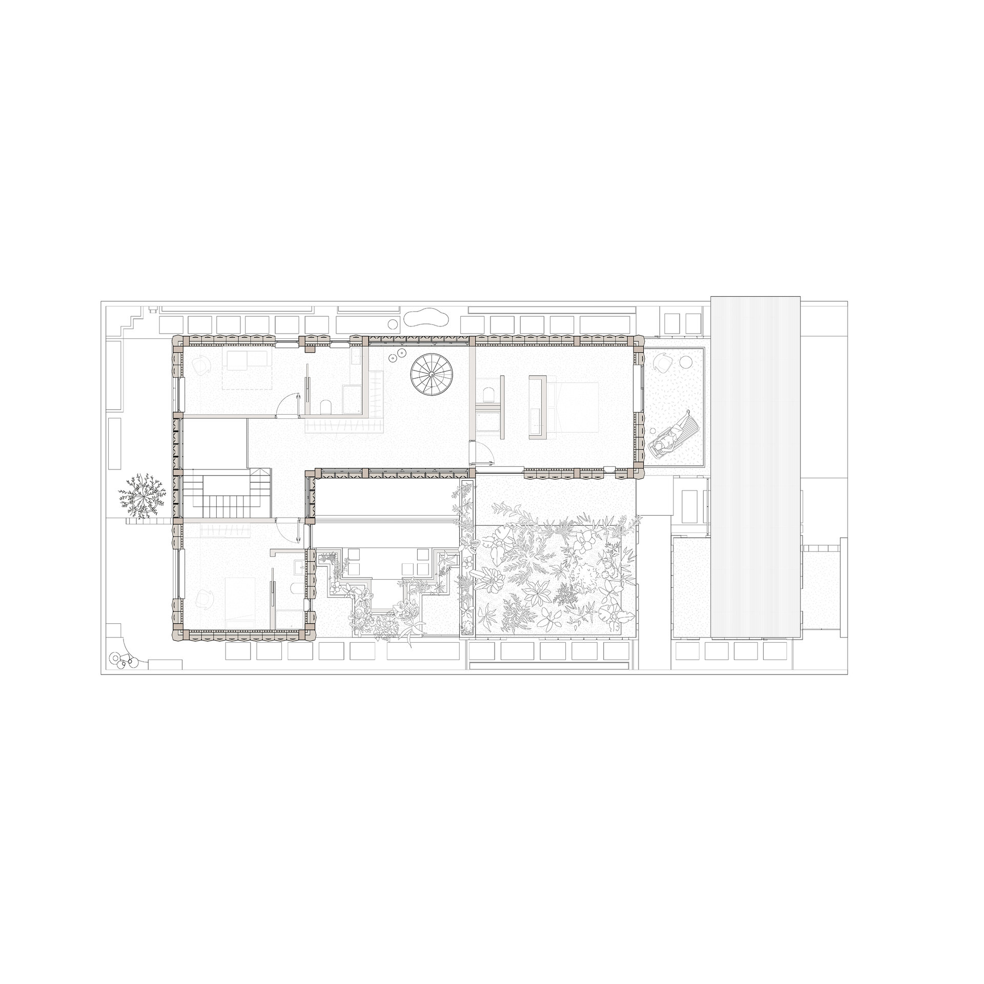
MATERIALITATE & SISTEM STRUCTURAL
Structura se bazează pe un sistem modular intuitiv, inspirat din tehnica tradițională de stivuire a pietrelor. Panourile prefabricate din beton, fragmente de piatră și teracotă, poroase și durabile, oferă reglare termică naturală, fără sisteme suplimentare de fixare. Asamblarea rapidă și posibilitatea extinderii pe orizontală și verticală mențin stabilitatea și adaptabilitatea. Texturile și paleta de culori echilibrate oferă un aspect estetic distinct, iar perforațiile din panouri asigură ventilare naturală, menținând temperaturi interioare potrivite pentru clima deșertică.
ADAPTABILITATE & SUSTENABILITATE
Sistemul modular reduce timpul și costurile construcției, fiind ușor adaptabil la condiții diverse și necesități familiale. Materialele locale, durabile, pot fi reparate, reutilizate sau reciclate, reducând impactul asupra mediului. Ventilația naturală, porozitatea materialelor și izolația termică sporesc eficiența energetică, iar utilizarea resurselor locale diminuează emisiile de transport și procesele de logistică. Acest sistem oferă o soluție sustenabilă, flexibilă și economică pentru locuire adaptată mediului.
ELEMENTE DE DESIGN ȘI PATRIMONIU CULTURAL
Proiectul integrează elemente tradiționale locale, precum modulele de umbrire inspirate din Mashrabiya, care combină estetica cu performanța climatică prin ventilare naturală și lumină difuză, și bazinul în trepte, inspirat de tehnica Targheem, adăugând valoare estetică și simbolică curții interioare. Finisajele din teracotă și piatră reflectă meșteșugurile locale, iar detaliile decorative amintesc motive arabe. Turnul pentru captarea vântului, integrat cu hornul șemineului, asigură ventilație naturală și reglarea temperaturii, în timp ce panourile solare sporesc eficiența energetică. Blocurile modulare și panourile perforate oferă flexibilitate, iluminare, și facilități pentru circulația aerului. Structura expusă evidențiază ritmul modular și coeziunea vizuală. Curtea interioară parțial acoperită utilizează panouri glisante pentru adaptabilitate spațială, iar spațiile deschise cu dublă înălțime maximizează lumina și aerisirea naturală. Curțile umbrite cu jardiniere perimetrale plantate contribuie la microclimatul confortabil, iar tonurile deschise și materialele locale susțin performanța termică și păstrează estetica arhitecturii locale.