
Comentariul autorului:
Locuirea contemporană în dialog cu patrimoniul construit
Intervenție arhitecturală asupra unei locuințe din perioada interbelică, Cotroceni, București
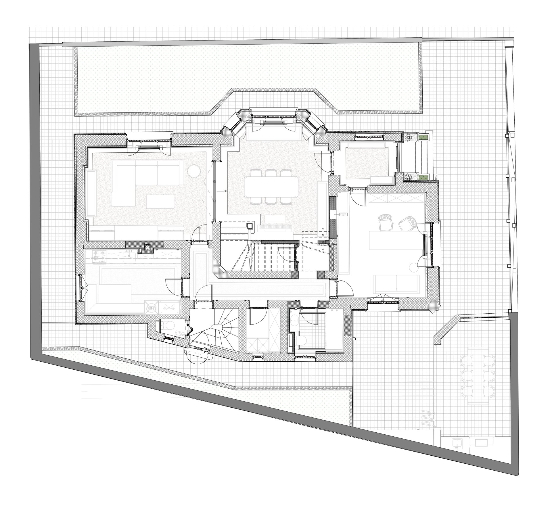
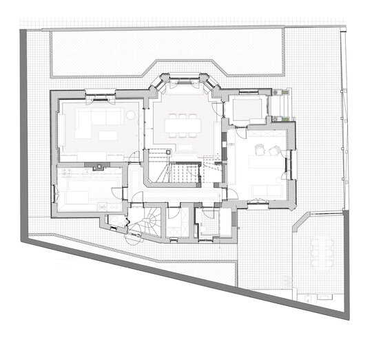
Proiectul explorează una dintre temele majore ale arhitecturii urbane actuale: modul în care intervențiile asupra fondului construit din zone protejate pot valorifica patrimoniul existent, păstrând în același timp deschiderea către limbajul contemporan. Situația studiată — o locuință interbelică din parcelarea Cotroceni — oferă un context urban cu o identitate clară, definită de coerența frontului stradal și de expresia echilibrată a diversității arhitecturale.
Intervenția presupune o extindere atent proporționată, integrată într-o manieră respectuoasă față de clădirea existentă și față de ritmul fațadelor învecinate. Noul volum este retras față de aliniamentul stradal și articulat cu grijă, utilizând panouri de corten — un material, care amintește subtil de trecerea timpului.
Volumetria familiară, materialele inspirate din cadrul existent și tratamentul discret al detaliilor creează o tranziție firească între vechi și nou. Intervenția nu își propune să iasă în evidență, ci să întrețină o relație armonioasă cu vecinătățile, contribuind la continuitatea morfologică a țesutului istoric și la calitatea locuirii. Printr-un joc echilibrat între transparență, umbrire, vegetație și masă construită, locuința se adaptează cu sensibilitate cerințelor contemporane.
Mai presus de conservare formală, proiectul urmărește o reactivare a valorilor locuirii urbane, în care identitatea arhitecturală se păstrează și se dezvoltă în mod firesc. Astfel, intervenția devine un exemplu de integrare contextuală și de actualizare atentă a patrimoniului, în acord cu nevoile prezentului: sustenabilitate, accesibilitate și funcționalitate.
Imaginile prezentate redau această relație echilibrată dintre patrimoniu și prezent, în care noul nu concurează cu vechiul, ci îi susține prezența prin contrast controlat și complementaritate. Un demers care privilegiază continuitatea coerentă în locul opoziției, contribuind activ la vitalitatea arhitecturii urbane din zonele protejate.