
Comentariul autorului:
Casa S., București
Amplasamentul se află într-o zonă semi-centrală a Bucureștiului, cu o rețea stradală ordonată și cu un fond construit eterogen în termenii dimensiunii, vechimii și imaginii, dar fără calități arhitecturale notabile.
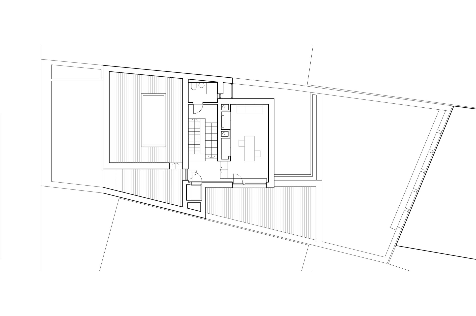
În parcelarul cvasi-regulat delimitat prin străzi paralele, există și perturbări geometrice locale, așa cum este cazul terenului în discuție: o suprafață poligonală de 353mp, cu o deschidere de 10,00m la stradă și cu calcane diferite ca înălțime, ocupând parțial celelalte trei limite. Plecând de la o reglementare de urbanism preexistentă, care prevedea un regim continuu de construire, clădirea se retrage de la aliniament și, preluând calcanele laterale, se deschide către curtea plantată din spate, orientată sud-est.
Problema a fost aceea de a compatibiliza constrângerile parcelei cu exigențele unui program funcțional care, deși pentru o familie de două persoane, a devenit în final mare pentru dimensiunile ei, și de a asigura intimitatea spațiilor în raport cu vecinătățile actuale și, în măsura posibilului, viitoare.
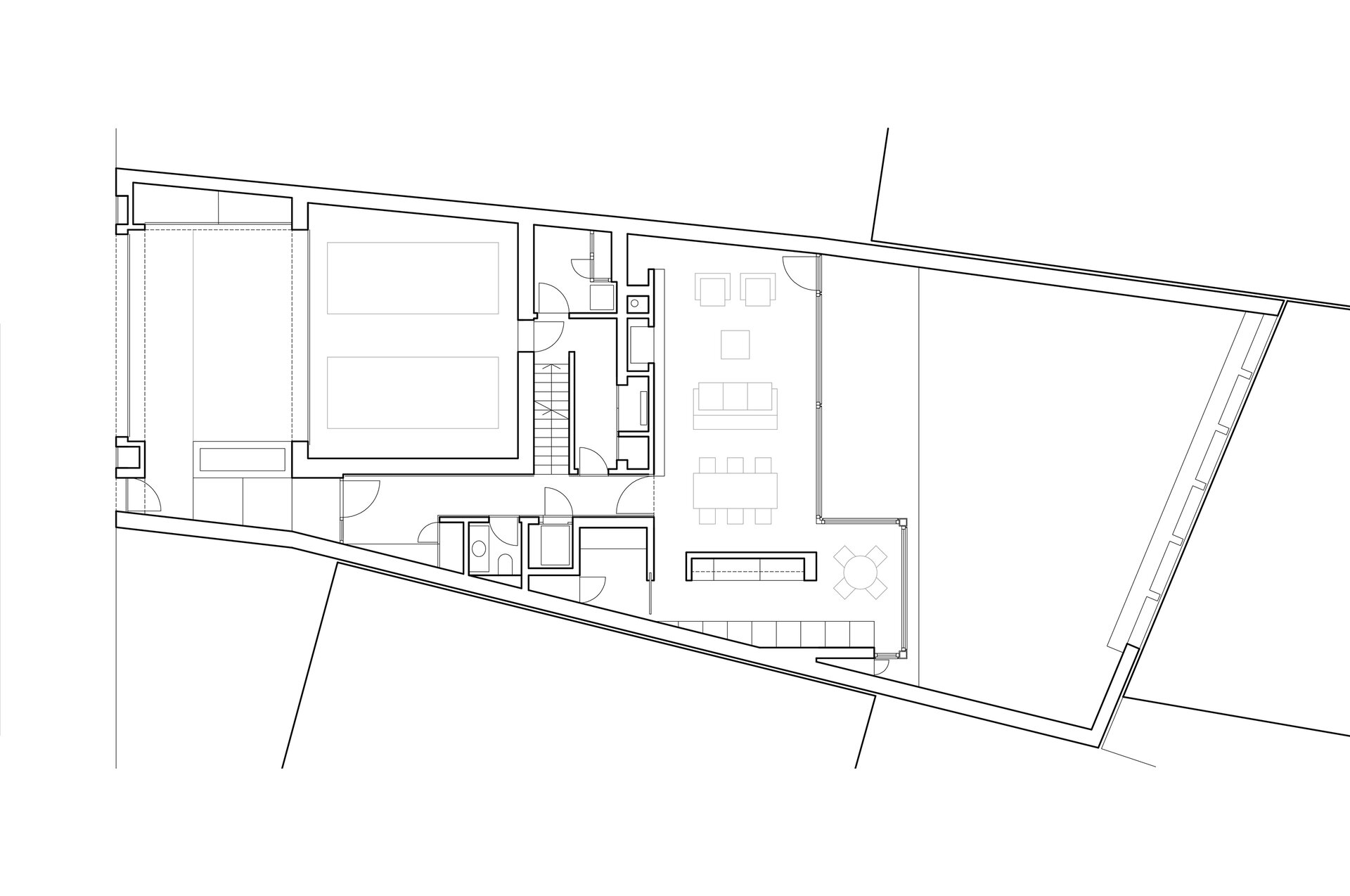
Între direcțiile divergente ale limitelor, două axe structurante ortogonale organizează planul: prima longitudinală – circulația orizontală care leagă zona de intrare cu cea a living-ului și a curții plantate din spate –, a doua transversală – succesiunea de spații pe care sunt dispuse circulația verticală (scară, ascensor) și nucleul de echipamente tehnice (șemineu, instalații de climatizare). Ordonate de aceste direcții, conturul și structura planimetrică diferă de la un nivel la altul:
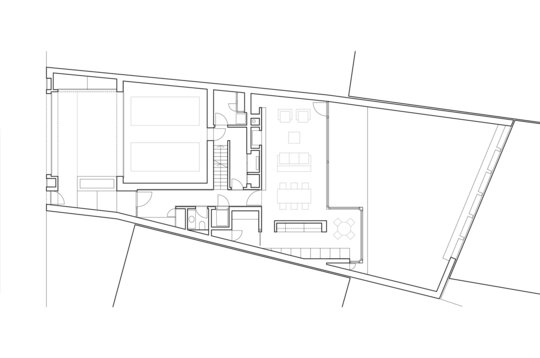
(i) Parterul este cel mai extins, cu living-ul principal, dinning-ul și bucătăria orientate spre curtea-grădină din spate. Suprafața continuă de sticlă, pe toată înălțimea – retrasă în fața living-ului pentru a crea o terasă acoperită și avansată în fața locului de luat masa din bucătărie – relativizează limita dintre interior și exterior.
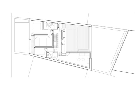
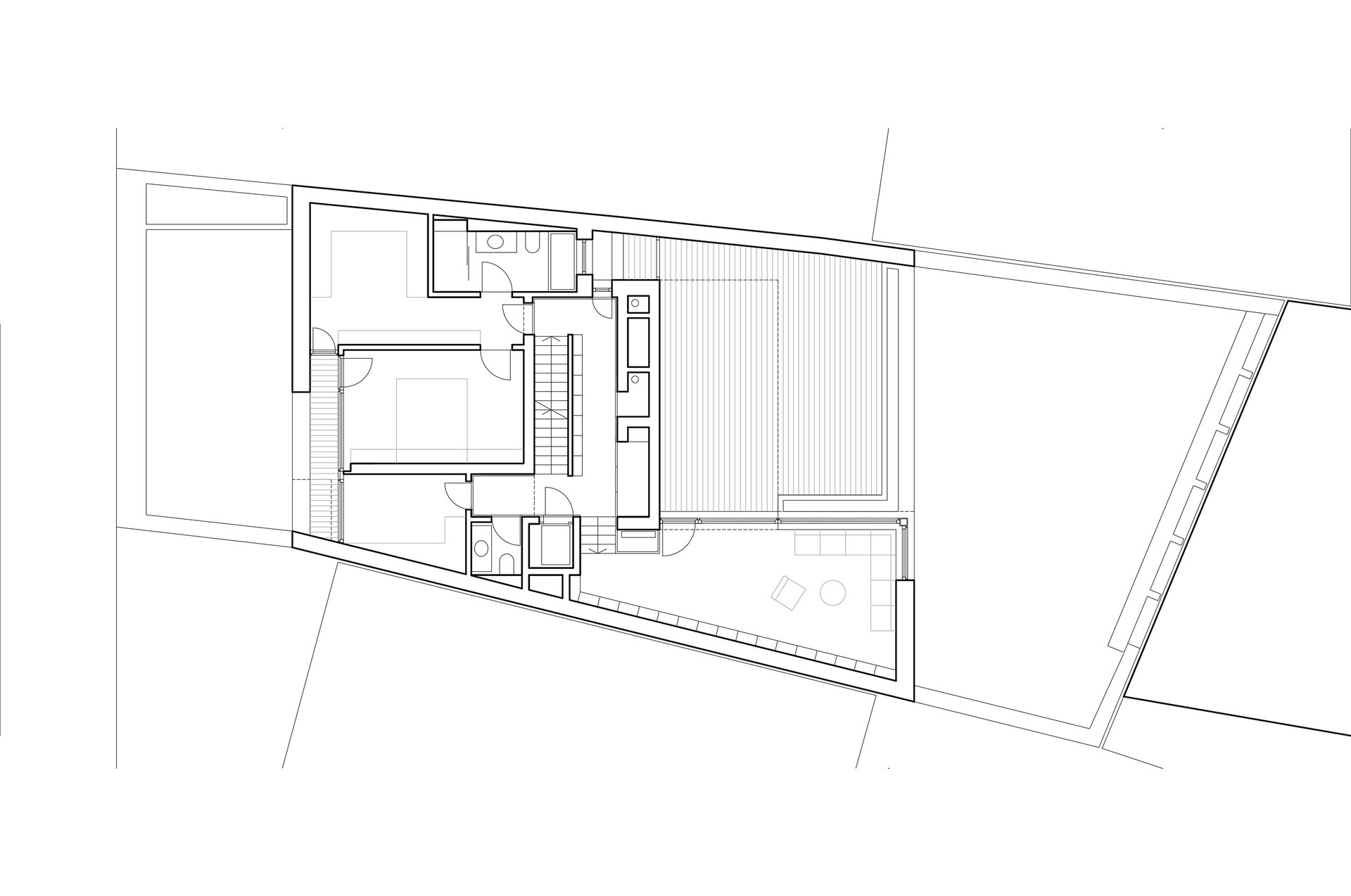
(ii) Primul etaj se retrage printr-o terasă parțial acoperită, însoțită pe una din laturi de un living secundar. Este o modalitate de a amplifica spațiul grădinii și totodată de a da formă unui mod particular de locuire, în care caracterului ”public” al parterului i se adaugă caracterul ”privat” al suitei de spații de la etaj; sau, dacă este permis, ceea ce în termenii reședințelor clasice se numeau ”appartement de société” şi ”appartement de commodité”.
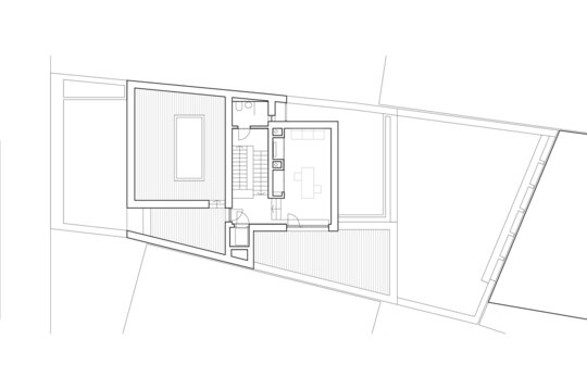
(iii) Etajul al doilea se deplasează în sens invers, acoperind terasa primului etaj cu un spațiu de lucru și făcând loc spre stradă unei terase cu o mica piscină, închisă pe contur pentru a fi ascunsă vederii. Deși exterior, este un spațiu al intimității, care nu are relație decât cu cerul și cu soarele; nu poți fi văzut, dar poți vedea, aruncând o privire către stradă prin decalajul celor doi pereți care continua pe verticală axul structurant longitudinal al parterului.
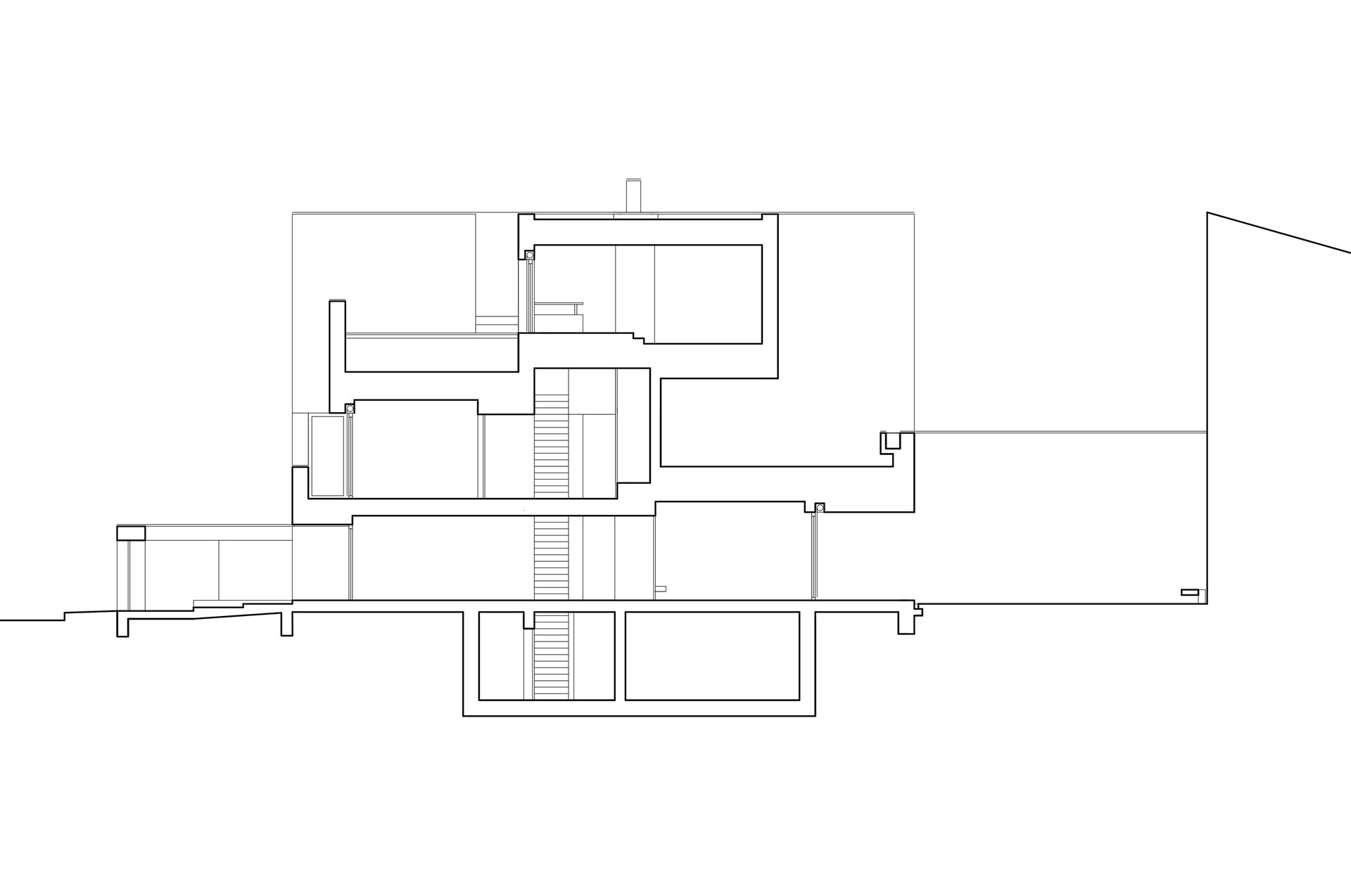
Decalajele între nivele, induse de diversitatea funcțională și de înălțimile diferite ale spațiilor, au condus la o conformare interioară care evocă parțial un Raumplan. În această logică, cu excepția parterului, segmentele scării de la primul și al doilea etaj nu sunt gândite ca simple circulații, ci ca secvențe care afirmă prin modelarea lor spațială continuitatea celor două nivele.
Caracterul ”loosian” – explicabil mai mult prin constrângerile parcelei și ale programului decât printr-o intenție arhitecturală apriorică – se manifestă și în exterior prin contrastul dintre caracterul fațadei spre stradă – pentru unii vecini contrariantă prin închiderea ei – și deschiderea celei din spate, cu toate spațiile de zi complet vitrate și orientate spre curtea plantată.
În absența unui caracter specific al vecinătăților, problema nu a fost cea a integrării contextuale – greu de fixat într-un țesut în evoluție –, ci a creării unei imagini clare și stabile, care poate funcționa și individual, dar și în logica construirii înșiruite prefigurată de regulamentul de urbanism.
Expresia cromatică este în mod voit restrânsă, singurele materialități acuzate fiind cele naturale ale lemnului (parchet, deck) și travertinului (pardoseli, glafuri) și, ca un complement tehnologic, suprafețele metalice ale tâmplăriei exterioare și elementelor de protecție solară. Interiorul este dominat de albul general al pereților, al plafoanelor și al mobilierul fix – dulapuri înzidite, biblioteci, uși filomuro, placări ale pereților –, un fond neutru căruia, prin texturi și culoare, mobilierul și obiectele decorative ale locatarilor îi vor da viață.
Sistemul constructiv este uzual, cu pereți structurali și planșee de beton armat și cu zidărie de umplutură și închidere din blocuri de BCA de 30 cm grosime. Structura nu este exprimată – pentru că intenția arhitecturală a fost centrată pe modelarea spațiului și expresia volumului –, cu excepția câtorva stâlpi metalici fini, integrați în tâmplăria de aluminiu, care permit extinderea și continuitatea zonelor vitrate de la parter și etajul 1.
Căutarea intimității înseamnă retragere, închidere, protecție – afirmarea implicită a unor atribute ale sustenabilității, ale un comportament energetic favorabil realizat deopotrivă cu mijloace tehnice și cu instrumente arhitecturale. Pe lângă izolarea termică eficientă a închiderilor, ele au urmărit limitarea suprafeței golurilor, crearea unor zone de umbră prin modelarea accentuată a volumului și prevederea tuturor ferestrelor cu storuri de aluminiu.