
Comentariul autorului:
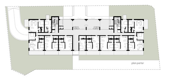
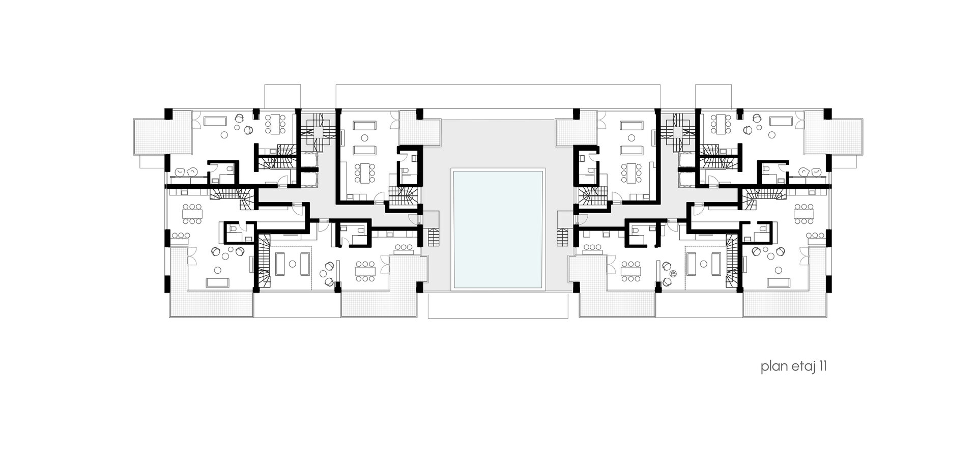
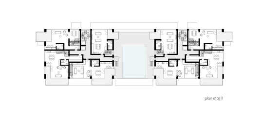
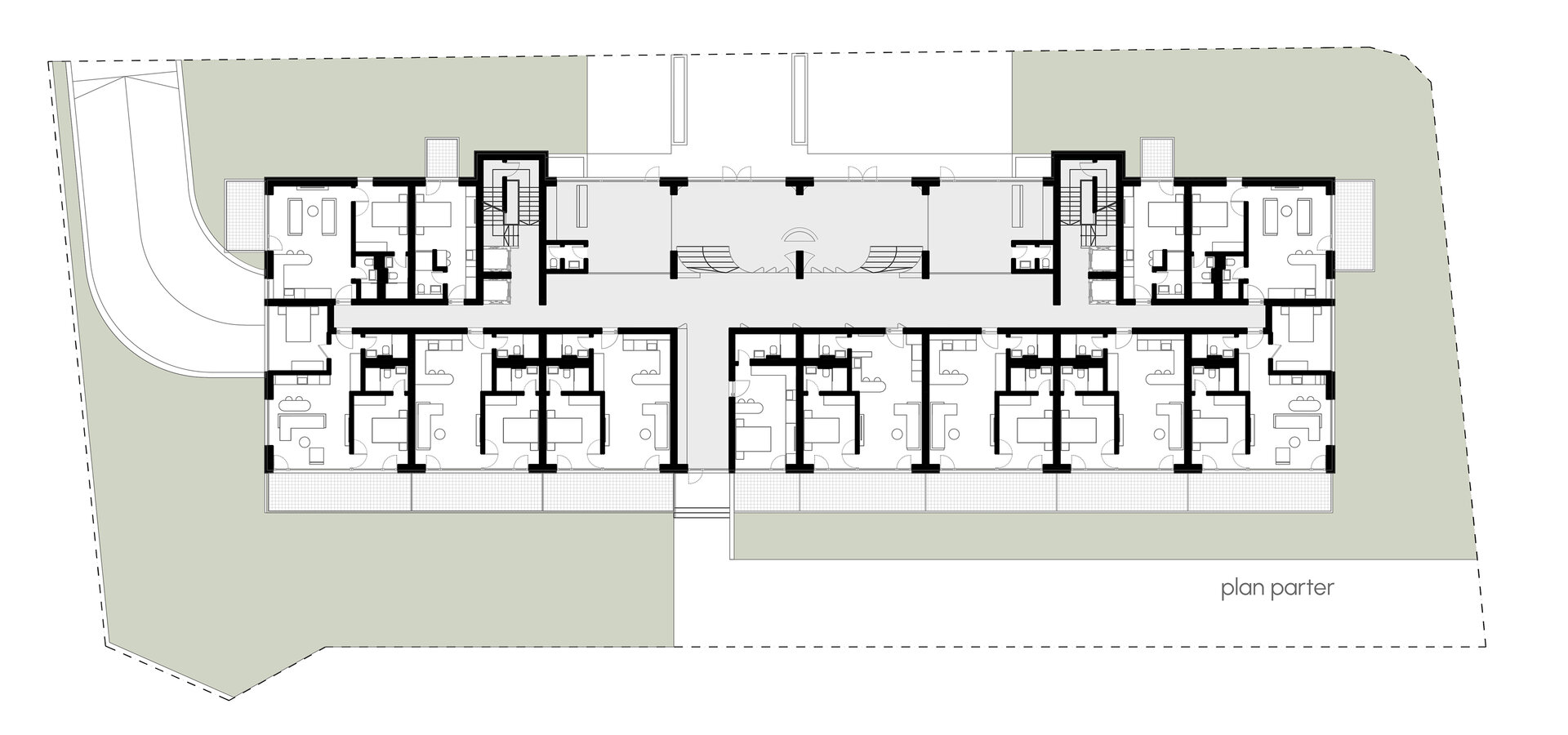
VOGH Olimp este un proiect de ospitalitate aparte situat în Olimp, Mangalia, Județul Constanța. Orientat să privească marea și deopotrivă asfințitul deasupra pădurii învecinate, ansamblul este una dintre destinațiile de vacanță râvnite de turiști. Cele 12 niveluri peste parter găzduiesc 172 de apartamente premium, proiectate astfel încât să ofere o experiență de top. Etajul al 10-lea oferă acces către o terasă, un bar și o piscină „infinity” de unde întinderea mării atinge orizontul. Apartamentele duplex de la acest nivel completează restul etajului. Clădirea beneficiază de un subsol cu parcaje și spații anexe, precum și de dotări servicii la parter. Nivelurile superioare sunt ocupate de unitățile de cazare de 2 camere, toate cu terase generoase orientate preponderent spre mare, dar și cu vederi panoramice de jur împrejur. Toate apartamentele beneficiază de utilizarea generoasă a suprafețelor vitrate care se deschid spre priveliști uluitoare ale Mării Negre și ale luxuriantei păduri Comorova, îmbinând perfect spațiile interioare cu cele exterioare.
Soluția constructivă aleasă a fost o structură în cadre cu stâlpi, grinzi și planșee din beton armat, compartimentări interioare și exterioare din zidărie cu blocuri ceramice, BCA și peretii de compartimentare din gips carton iar sistemul de acoperire este de tip terasă circulabilă/ necirculabilă. Finisajele fațadelor sunt realizate parțial printr-o placare cu fibrociment în sistem de fațada ventilată și parțial cu perete cortină. Aceste sisteme permit izolare termică, acustică, la foc și la impact, asigurând în același timp durabilitatea și aspectul vizual.
Tâmplăriile exterioare sunt din aluminiu cu geam termopan, prevăzute cu ruperea punţii termice, iar tâmplaria interioara este din lemn. Pardoselile sunt din parchet triplustrat în încăperile de locuit și plăci ceramice sau piatra pentru zonele umede, spații comune şi holuri. Clădirea beneficiază de sisteme moderne de instalații adecvate, asigurând deopotrivă confort și funcționalitate. Incălzirea spațiilor se face prin pardoseală, prin intermediul centralei termice individuale pe apartament și a sistemului de climatizare de tip split ce poate acoperi sarcina termică de răcire necesară în perioada caldă a anului. Fiecare sistem de tip split este alcatuit dintr-o unitate interioara de tip duct, montată în scafa și conectată prin intermediul unor tubulaturi/ racorduri la grile de refulare / aspirație și o unitate exterioară care este montată în balcon/terasă. Prepararea apei calde menajere se face prin intermediul boilerelor electrice.
Amenajările exterioare oferă un spațiu verde generos perimetral clădirii, amenajat astfel încât să ofere confort spațiilor de cazare de la parter, spațiul verde rămas urmând a fi amenajat prin plantarea de arbori și arbuști și gazon. Locurile de parcare de la sol vor avea ca finisaj dale înierbate, suprafața rămasă fiind amenajată cu alei de acces auto și trotuare pietonale. Ansamblul este amplasat într-o zonă ușor accesibilă pentru turiști, cu un drum scurt de acces către plajă, dar și către o plimbare prin pădurea din apropiere.