
Comentariul autorului:
Proiectul urmărește reconversia unei hale industriale urbane într-un spațiu educațional contemporan, non-formal. Propunerea caută să răspundă cu un gest clar și dens: un ansamblu interior care organizează funcțiuni diverse într-un singur corp arhitectural, urban, dar familiar.
Hala Dorobanți, actualmente supermarket Carrefour, este poziționată strategic, într-un context urban activ. În jurul său este concentrat un număr semnificativ de instituții de învățământ, ceea ce oferă oportunitatea de a explora, printr-o cercetare contextuală riguroasă, nevoile reale ale comunității și potențialele funcțiuni complementare ce ar putea valorifica acest spațiu. Din punct de vedere arhitectural, hala este privită ca o „coajă” ce permite transformări interioare, însă cu promisiunea protejării structurii sale.
Această nouă identitate integrează printr-o abordare diferită memoria locului (funcțiune alimentară) cu cea educațională și devine acum un spațiu al învățării prin experiență, comunitate și legătură cu natura. Firul Roșu este multidisciplinar, direcționând către cultură, sănătate, dezbateri și către o viață cotidiană activă. Accentul cade pe educarea către un mod de viață sustenabil, implicat, împletindu-se cu trecutul recent al halei. Funcția de piață publică contemporană este introdusă ca un gest de continuitate reinterpretată: piața reapare, dar cu un alt conținut. Nu mai e una a profitului, ci a prezenței.
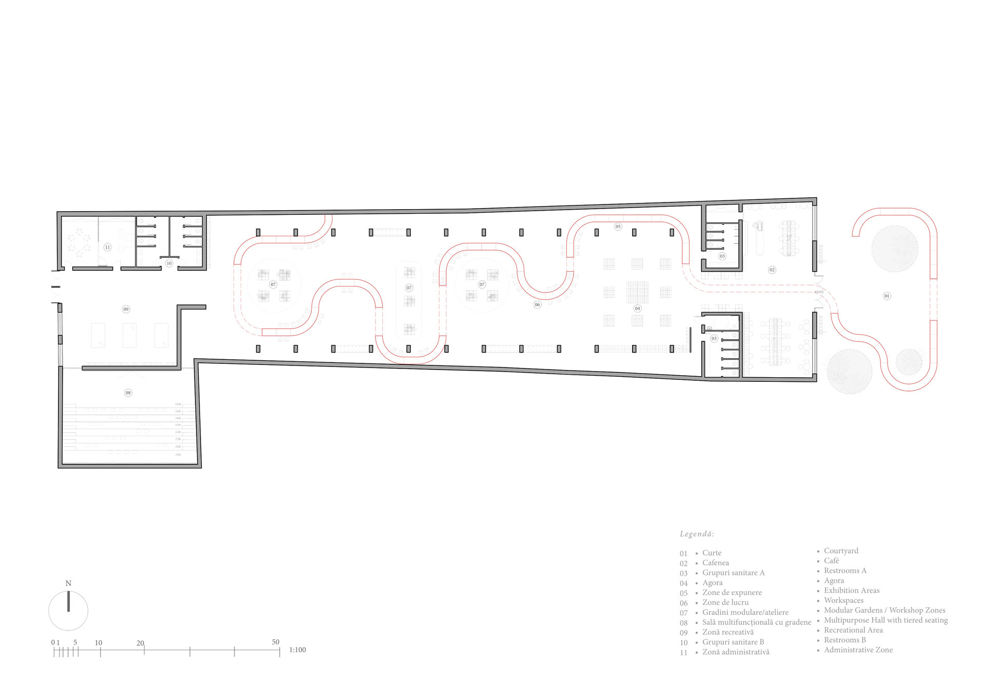
Organizat la interior fluid, eliberat de rigorile planimetriei regulate, spațiul devine un refugiu. Încă de la exterior oamenii sunt invitați, prin intermediul instalației principale, să descopere spațiul recreativ, non-conformist. Instalația îmbracă toate funcțiunile principale ale spațiului: piața, grădinile modulare, zone de expoziție, zone de studiu și relaxare. Este loc de întâlnire, de schimb, de târguri, de evenimente spontane unde toată lumea este binevenită. Realizată prin alăturarea unor 3 tipuri de module diferite, devine dominantă spațiului interior și rezolvă modularitatea zonelor principale, creând un traseu natural, dinamic, dar controlat. Firul este unul continuu aparent, fiind coborât pe pardoseală în unele zone pentru formarea unui traseu funcțional.
Intervenția arhitecturală este una discretă, interesul major fiind protejarea structurii. Așadar, nefiind posibile golurile parietale, iluminarea naturală este realizată zenital, printr-un șir ordonat de fante verticale. Dispuse central, permit razelor naturale să pătrundă adânc în hală și creează un ritm constant de lumină și umbră care animă spațiul în funcție de momentul zilei. Interiorul este dezvoltat firesc, natural, fără închideri, doar în cazurile absolut necesare precum grupurile sanitare, depozitările și zonele administrative. Structura este lăsată complet la vedere și devine un instrument valoros, în special pentru dezvoltarea zonelor laterale destinate expozițiilor. Înălțimea liberă amplă este un atu al construcției pe care l-am valorificat. Generând un sentiment de libertate și monumentalitate, în plan funcțional favorizează ventilația și confortul termic în mod pasiv. Am ales să „domolim” acest efect de forță expresivă în zona de cafenea și în sala multifuncțională prin intermediul unui plafon suspendat casetat din placaj de lemn – element ușor, transparent, dar decisiv în formarea unei atmosfere interioare primitoare.
În prima parte a traseului se regăsește cafeneaua, ce are un rol important de tranziție între interior și exterior, dar reprezintă și un filtru de relaxare, destindere pentru vizitatori. Următoarea funcțiune este piațeta: un depozitar de memorie vegetală și culturală, un spațiu deschis, modular și luminos compus cu scopul de a crea spațiile de conversație și dezbatere, esențiale în înțelegerea unui mod de viață sustenabil. Spațiul este creat cu ajutorul modulelor NODO, proiectate de noi pentru a răspunde cât mai flexibil cerințelor unui spațiu configurabil. În alveolele formate de linia organică a instalației se regăsesc grădinile modulare, instrumente reconfigurabile pentru realizarea atelierelor practice. Adiacent instalației principale sunt integrate între stâlpii verticalei zone de expunere realizate prin intermediul unor cabluri suspendate. Traseul se finalizează cu o zonă de relaxare dedicată tenisului de masă și cu o sală multifuncțională cu gradene care poate avea rolul de zonă de conferințe, sală de cinema sau loc de destindere, liniștit, pentru lectură.
Cromatic, există un contrast între tonurile de roșu, texturile reci ale betonului și albului textil. Atmosfera este una prietenoasă și deschisă, definită de dispunerea circulară a mobilierului, care sugerează dialog și conexiune. Elementele din lemn adaugă o notă domestică, iar corpurile de iluminat rotunde contribuie la o ambianță calmă, coerentă și contemporană.
Astfel, spațiul a devenit unul deschis, permeabil, polivalent, unde educația se întâmplă formal și informal, individual și colectiv, prin intermediul intervenției arhitecturale.