
Comentariul autorului:
Amplasată în Otopeni, într-un context urbanistic dominat de locuințe individuale de mari dimensiuni, desfășurate pe suprafețe ample și înălțimi de 2–3 niveluri, Casa MIR alege o prezență discretă și echilibrată: un singur nivel, o retragere față de drumul de acces – aproape ca o uliță – și o curte de primire generoasă, care preia ritmul mai lent al locuirii familiale.
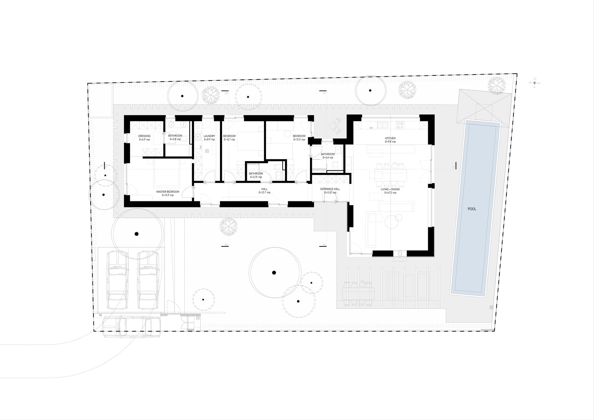
Volumetric, casa este compusă din două corpuri distincte – funcțional și estetic – articulate printr-un spațiu de acces complet vitrat, care devine axa de lumină și dialog între cele două zone. Zona de zi, marcată de o fațadă caldă din lemn și suprafețe vitrate ample, este deschisă, permeabilă și orientată spre grădină. Zona de noapte, finisată într-un gri închis, funcționează ca un spațiu protector, mai intim, dar păstrează o legătură vizuală subtilă cu restul casei.
Proiectul recuperează arhetipul casei de țară – cu acoperiș în două ape, de tip șarpantă – dar îl reinterpretează într-o cheie contemporană. Această geometrie este adusă în interior, unde contribuie la definirea unor spații ample, aerisite și luminoase. Astfel, arhitectura nu doar că evită monumentalitatea, dar valorifică subtil expresia estetică a unei locuințe calme, echilibrate și profund funcționale.
Estetica propusă nu se bazează pe gesturi spectaculoase, ci pe proporție, coerență materială, detalii bine controlate și relația dintre locuire și natură. Lemnul folosit la fațade provine din surse sustenabile, tâmplăria performantă asigură un bun control termic, iar orientarea și poziționarea ferestrelor maximizează aportul solar pasiv în sezonul rece și ventilarea naturală vara.
Casa este proiectată să servească ritmului cotidian al unei familii, să permită intimitate și în același timp deschidere, să medieze discret relația cu cartierul. În acest sens, ea susține ideea că frumusețea arhitecturală se naște nu doar din forme, ci din empatie, context și măsură.
Casa MIR oferă o posibilă direcție pentru regenerarea esteticii locuirii individuale în zonele periurbane ale Bucureștiului. Într-un peisaj construit adesea fragmentar și haotic, proiectul propune o locuință care nu domină, ci dialoghează; nu se impune, ci se așază firesc. Este un exemplu de arhitectură discretă, dar asumată, care explorează frumusețea prin echilibru, lumină, responsabilitate și umanitate.