
Comentariul autorului:
Pe Splaiul Unirii, între râul Dâmbovița și interiorul Parcului Natural Văcărești se propune un centru al biodiversității cu spații expoziționale, spații de cercetare (precum laborator), de adunare (amfiteatru) și de recreere (precum cafeneaua).
Clădirea trece peste dig legând orașul de parc, într-o maieră inedită, fluidă și organică, dorind să imite un covor de frunze căzute toamna, prinse în țepii ierbii sau - vorbind la o altă scară - imitând coroanele arborilor și trunchiurile acestora care le susțin, apărând o pădure de stâlpi. Oamenii sunt invitați să parcurgă trasee și prin exterior, în afara programului, existând alei de legătură.
Se propune o serie de soluții suplimentare menite a spori sustenabilitatea clădirii, precum ventilarea optimă a spațiilor interioare, tratamente cu vopsele speciale care nu dăunează sănătății, evitarea pierderilor de căldură prin izolare atât referitor la planșee, cât și la pereți (triplarea geamurilor adesea, fiind mulți pereți de sticlă), evidențierea facilităților pentru persoane cu deficiențe.
Spațiile interioare ce necesită încălzire sunt dotate cu sisteme în pardoseală.
Sunt instalate și sisteme de umbrire, cu lamele rotative pe ax vertical, din aluminiu, pe zonele de fațade unde există supraexpunere la radiații solare, unde nu sunt dorite.
Așadar, se vor evita sera, fațadele exclusiv orientate către nord sau nord-est, dar și cele umbrite suficient de corpurile (consolele) de deasupra. Astfel, se asigură umbrirea corespunzătoare.
Se vor aplica sisteme mobile cu storuri, montate la interior, ce pot fi controlate prin întrerupătoare de către utilizatori.
Acestea sunt amplasate pe suprafețele vitrate, exceptând acolo unde este necesară pătrunderea liberă a razelor de soare tot timpul, precum la sera (aflată pe nivelurile 2 și 3) sau acvariul sau și porțiuni din clădire unde lumina pătrunde insignifiant, de pe latura nordică, anume birourile de cercetare cu hol de la etajul 1 și biroul de la parter.
Singura zonă de vitraj orizontal cu storuri rămâne deasupra holului mare, central.
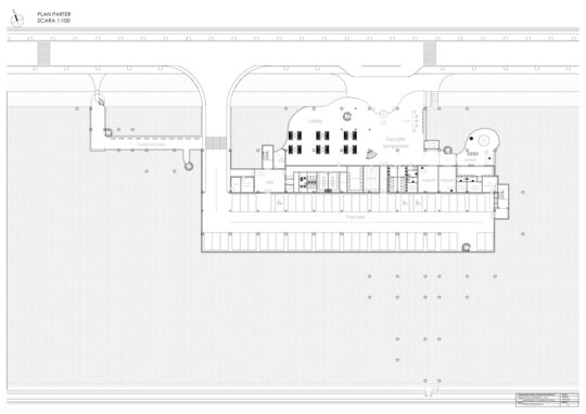
Accesul principal al publicului se face de pe latura nordică direct. Un acces pentru personal se face dintr-un trotuar nou propus. Ambele tipuri de utilizatori au câte un acces și din parcare.
Tunelul destinat legării bicicletelor este în directă legătură cu parcarea, având și o zebră, însă are încă o intrare în capătul opus, tot direct de pe latura nordică.
Este asigurat accesul pentru toate persoanele, inclusiv cele cu dizabilități, în mare parte a clădirii, precum este marcat pe planșe.
Pentru persoanele în scaun cu rotile, accesul către diferite spații este asigura prin cele 5 lifturi, dintre care 3 ajung până la terasele de la cele mai mari înălțimi, iar celelalte două se opresc la etajul 2.
Există 3 rampe de acces pentru circularea între planșee ale etajului 3, plus alta ce face legătura între etajul 2 și o porțiune centrală (altminteri închisă) de la etajul 3. Unele dintre terase și din băile persoanelor fără nevoi speciale și unele depozitări rămân inaccesibile celor în scaun cu rotile, fiind accesibile doar prin scări, respectiv prin uși mai strâmte de 80 de centimetri. În rest, lățimile necesare circulației fotoliilor și ale ușilor sunt asigurate corespunzător, inclusiv pentru cele 4 băi speciale în care acestea pot intra facil.
Parcarea este dotată cu 3 locuri pentru persoane cu dizabilități.
Rampele directe de pe dig (paralele cu panta acestuia) nu sunt omologate a fi folosite de cei în scaunele cu rotile, depășind panta maximă necesară de 8%.
Alte facilități propuse sunt suprafețele de avertizare tactilo-vizuale, indicatoarele iluminate de evacuare, panouri cu reprezentări reliefate ale animalelor și plantelor, hărți de orientare tactile și informații scrise în sistemul Braille pe balustrade. De asemenea, pentru o acuitate mai eficientă a orientării, se vor folosi culori puternice pentru marcarea evidentă a locurilor sau elementelor esențiale, ceea ce ar ajuta persoanele cu deficiențe minimale de vedere, dar și oamenii care vizitează locația pentru prima dată. Astfel peretele de la recepție va fi roșu, ușile lifturilor albastre, iar balustradele galbene.
Apa pluvială este colectată pe terase prin guri de canalizare de tip sifon, aflate la terminațiile superioare ale stâlpilor curbi care permit acest tip de colectare, urmând ulterior cursul fiecărui stâlp alături de celelalte instalații. Prin oțelul stâlpilor pot fi date găuri de mici dimensiuni, pentru instalații. Acestea sunt colectate în rezervor și utilizate ca apă gri.