
Comentariul autorului:
Încă de la început, beneficiarii au venit cu o temă foarte clară, care a trasat ulterior linia de design, atât pentru exterior, cât și pentru interior, respectiv un design inspirat de farm house-ul tradițional. S-a dorit o combinație între atmosfera farm house-ului englezesc, dar cu spațialitatea și minimalismul lofturilor americane.
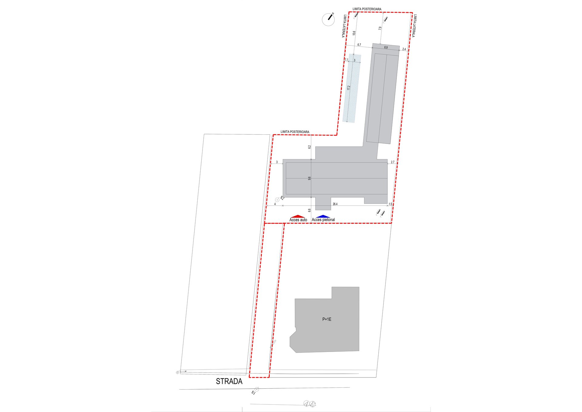
Plecând de aici, dar și de la constrângerile terenului cu amprenta în forma de L și acces excentric pe una din laturile scurte, casa s-a așezat în mod natural pe această amprenta, copiind forma terenului, cu funcțiunile desfășurandu-se gradat, public-semiprivat-privat, de la accesul pe teren spre spatele lotului.
Spațiile de primire, publice – bucătărie, living, atelier și cele private – dormitoarele - sunt grupate în două corpuri distincte, unite la interior printr-un pasaj complet vitrat, iar la exterior, printr-o copertină perimetrală ce definește și amplifică siluetă orizontală a casei. Copertina se lărgește și se îngustează în funcție de orientarea față de punctele cardinale și de spațiile subordonate, transformându-se într-o amplă consolă în dreptul terasei principale, spre vest și aproape dispărând pe latura de nord, în dreptul dormitoarelor.
Această linie orizontală puternică este contrabalansată de ritmul vertical al pilelor structurale, îmbrăcate în piatră naturală. Elementele verticale ritmează fațada și spațiul exterior, anulând subtil senzația de „coridor”.
La nivelul amenajării exterioare, curtea urmărește aceleași principii de la interior, respectiv o cascadă de curți cu caracter din ce în ce mai intim, în funcție de spațiul căreia îi corespund: dormitoarele și cele două camere dedicate hobby-urilor (camera atelier și camera de sport) beneficiază fiecare de deschidere directă către o curte/terasă privată, în timp ce livingul se deschide amplu spre curtea principală îmbogățită cu piscină și cu un al doilea living, în oglinda cu cel interior.
Un accent deosebit s-a pus nu doar pe materialele folosite, cât și pe textura acestora. Exteriorul este definit de doar două materiale principale: tabla neagră și piatră naturală, cu aspect spart. Piatra naturală se prelungește și la interior, unde se combină cu lemnul natural. Aparenta austeritate rezultată din folosirea aproape exclusiv a doar trei materiale – tablă, lemn, piatră – este compensată de un joc bogat de texturi rezultate din prelucrarea materialelor cu tehnici diferite.
Casa se desfașoară pe un singur nivel. Secțiunea arhetipală a caselor de țară, cu acoperișul de tip șarpantă este preluată și la interior, contribuind la atmosfera generală.