
Comentariul autorului:
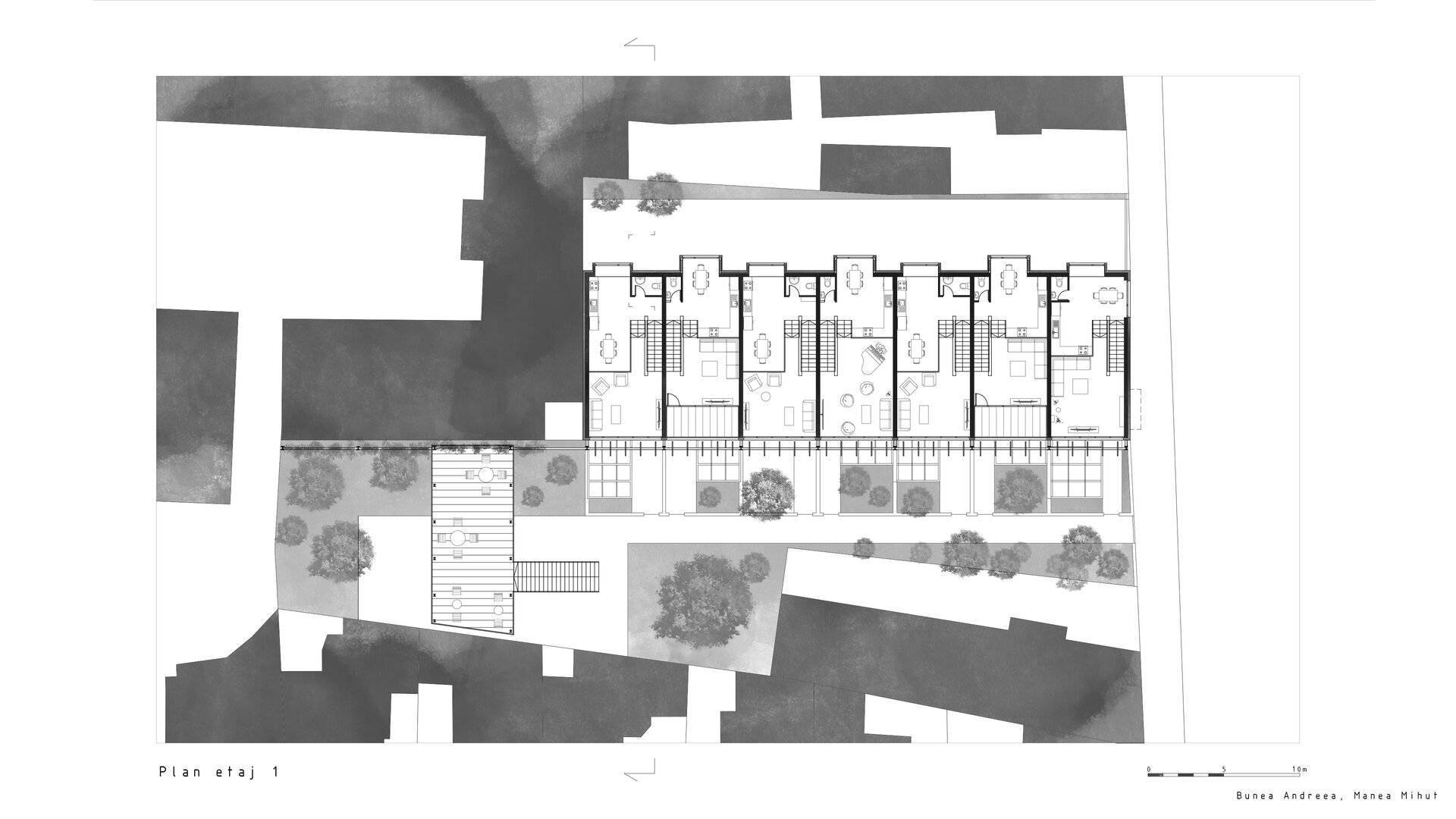
Pe strada Popa Nan nr. 52, într-un țesut central al Bucureștiului caracterizat printr-o densitate ridicată și o diversitate volumetrică, proiectul propune o grupare de șapte case alipite pe latura lungă a sitului. Din cauza unei amprente reduse, fiecare unitate se dezvoltă pe verticală, pe patru niveluri, generând o succesiune de volume care se raportează la scara mică a cartierului, dar exprimă și o nouă formă de locuire urbană compactă, adaptată condițiilor contemporane.
Ansamblul nu caută să iasă în evidență prin monumentalitate sau printr-un gest singular, ci mai degrabă printr-o discreție calculată, care valorifică contextul și aduce o soluție coerentă într-un spațiu adesea fragmentat. Una dintre principalele intenții ale proiectului este aceea de a crea un cadru de viață comună, într-un oraș unde locuirea urbană este adesea redusă la granițele stricte ale apartamentului sau ale curții individuale.
Elementul definitoriu al compoziției este structura metalică amplasată pe fațada sudică, alcătuită din panouri perforate. Acestea filtrează lumina, asigură intimitate și conferă un strat intermediar între spațiul privat și cel public, între intimitatea locuirii și prezența orașului. În același timp, structura creează o identitate vizuală unitară pentru ansamblu și un ritm arhitectural care adaugă profunzime percepției frontului stradal.
Această structură se prelungește pe calcanul școlii vecine, o suprafață adesea neglijată, transformată aici într-un suport verde. Vegetația urcătoare adaugă un filtru natural, contribuind la calitatea ambientală a curții și creând o continuitate vizuală și ecologică ce face legătura cu spațiul comun destinat rezidenților. Într-un București marcat de prezența suprafețelor de calcan lăsate nefinisate, gestul transformării lor într-o resursă pentru comunitate devine o afirmație asupra modului în care arhitectura poate reinterpreta limitele.
Curtea colectivă devine inima ansamblului – un loc de întâlnire, de dialog și de comunitate. Aceasta oferă rezidenților un spațiu partajat, menit să stimuleze viața comunitară și să contracareze izolarea specifică marilor centre urbane. Mobilierul urban, vegetația și accesibilitatea liberă a curții sunt gândite pentru a încuraja interacțiunea, activitățile în aer liber și apropierea dintre locuitori. Curtea nu este doar o anexă funcțională, ci un nucleu social, un cadru ce reinterpretează ideea de vecinătate într-un oraș unde aceasta se estompează treptat.
Din punct de vedere estetic, proiectul propune o expresie unitară, sobră, dar caldă, în contrast cu imaginea adesea haotică a materialității bucureștene. Fațadele sunt marcate de grila structurală și de jocul panourilor perforate, care devin limbaj arhitectural și principiu ordonator. Simplitatea volumetrică este contrabalansată de detaliul materialității și de variațiile luminii filtrate, generând o arhitectură care refuză spectacolul gratuit, dar caută subtilitatea și echilibrul.
Astfel, ansamblul se înscrie într-o reflecție mai amplă asupra Bucureștiului contemporan: un oraș al densificărilor improvizate și al gesturilor individuale disparate, căruia i se răspunde aici printr-o strategie coerentă, colectivă și sustenabilă. Prin organizarea compactă și prin punerea în valoare a spațiilor comune, proiectul sugerează o posibilă direcție pentru regenerarea centrului orașului, unde calitatea locuirii nu este sacrificată în favoarea densității, ci dimpotrivă, densitatea devine un pretext pentru inovarea modurilor de conviețuire.
Într-un București dominat de contrastul dintre intervențiile speculative și fragmentele de patrimoniu, această grupare de case caută să ofere un model alternativ, unde simplitatea volumelor și atenția pentru comunitate devin vehicule pentru o normalitate culturală dezirabilă. Nu este vorba despre o arhitectură care își propune să epateze, ci despre una care caută echilibrul și măsura, demonstrând că locuirea urbană poate fi atât compactă, cât și generoasă în calitate.