
Comentariul autorului:
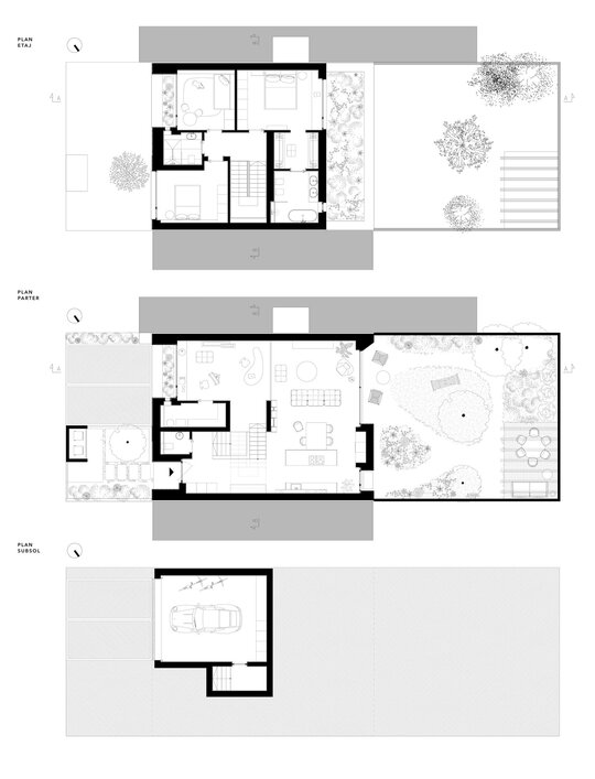
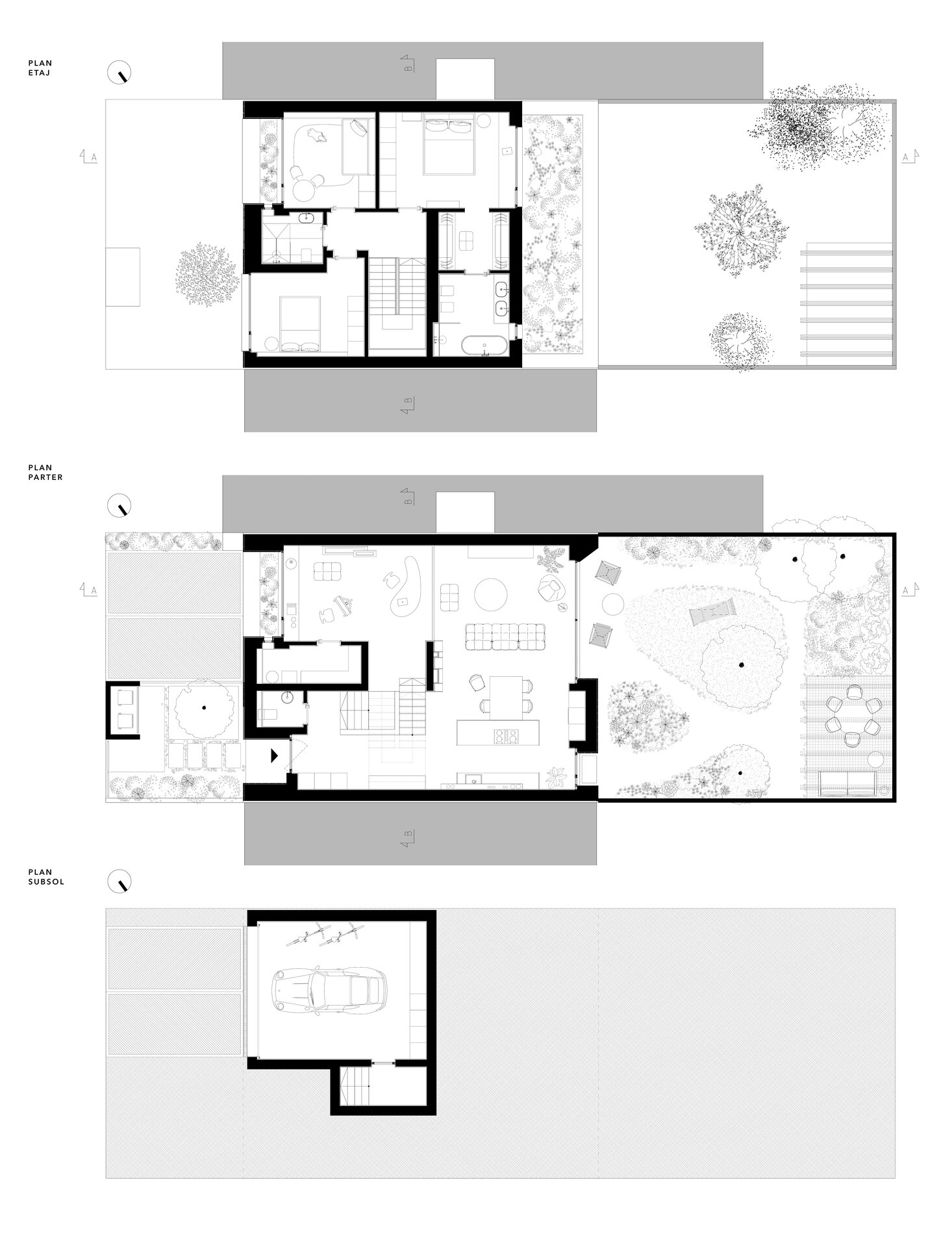
Discursul arhitectural pornește de la secțiunea caracteristică a proiectului, locuința fiind integrată într-un context urban dens cu flancări de calcane stânga-dreapta. Astfel, proiectul mizează pe jocul jumătăților de nivel, la parter rezultând spații fluide, care comunică vizual unul cu altul.
Cu o suprafață desfășurată de 250 mp, locuința se aliniază la frontul construit, alipindu-se la ambele calcane, fapt care dictează dubla orientare, către stradă și către spatiul privat al curții.
Din punct de vedere volumetric, casa este un monolit străpuns de decupaje vaste care oferă adâncime fațadei. Logia pe dublă înălțime aflată către stradă oferă prilejul comunicării vizuale cu spațiul public, în timp ce vitrajele generoase de pe fațada opusă asigură conexiunea spațiului interior cu spațiul vegetal din curte. Către stradă, casa este tratată tectonic, fiind folosit finisajul de cărămidă aparentă, în timp ce, spre curte, casa are un caracter mai domestic, tencuit alb, cu accente de cărămidă. Local, s-au folosit inserții de lemn pentru marcarea zonelor importante: accesul în locuință, logia pe dublă înălțime.
Funcțional, parterul și supanta cuprind zona de zi, iar etajul găzduiește zona de noapte. Acestea sunt conectate prin scara sculpturală, care este inundată de lumina oferită de golul de deasupra.