
Comentariul autorului:
„Vreau ca livingul să-mi reflecte felul de a fi: organizat și cald, relaxat, dar cu structură. Îmi doresc un spațiu care să aducă liniște.” Acestea nu au fost doar un brief, ci un ecou care a ghidat întregul proiect. Fiecare obiect, fiecare textură, fiecare detaliu are un rost. Nimic în plus. Doar ceea ce contează cu adevărat. Amenajarea se concentrează pe esență, rezultând un spațiu clar, armonios și primitor, în care este ușor să te simți acasă.
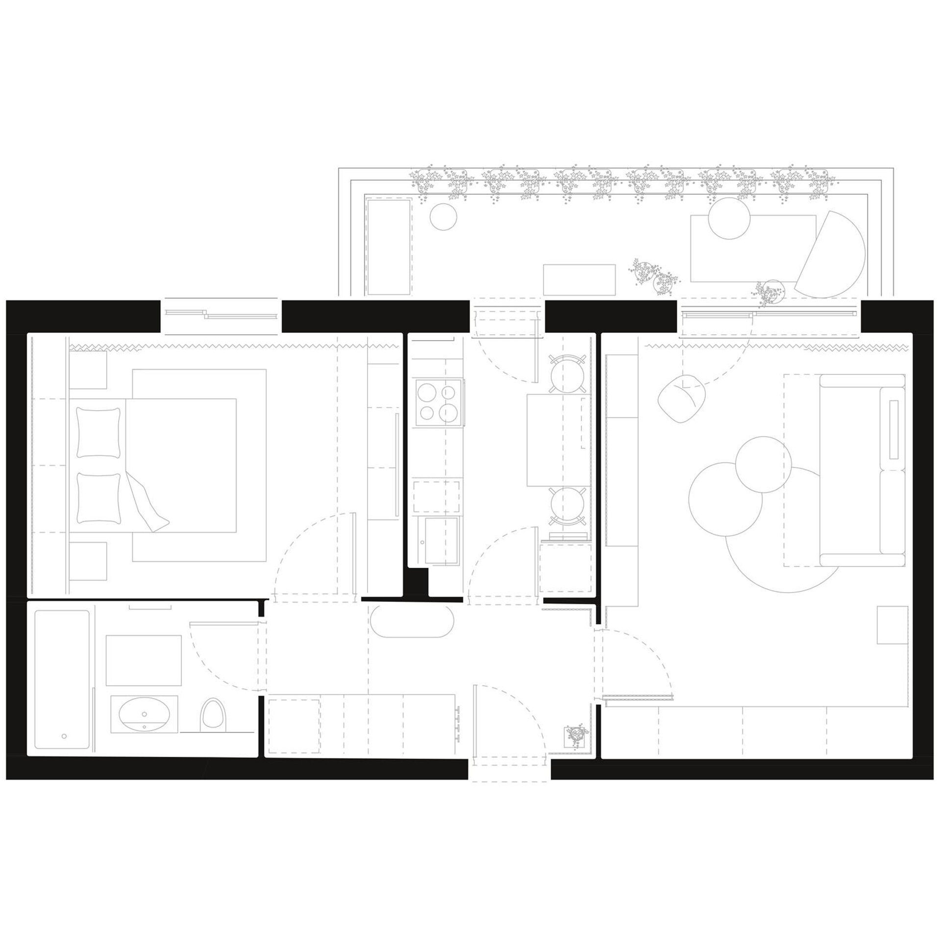
Acest apartament cu 2 camere a fost creat pentru un bărbat singur, sensibil, care își dorește să întemeieze o familie în viitor. Designul urmărește gesturile cotidiene: cafeaua de dimineață, pregătirea cinei, momentele de relaxare seara. Totul este organizat pentru funcționalitate și calm, cu materiale ușor de întreținut și soluții de depozitare generoase, astfel încât ordinea să fie naturală și lipsită de efort.
„Îmi place să gătesc, dar vreau ordine și simplitate. Fără stres.” Bucătăria a fost proiectată pornind de la aceste principii: obiectele utilizate frecvent sunt la vedere, cele mai puțin folosite sunt ascunse, blaturile și backsplash-urile subtile adaugă eleganță și durabilitate. Ritmul vizual atent calculat face ca fiecare gest să fie firesc și plăcut.
Camera de zi reflectă personalitatea locatarului: texturi moi, nuanțe calde și proporții clare. Este spațiul unde te așezi cu o cafea știind că totul este la locul lui, un colț de liniște, relaxare și echilibru. Spațiul nu este definit de ce se vede, ci de cum te face să te simți: ordinea care liniștește, ritmul care nu obosește și materialele care conferă confort tactil.
Dormitorul oferă intimitate și liniște: culori calde, lumină difuză și aerisire atentă. „Mi-am dorit un dormitor care să aducă liniște”, acesta a fost principiul călăuzitor al alegerilor de design, de la texturi și proporții până la mobilierul subtil, dar extrem de funcțional.
Rezultatul este o locuință în care totul se simte firesc și bine proporționat: zonele de living, bucătărie și dormitor funcționează ca mini-refugii, capsule intuitive în care gesturile cotidiene devin experiențe liniștite și ordonate. Elementele naturale și designul fluid transformă apartamentul într-un interior care primește, dar și invită la explorare, cu discreta melancolie a călătoriilor transformată în căldura de acasă.
Fiecare obiect, fiecare textură și ton a fost ales pentru a crea un ritm vizual și emoțional ce nu obosește. Spațiul devine un loc care îmbină funcționalitatea cu emoția, calmul cu vitalitatea, simplitatea cu profunzimea. Este un apartament pregătit să evolueze odată cu locatarul, păstrând intimitatea și confortul unui „acasă” autentic.
Într-o lume care se schimbă rapid, proiectul devine un răspuns ALTFEL la întrebarea ce înseamnă „acasă”: flexibil, dar intim, simplu, profund și personal. Designul nu cere explicații, el cere atenție. Spațiul nu e definit de ceea ce se vede, ci de cum te face să te simți: ordinea care calmează, ritmul care nu obosește, materialele care îmbrățișează fiecare gest.”