
Comentariul autorului:
Tema proiectului: construirea unui peisaj interior complex într-un volum cât mai simplu și eficient, atât economic, cât și energetic.
Miza teoretică a proiectului: în condițiile uzuale ale densității și modului de construire tipic bucureștean, casele unifamiliale sunt, de cele mai multe ori, gândite ca Parter și Etaj. Întrebarea de lucru a fost: cum pot parterul și etajul să constituie un unic proiect, determinându-se reciproc, și nu două narațiuni distincte, pur și simplu suprapuse?
Strada este liniștită, însă fără o frumusețe evidentă; situl este unul fără însușiri. Proiectul acceptă forma cea mai eficientă și mai economică – o prismă dreptunghiulară, căutând lumina și, mai ales, o ordine interioară proprie. Retragerile impuse de regulamentul de urbanism sunt transformate în grădini pe cât posibil puse în continuitate cu spațiile interioare.
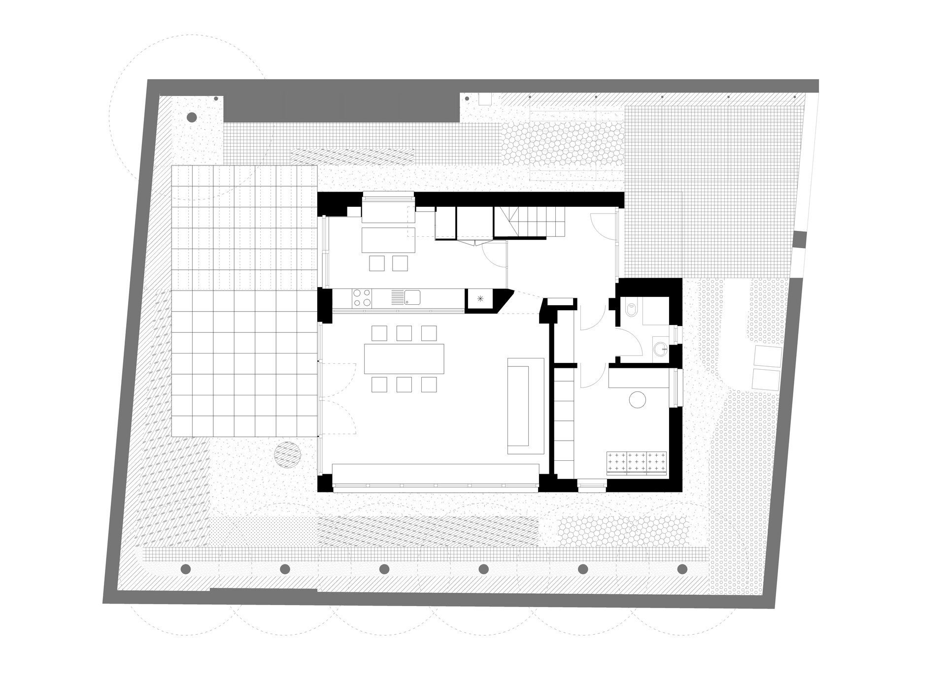
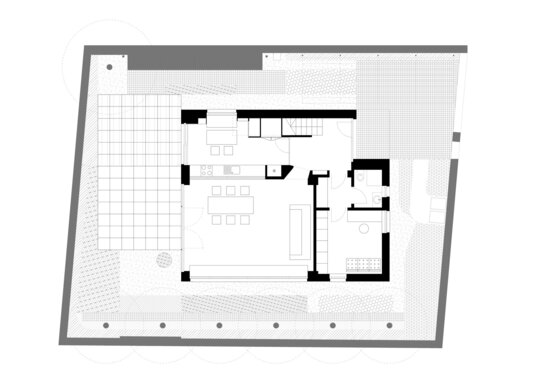
Casa își găsește rațiunea de a fi în ea însăși, în ordinea sa arhitecturală: ideea este să fie un singur proiect, o singură determinare arhitecturală, atât în plan, cât și în secțiune. Raportul spațiu dominant – spațiu servant este mutat din registrul funcțiunii în cel al scării arhitecturale, al experienței spațiale. Camera de zi este spațiul major care are forța să organizeze atât parterul, cât și etajul; deci și planul, și secțiunea. În această logică, încăperea de zi are 3,7 m înălțime: placa de beton care o acoperă a fost împinsă în sus cu 1,2 m mai mult față de celelalte camere de la parter (vestibul, bucătărie, birou etc.). Mărimea camerei de zi a fost gândită cât să permită amplasarea celor două dormitoare ale copiilor deasupra sa, accesibile printr-o scară tratată ca element de mobilier. Acest decalaj pe verticală de 1,2 m este păstrat vizibil printr-o serie de ferestre interioare care leagă vizual (cu sticlă clară sau translucidă) camera de zi cu încăperile de la etaj: hol, baie copii, dormitor matrimonial. Acest gând de a lega vizual, direct sau indirect, cât mai multe încăperi între ele, este urmărit și în plan, nu doar în secțiune: sunt legate tot prin ferestre interioare camera de zi de bucătărie, bucătăria de scară, dormitorul matrimonial de baia matrimonială, holul de etaj de baia copiilor, un dormitor de holul de etaj. Un mare luminator deasupra holului de etaj și al băii copiilor amintește de varianta inițială a proiectului, când o scară ducea pe terasă; faptul că luminatorul trece peste două încăperi amplifică complexitatea perceptivă a casei.
Peisajul interior devine un caleidoscop în care încăperile sunt legate vizual între ele, atât în plan, cât și în secțiune.