
Comentariul autorului:
Identitate calmă și design tactil pentru o clinică stomatologică
Un proiect de design interior pentru Centrul de Reabilitare Orală DentOne, situat la parterul clădirii ONE Tower, pe Bulevardul Barbu Văcărescu din București, realizat de echipa studio3plus, recunoscută pentru experiența sa în astfel de intervenții, a permis dezvoltarea unui concept fluid, imaginat ca un întreg organic prin plierea suprafețelor interioare. Detalii unice, mobilier integrat și efecte bine dozate de lumină artificială directă și indirectă contribuie decisiv la percepția unei atmosfere calme, cu accente dinamice și tactile, evidențiate și de sculptura suspendată din holul de recepție, creată de artista Ileana Oancea.
Reconfigurarea programului de servicii stomatologice
Centrul de Reabilitare Orală DentOne, aflat la parterul clădirii ONE Verdi Tower „A”, lângă Parcul Verdi, pe Bulevardul Barbu Văcărescu din București, reprezintă nivelul avansat al unui program funcțional care s-a transformat spectaculos în ultimul deceniu, datorită evoluției tehnologiei dentare și creșterii calității actului medical. Această clinică specializată în implantologie, regenerare osoasă și estetică dentară oferă înainte de toate o relație bazată pe empatie și grijă față de pacienți, astfel încât preocuparea pentru actul medical este dublată de atenția acordată creării unei atmosfere adecvate în spațiile dedicate tratamentelor stomatologice. Investițiile în tehnologii de ultimă generație au extins vechiul concept funcțional de cabinet dentar; au fost adăugate noi tipuri de tratamente și echipamente care le susțin, diversificând astfel relațiile spațiale din cadrul programului standardizat destinat medicinei dentare. Grija esențială pentru calitatea experienței arhitecturale într-un astfel de centru este demonstrată aici prin investiția alocată designului interior și prin încrederea acordată echipei de proiectare studio3plus.
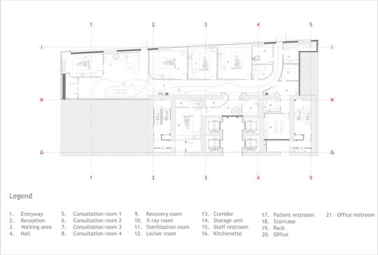
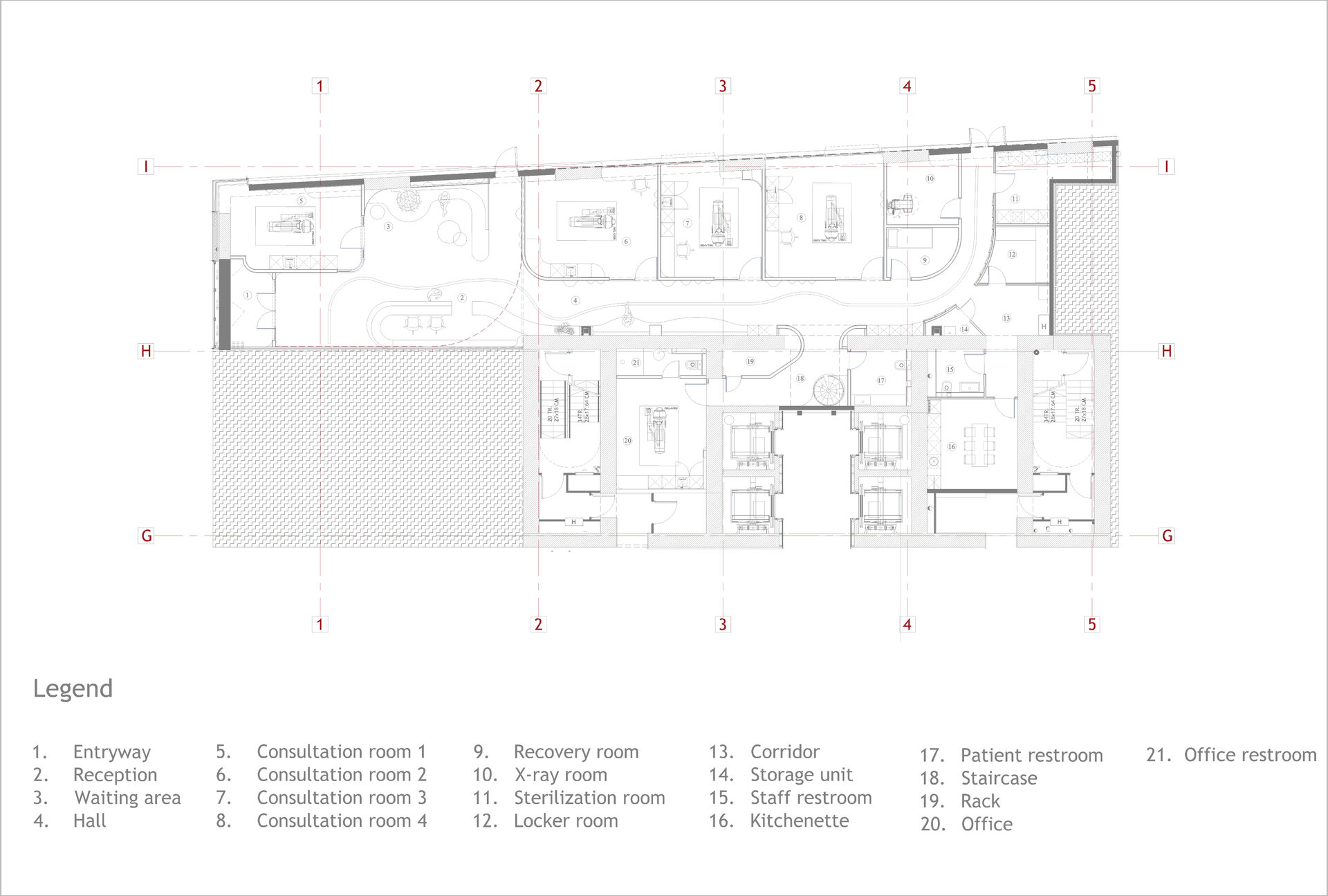
Cel mai important aspect al acestui program funcțional îl constituie spațiul public de recepție pentru pacienți, care asigură conexiunea și orientarea către cabinetele stomatologice, reprezentativ atât pentru valorile profesionale ale echipei medicale, cât și pentru starea de bine transmisă celor care urmează să treacă prin tratamente dentare. Suprafața de 135 mp destinată recepției și sălilor de așteptare a necesitat cel mai important efort de design pentru a transmite reprezentativitatea și caracterul distinct al Centrului DentOne în peisajul serviciilor similare. Nucleul experienței medicale este format din patru cabinete stomatologice cu suprafețe între 21 și 25 mp, la care se adaugă o sală de radiologie (9 mp), dotate cu echipamente ultramoderne, necesare atât pentru confortul specialiștilor, cât și pentru siguranța pacienților. Programul funcțional se extinde prin încăperi destinate sterilizării echipamentelor (10,7 mp), salonului pentru pacienți (7 mp), vestiarului pentru personal (6,3 mp), chicinetei (15 mp), biroului (16,8 mp), grupurilor sanitare separate pentru pacienți și personal (16,5 mp), spațiilor de depozitare și scării către arhiva etajului retras, permis de înălțimea parterului (14,85 mp). O parte importantă a proiectului vizează cerințele de protecție la incendiu și evacuare, în contextul unei intervenții la parterul celui mai înalt ansamblu rezidențial din București, cu 20 de etaje și 300 de apartamente, care include și alte spații comerciale.
Vibrația suprafețelor și experiența calmă a interiorului
Perimetrul disponibil pentru intervenția de design interior are un contur neregulat, latura lungă a fațadei, cu ferestre, fiind alocată cabinetelor, iar cea fără lumină naturală, din zona centrală a parterului, spațiilor de serviciu. Lărgindu-se și îngustându-se pe alocuri, lobby-ul de recepție, care conduce pacienții către cabinete, oferă zone de așteptare primitoare prin mobilierul integrat. Identitatea acestui spațiu coagulator este dată de modul în care suprafețele verticale, bazate pe placări standard din gips-carton, se ondulează spectaculos, devenind pliuri spațiale cu amplitudini variabile prin aplicarea unor profile personalizate din polistiren, tăiate cu tehnologie CNC, peste placarea obișnuită. Conexiuni curbe se regăsesc și pe pereții de compartimentare ai cabinetelor dinspre lobby, „îmblânzind” tranzițiile dintre zonele largi ale recepției și cele mai înguste de așteptare. O bandă LED la baza biroului de recepție și una curbată pe tavanul holului din fața cabinetelor ghidează pacienții în interior, spre ușile de acces, și asigură continuitatea percepției de-a lungul planurilor ondulate și vibrante vizual. Plintele din alamă articulează suprafețele unde mobilierul fix întâlnește pardoseala, iar benzile verticale de lumină LED marchează spătarele înălțate ale băncilor din partea îngustă a sălii de așteptare, accentuând calitatea tactilă a suprafețelor aflate în contact direct cu corpul.
Completată de ondulațiile largi ale mobilierului personalizat, tema plierii seriale de pe pereți continuă cu ondulații mai înguste în cabinete, unde lumina naturală și priveliștea către exterior se împletesc cu corpurile de iluminat artificiale LED, dispuse liniar sau sub formă de spoturi. Suprafețele texturate bej, integrate în corpurile de mobilier sau montate ca panouri în zonele adiacente blaturilor, cu rol de protecție în locurile de contact cu corpul, generează cele mai mici reliefuri ale suprafețelor verticale și contribuie suplimentar la experiența tactilă a interiorului.
Acest spațiu public se constituie astfel ca un întreg organic, dominat de suprafețe în tonuri predominant deschise (nuanțe alb-gri) aflate în dialog cu tonuri ușor mai închise (gri-nisip pe pardoseli, mobilier și suprafețele acoperite cu tapet decorativ). Contrastul atenuat dintre aceste două tonalități principale este susținut vizual de efectul de cuibărire spațială într-o configurație „L” a suprafețelor (plan orizontal și plan vertical în aceeași nuanță), precum și de continuitatea lor în adâncimea spațiului de distribuție către cabinetele stomatologice. Culoarea pardoselii se regăsește și pe peretele cu tapet și canapea integrată pentru zona de așteptare, iar tonul alb de pe tavan revine pe peretele opus. În contrabalans, tapițeria gri-nisip a canapelei curbate din fața recepției se suprapune peste peretele alb cu pliuri decorative, iar biroul alb de recepție pătrunde în suprafața mai închisă a pardoselii.
Proiectat special pentru acest spațiu, designul unic al mobilierului este esențial pentru integrarea suprafețelor verticale și orizontale în compoziție și pentru asigurarea unei atmosfere unitare. El adaugă un nou strat de suprafețe dinamice, cu ondulații mai ample, pentru a genera zone de ședere și a facilita interacțiunea între pacienți. De remarcat rolul spațial al canapelelor, al biroului de recepție realizat din material compozit, modelat prin curbe verticale și orizontale, al rafturilor suspendate din MDF bej cu panouri de sticlă decorativă și al corpurilor de depozitare cu sertare și mânere încastrate cu efect plastic minimalist, în acord cu ambianța calmă a cabinetelor stomatologice.
Instalația artistică suspendată deasupra zonei de intrare, o compoziție de fațete curbe în nuanțe variate de alb, asemenea smalțului dentar, creată de artista Ileana Oancea, face o trimitere metaforică la fațetele folosite în estetica dentară, dar și la delicatele instalații „suspendate” ale sculptorului american Alexander Calder. În spațiul înalt al zonei de intrare și în lumina dirijată a spoturilor din tavan, această intervenție artistică proiectează reflexe și umbre delicate pe suprafețele ondulate ale pereților, generând o atmosferă liniștitoare, cu accente onirice.
O atmosferă calmă și variabilă, care învăluie traseul către cabinetele stomatologice, activată de ondulațiile verticale ale pereților și corpurile de iluminat din tavan, continuă firesc în interiorul sălilor de tratament, transformând designul interior într-o experiență tactilă și vibrantă. Atenția acordată echilibrului între tonurile de gri-nisip, alb și bej, utilizarea texturilor reliefate și netede, dozajul luminii artificiale și diversitatea articulării suprafețelor conduc acest proiect către o apreciere a detaliilor într-o succesiune cinematografică, astfel încât lectura spațiului recuperează în final imaginea coerentă a întregului, identitatea sa formală bine sudată și atmosfera primitoare care îi învăluie pe pacienți din primul moment al experienței interioare.