
Comentariul autorului:
Situația inițială
Terenul este situat în municipiul Constanța, într-o zonă rezidențială, liniștită a orașului.
Terenul este relativ plat cu o formă dreptunghiulară, însă cu o orientare cardinală nefavorabilă datorită construcțiilor învecinate amplasate pe limita de proprietate pe toată latura de sud.
Pe teren se afla o construcție compusă din două corpuri de clădire realizate în perioade diferete - o construcție parter realizată din cărămidă nearsă care s-a demolat și o construcție parter și un etaj realizată din beton armat și zidărie din bca care s-a păstrat.
Proiectul realizat
Proiectul realizat a urmărit să rezolve necesarul de funcțiuni dorite în spații contemporane care să poată fi luminate natural.
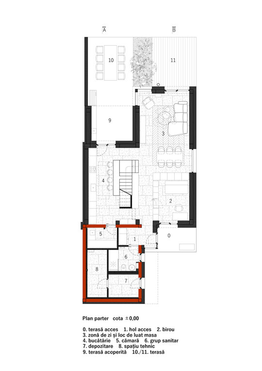
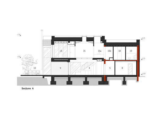
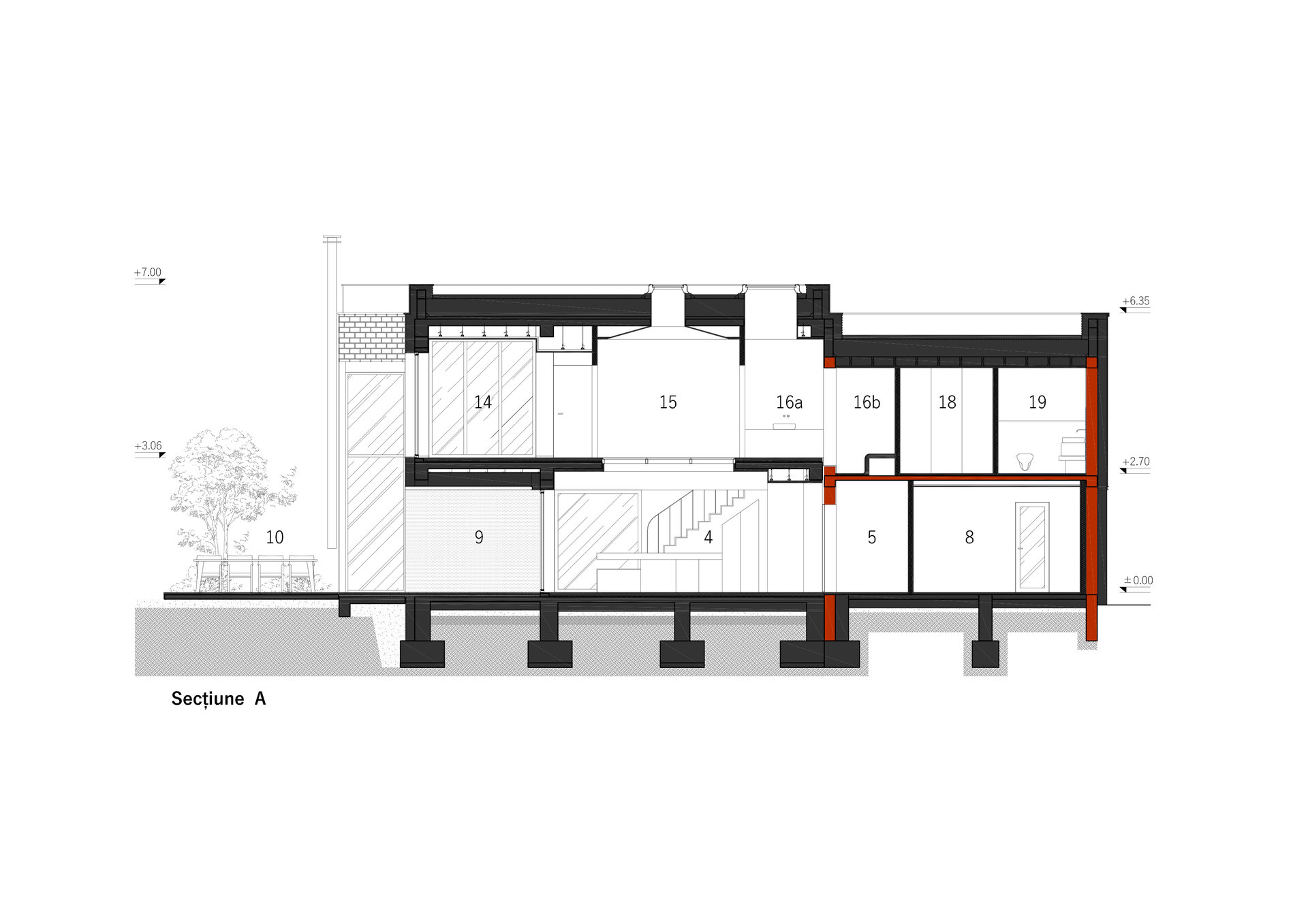
În corpul de clădire păstrat s-au realizat funcțiuni secundare ale locuinței - băi, depozitări, spații tehnice, iar în noul corp construit s-au amplasat funcțiunile principale ale locuinței - dormitoare, zonă de zi, birou și bucătărie. Noile spații având o înălțime utilă (max. 6 m) mai mare decât spațiile din corpul existent (max 2,50 m).
La parter spațiile de zi comunică între ele, inclusiv biroul este separat prin mobilier fix de restul spațiului de tip "open space", în acelasi timp aceste spații se deschid către curtea frumos amenajată preponderent un spațiu vegetal amplu și divers.
La etaj există o separare între zona părinților și zona copiilor, fiecare dotate corespunzător.
Finisajele interioare și exterioare folosite s-au dorit a fi naturale pe cât posibil și cu cât mai puține substanțe toxice sau solvenți - lemn stratificat, cărămidă aparentă, beton lăsat aparent în unele spații, piatră naturală, tencuială cu var la interior de tip "lime wash". Curtea a fost amenajată cu suprafețe ample permeabile la apă pentru gestionarea apelor meteorice.
Deși nu are o însorire ideală, toate spațiile interioare sunt luminate natural inclusiv cu luminatoare amplasate pe acoperișul tip terasă. Zona de bucătărie este luminată direct către curtea din spate dar și indirect prin intermediul unui luminator între parter și etaj și apoi a unui luminator amplasat pe terasă. A fost necesară realizarea ferestrei înalte în zona de zi pentru a aduce lumină în spațiu și pe timp de iarnă.
Neajunsul însoririi ideale a fost suplimentat cu sisteme de instalații contemporane pentru construcții pentru a avea un consum minim de energie - panouri solare amplasate pe acoperiș, sistem de ventilație cu recuperare de căldură, o anvelopă etanșă la aer, termosistem și tâmplărie exterioară performantă.