
Comentariul autorului:
Proiectul hotelului și al centrului de afaceri din Chișinău propune o viziune arhitecturală care depășește limitele unei construcții funcționale și se transformă într-un reper cultural și urbanistic. Complexul este gândit ca o simbioză între direcții arhitecturale contemporane și tradițiile culturale profunde ale civilizațiilor străvechi, în special ale maiașilor și triburilor din Samoa. Această sursă de inspirație oferă un fundament identitar puternic, care se reflectă în materialitate, formă și expresivitate.
Volumetria proiectului îmbină elemente de clasicism, brutalism și forme bionice, creând o arhitectură care transmite simultan forță și armonie. Fațadele masive, realizate din suprafețe texturate și materiale naturale, evocă stabilitate și siguranță, în timp ce inserțiile bionice, fluide și organice, dau dinamism și vitalitate ansamblului. Brutalismul este reprezentat prin proporții masive și texturi brute, apropiate construcțiilor de piatră, iar aspectele bionice fac trimitere la formele vii ale naturii, inspirate din cultura Oceanului Pacific.
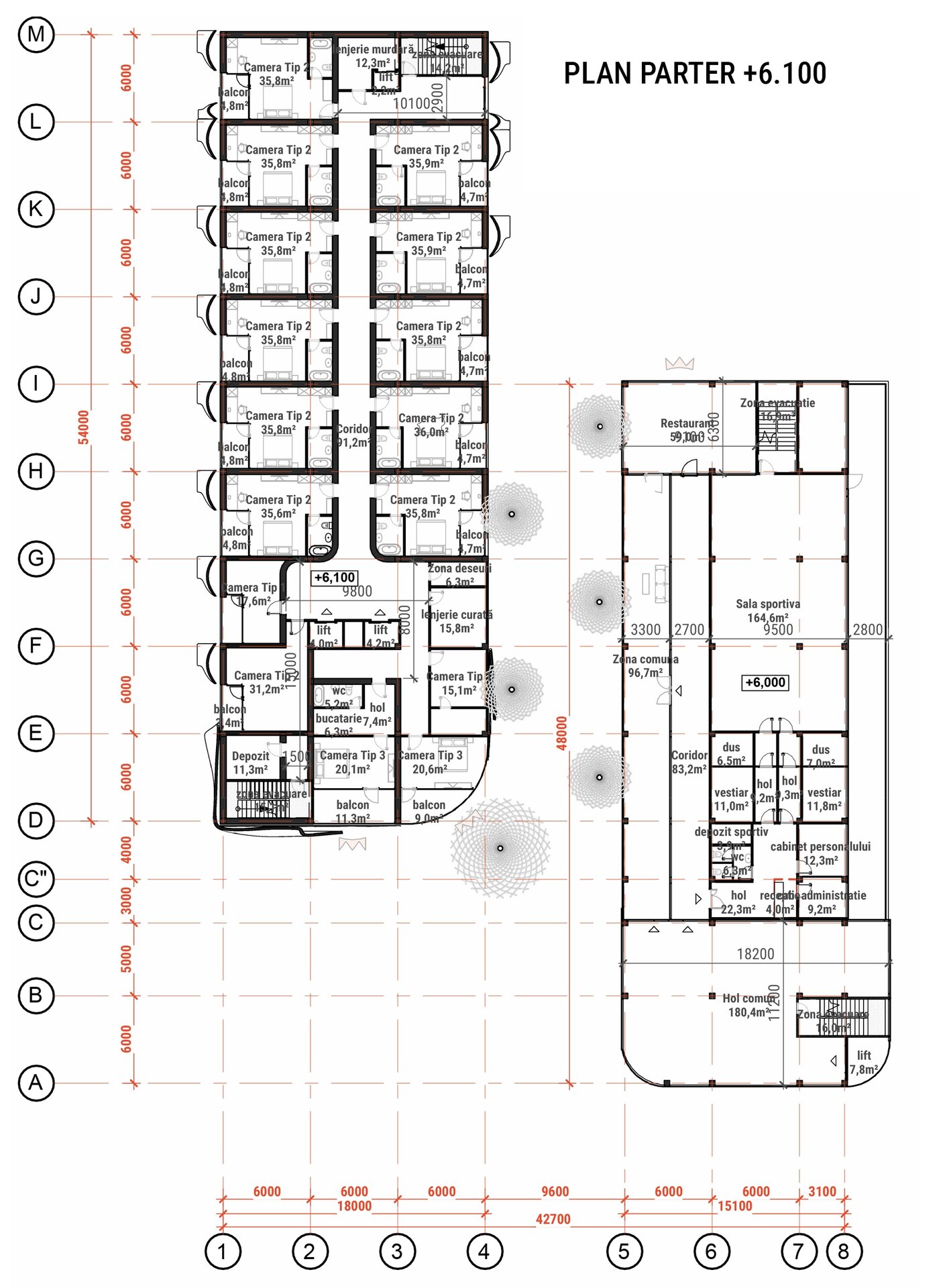
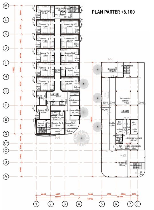
Spațiile publice ale complexului au fost gândite pentru a crea o experiență completă: zone de întâlnire, spații de relaxare, centre de conferințe și săli multifuncționale. Interiorul reflectă o atenție deosebită pentru simboluri și detalii ornamentale inspirate din scrierile antice, modelele geometrice maiașe și motivele tribale. Acestea se regăsesc nu doar în decorațiuni, ci și în structurarea funcțională a spațiilor, oferind vizitatorului sentimentul apartenenței la o cultură universală.
Un aspect esențial al proiectului este integrarea armonioasă a zonelor verzi. Terasele plantate, grădinile suspendate și spațiile de promenadă sunt gândite ca un sistem ecologic integrat, menit să reducă efectul de insulă termică urbană și să ofere un microclimat sănătos. Vegetația are rol estetic, dar și funcțional – filtrează aerul, asigură umbrire și creează un contrast natural cu texturile brute ale clădirii.
Proiectul își propune să devină un model de sustenabilitate urbană. Sistemele de ventilație naturală, colectarea apelor pluviale, utilizarea materialelor reciclabile și panourile solare integrează complexul în direcția arhitecturii verzi. Alegerea materialelor locale și modul lor de prelucrare reduc amprenta de carbon, iar structura adaptată terenului conferă stabilitate și durabilitate.
Hotelul de cinci stele nu este doar un spațiu de cazare, ci un loc de experiențe culturale. Designul camerelor și al spațiilor comune integrează simboluri inspirate din cultura Samoa și motive maiașe reinterpretate contemporan, oferind vizitatorilor o atmosferă unică și memorabilă. Astfel, proiectul creează un dialog constant între trecut și viitor, între tradiție și tehnologie, între local și universal.
Integrarea în țesutul urban al Chișinăului a fost o prioritate. Amplasamentul, situat într-o zonă de tranzit intens, transformă complexul într-un nod al vieții urbane. Legăturile pietonale și vizuale cu împrejurimile au fost studiate pentru a asigura o continuitate urbană, iar spațiile publice deschise devin extensii ale orașului. Prin aceasta, proiectul capătă rolul de catalizator social și economic, revitalizând zona și aducând un plus de atractivitate pentru oraș.
În concluzie, centrul de afaceri și hotelul de cinci stele reprezintă mai mult decât o clădire – el devine un simbol puternic al dialogului cultural și un reper urbanistic. Fiecare detaliu poartă în sine un sens aparte și o istorie proprie, contribuind la consolidarea identității Chișinăului ca oraș european modern, deschis către diversitate și inovație.