
Comentariul autorului:
Proiectul constă în amenajarea unui spațiu de birouri în clădirea Opera Center 1 pentru două companii software, ținând cont, pe de o parte, de dorința clienților de a pune în valoare calitățile brute ale clădirii și, pe de altă parte, de un termen de execuție foarte strâns.
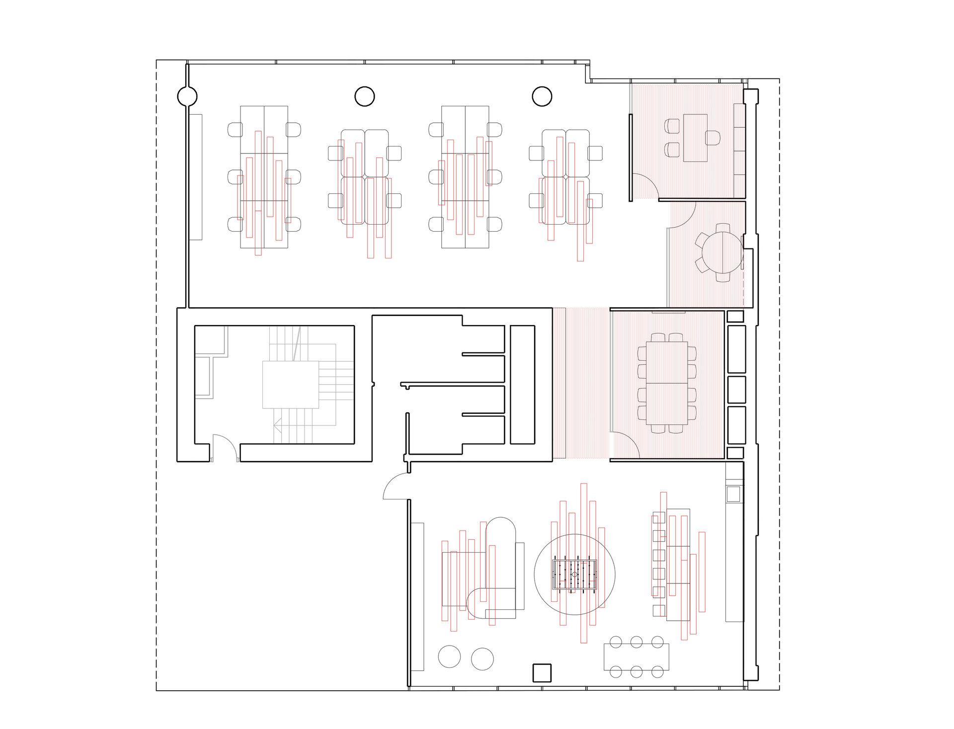
Spațiul este amenajat în două zone principale: zona de lucru, formată din spațiul open office și sălile de meeting, orientată către nord, respectiv zona de lounge, incluzând zona de acces și cafeteria, deschisă către sud.
Amenajarea pornește de la infrastructura plafonului, dată de toate echipamentele și tubulaturile de instalații specifice unei clădiri de birouri. Deseori trecută cu vederea și ascunsă în spatele unui plafon obișnuit, această infrastructură, odată expusă, oferă o nouă profunzime spațiului. Într-un plan inferior, mai multe grupuri de lamele fonoizolante suspendate se proiectează pe acest fundal brut și devin accentele cromatice ale spațiului. Totodată, acestea ritmează dispunerea mobilierului, determinând și o identitate vizuală comună celor două zone ale amenajării.
Finisajele de pardoseală și pereți în tonuri neutre evidențiază în continuare jocul plafonului, fără a încărca suplimentar amenajarea.