
Comentariul autorului:
Tema de proiectare adresează prioritar problematica domeniului construcțiilor și a informalului urban apărut în incinta siturilor post industriale. În pofida dorinței de creștere a calității vieții în Sectorul 5 din București, se remarcă practici de extindere informală, construirea neautorizata și structuri urbane/arhitecturale nefinalizate. Aceste stări, rezultă din letargia resurselor de a completa și finaliza proiectele inițiate, creându-se numeroase înfundături, elemente arhitectonice (prioritar industriale) depreciate și un țesut distopic, rupt de imaginea societății europene.
Pe măsură ce arhitectura industrială rămâne neutilizată în București, în cadrul așezărilor informale din Sectorul 5 al capitalei României, amplasamentul valoros numit Vama Antrepozitelor a inițiat o reformă locală prin reabilitarea clădirii principale de pe sit, astăzi clasată ca monument istoric. Deși în mare parte greu accesibil, spațiul este înconjurat de vegetația abundentă a Grădinii Uranus, care se deschide ocazional publicului pentru organizarea de festivaluri de muzică și ateliere de meșteșuguri.
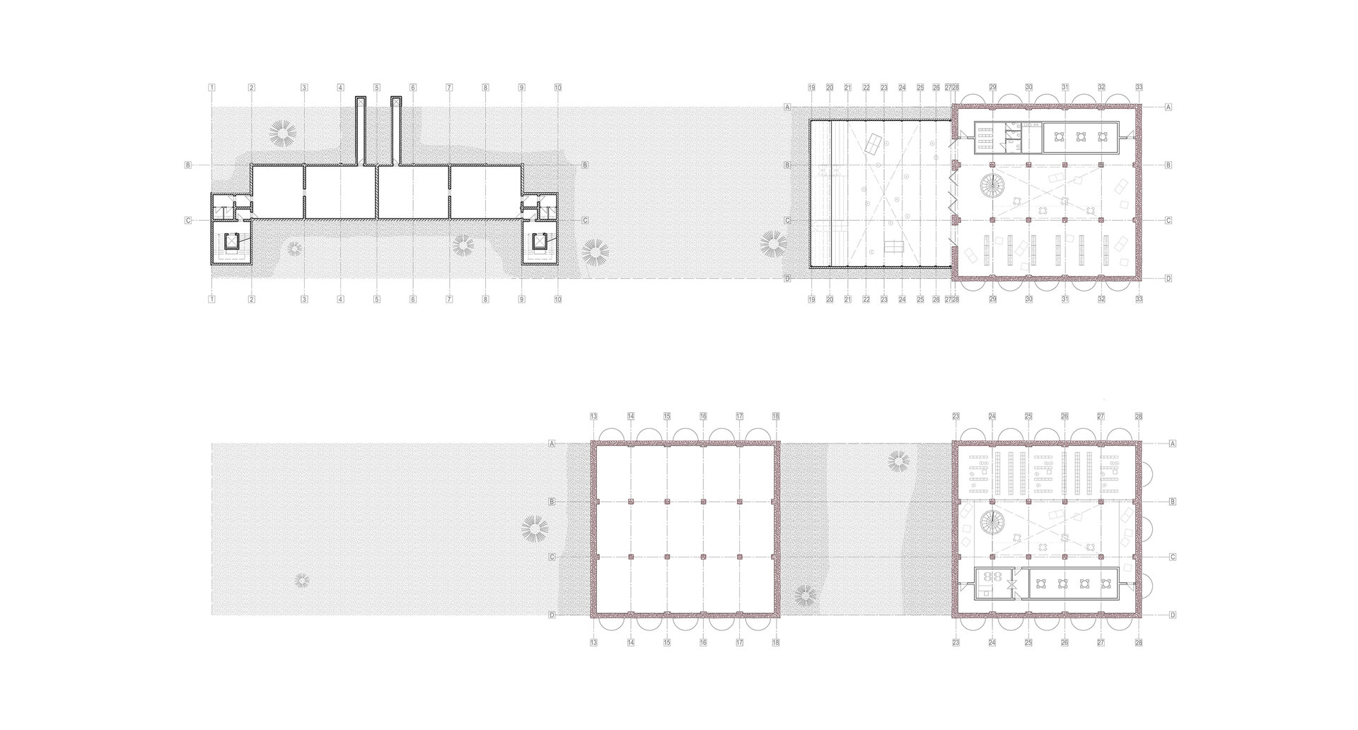
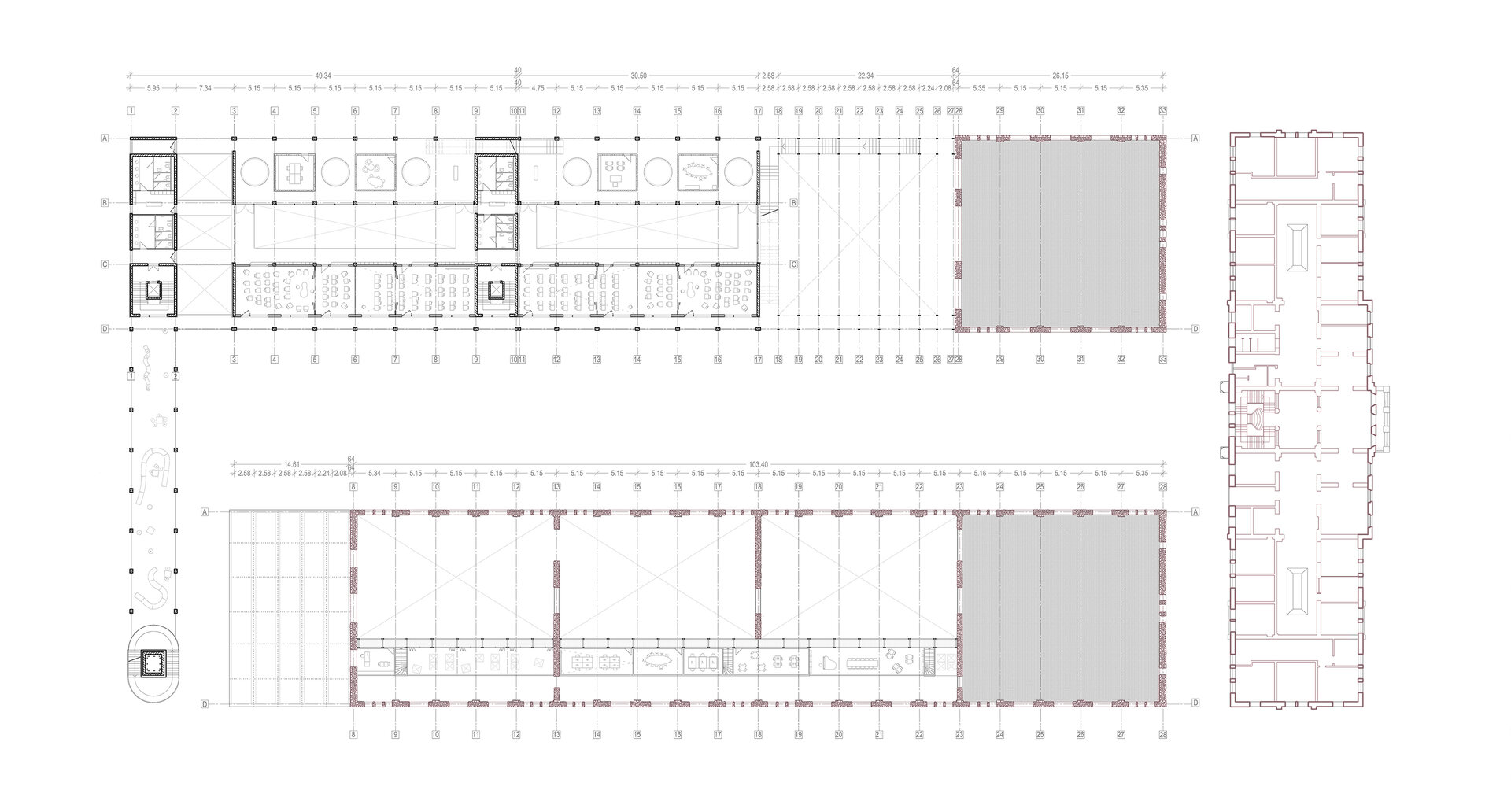
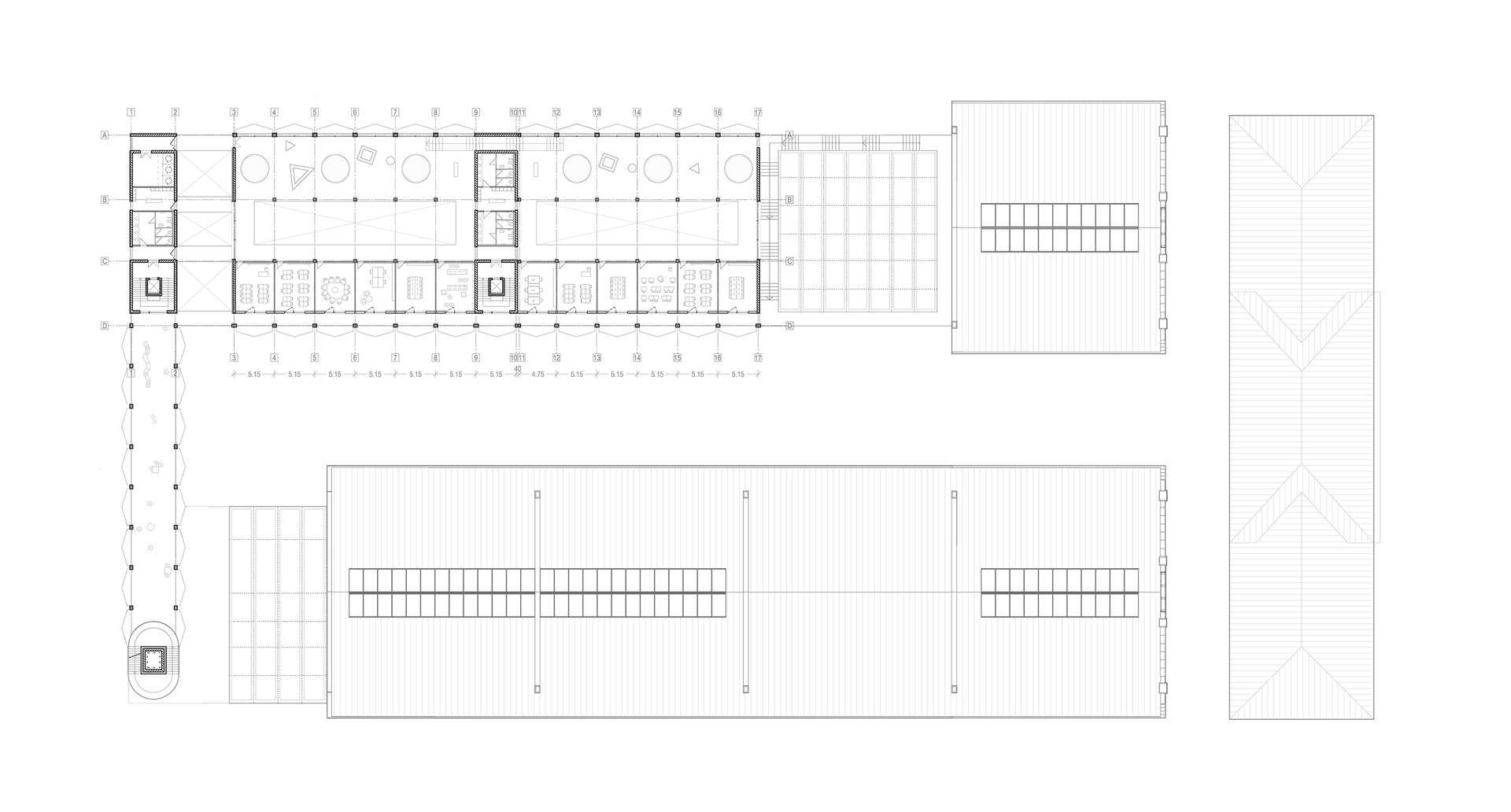
Proiectul de diplomă își modelează conceptul în jurul formalizării gesturilor arhitecturale locale prin înființarea primului sediu VET (European Vocational Education and Training School) din România. Educația inovatoare reprezintă un cadru bine definit în Europa, însă România nu sprijină încă această inițiativă. Beneficiind de arhitectura remarcabilă proiectată de inginerul român Anghel Saligny, spațiile generoase oferite de depozitele existente sunt valorificate pentru a găzdui un centru de cercetare, zone de recreere, o cantină publică și școala, ca extensie a construcțiilor actuale.Noua arhitectură își propune să creeze o atmosferă omogenă, respectând înălțimea existentă și urmând o aliniere rațională prin realizarea unui paralelism spațial. Încurajând reutilizarea construcțiilor, spațiile publice și pasarelele conectează cele două țesuturi urbane, integrând funcțiunile din jur în interiorul sitului.
Necesitatea protecției și recunoașterii patrimoniului istoric este una urgentă; spațiile exterioare funcționează ca atriumuri intermediare, menite să protejeze și să susțină reabilitarea viitoare a siturilor industriale neutilizate. Proiectul promovează păstrarea vegetației existente, a axelor istorice și a conectivității urbane cu zonele izolate ale orașului.