
Comentariul autorului:
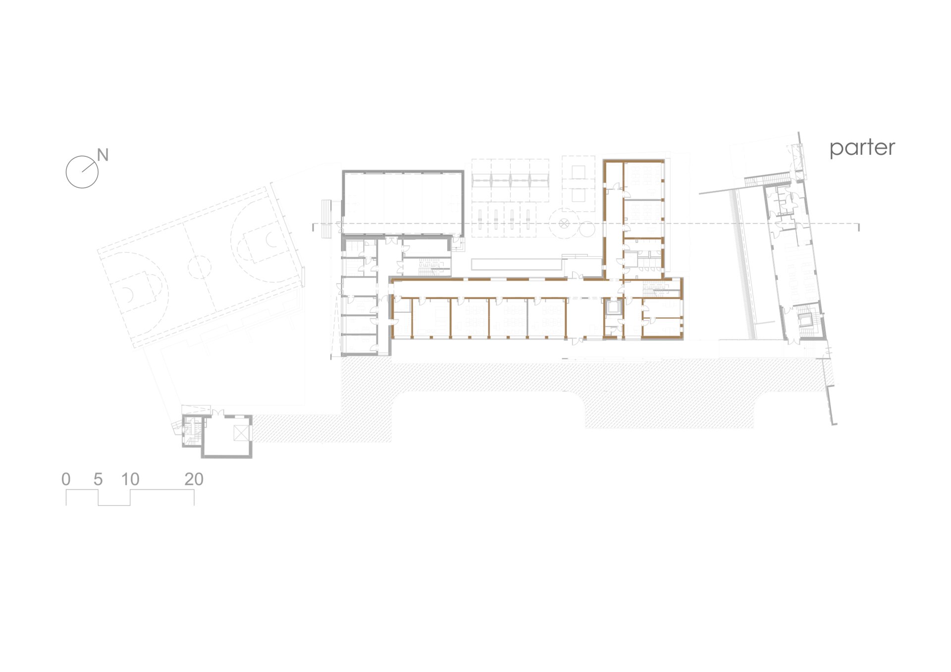
Ansamblul şcolii speciale se află în nucleul istoric al municipiului Sf. Gheorghe, pe piaţa principală a ţesutului medieval, denumit actual piaţa Kálvin. Până la mijlocul secolului al XVIII-lea aici au fost organizate târgurile periodice de marfă. Mai târziu oraşul s-a dezvoltat în direcţia sudică şi estică, centrul lui transferându-se către sud, permiţându-i nucleului medieval să-şi păstreze caracterul semirural. Dezvoltarea urbană, modernistă a secolului XX-lea îşi lasă amprenta ei dezintegrantă pe imaginea pieţei Kálvin în două locaţii una dintre acestea fiind latura nord-vestică a pieţei, unde pe o parcelă liberă s-a construit prima etapă a şcolii speciale, cu retragerea clădirii cu aproximativ 20 de m faţă de aliniamentul istoric, stradal. Proiectului tip sc. 74-59 “Şcoală cu 8 săli de clasă în mediu urban”, pe baza căruia a fost executată clădirea este un proiect funcţional, întocmit îngrijit, care reflecta cele mai progresive tendinţe şi cea mai bună practică a arhitecturii moderne. A doua etapă de construire a şcolii a fost realizată în anii ’80 conform proiectului unic întocmit de institutul de proiectare Sf. Gheorghe. Clădirile anexe au fost realizate în deceniile următoare.
Pe lângă îndeplinirea cerinţelor funcţionale, intervenţia noastră a avut două obiective: reabilitarea aliniamentului stradal prin amplasarea corpului stradal şi diferenţierea etapelor de construire evidenţiat prin textura fină a faţadelor.