
Comentariul autorului:
Proiectul presupune relocarea actualei Facultăți de Muzică din Brașov, ce își desfășoară activitatea în spații limitate și improprii într-un imobil din vecinătatea Liceului Andrei Șaguna. Lipsa unor spații specializate, dar și imposibilitatea de a extinde spațiile constituie un impediment în atingerea aspirațiilor facultății de a își îmbogăți programa de studii și de a deveni o prezentă importantă în peisajul academic vocațional. Pentru îmbunătățirea calității didactice și a mediului de învățare se propune suplinirea numărului de spații educaționale de specialitate, diversificarea lor și crearea unor zone majore de concerte și audiții, deschisă publicului larg, dar și a celui preuniversitar în cadrul școlilor de vară sau a atelierelor ce pot fi organizate aici în anumite perioade ale anului. Locația propusă se află în incinta fostului Spital Municipal Gh. Mârzescu, aflată în imediata apropiere de limita Cetății Brașovului, într-un areal cu o încărcătură istorică puternică.
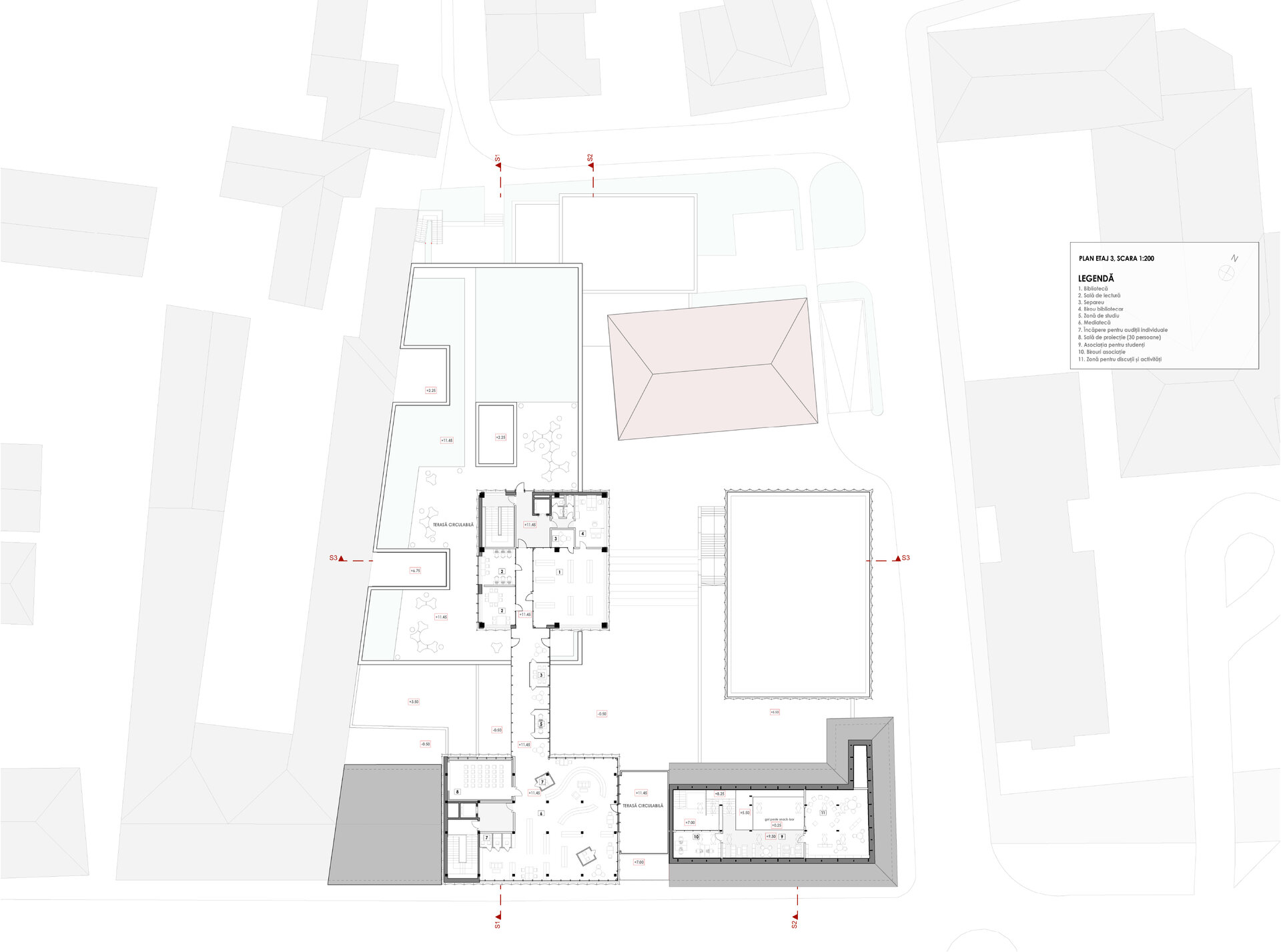
Studiul morfologic ale țestului urban a relevat că incinta sau curtea interioară reprezintă laitmotivul compozițiilor arhitecturale specifice locului, motiv pentru care ideea centrală a proiectului a sugerat o aglutinare a volumelor propuse și a celor existente prin generarea unor spații intermediare, închise sau deschise, publice sau semi-publice, în spatele frontului continuu construit existent dinspre Strada Șirul Gheorghe Dima.
Diferențele de nivel de la nivelul amplasamentului au condus la crearea unor serii succesive de terase și dale pietonale pentru a oferi o bună relaționare a corpurilor cu mediul exterior, amplificând importanța incintei principale, din care se realizează accesul către corpurile ansamblului și grupele funcționale majore, generând locuri de întâlnire spontane sau de socializare, dar și un fundal dinamic pentru privitorii de la interior, contextul multistratificat putând juca un rol important în procesul creativ.
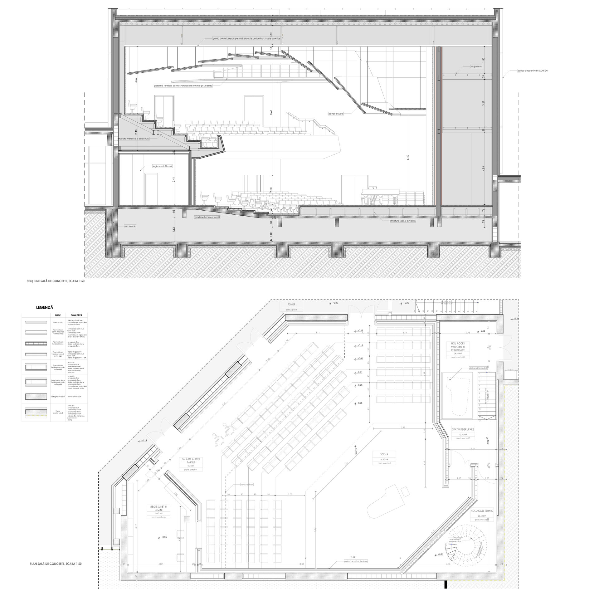
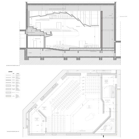
În ceea ce privește estetica ansamblului, corpurile cu o importanță semnificativă au primit un tratament special cu o fațadă ventilată din corten perforat curbat, ce îmbracă volumele cu o geometrie clară ale sălii mari de concerte, bibliotecii și mediatecii, propunând o estetică contrastantă cu țesutul urban învecinat, dar și cu fondul construit existent pe sit, constituind un melanj de texturi și accente ce devin semnale pentru trecători, sugerând existenta unei lumi noi ce se deschide în spatele fațadelor încărcate de istorie.