
Comentariul autorului:
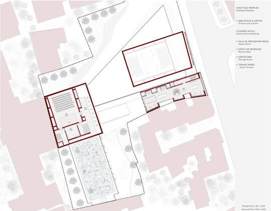
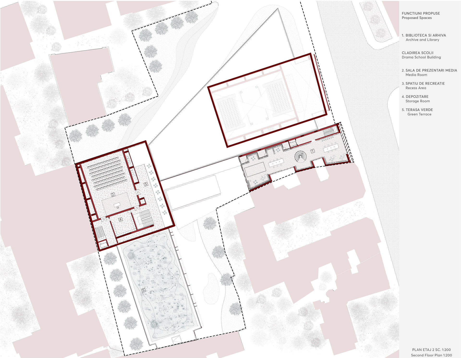
Situl propus este situat într-o zonă centrală, reprezentativă la nivelul orașului, cu un puternic caracter cultural. Proiectul completează frontul străzii Luterane păstrând fațada garajului interbelic aflat pe sit și se înscrie în morfologia locului. Inserția are două componente principale, cea publică, de teatru, și cea educațională, a facultății de arte dramatice. Direcția ordonatoare a proiectului este flexibilitatea spațială necesară experimentării artistice, ce se reflectă în arhitectură. Volumetria propusă unește cele două funcțiuni printr-o succesiune de spații interconectate, din care se desprind pe verticală corpurile aferente celor două săli de spectacol. Iau naștere două curți diferite, ce comunică vizual, fiind separate fizic de zona de acces. Tratarea exterioară este una omogenă, definită de parterul permeabil și zona superioară tectonică, în timp ce spațiul interior surprinde caracterul scenografic prin mobilierul sculptural și draperiile ce creează un efect dramatic.