
Comentariul autorului:
Terenul pe care s-a realizat locuința este situat în sudul orașului, pe un teren cu o declivitate medie, cu potențial de exploatare în a descoperi perspective interesante asupra orașului și a pădurilor din împrejurimi.
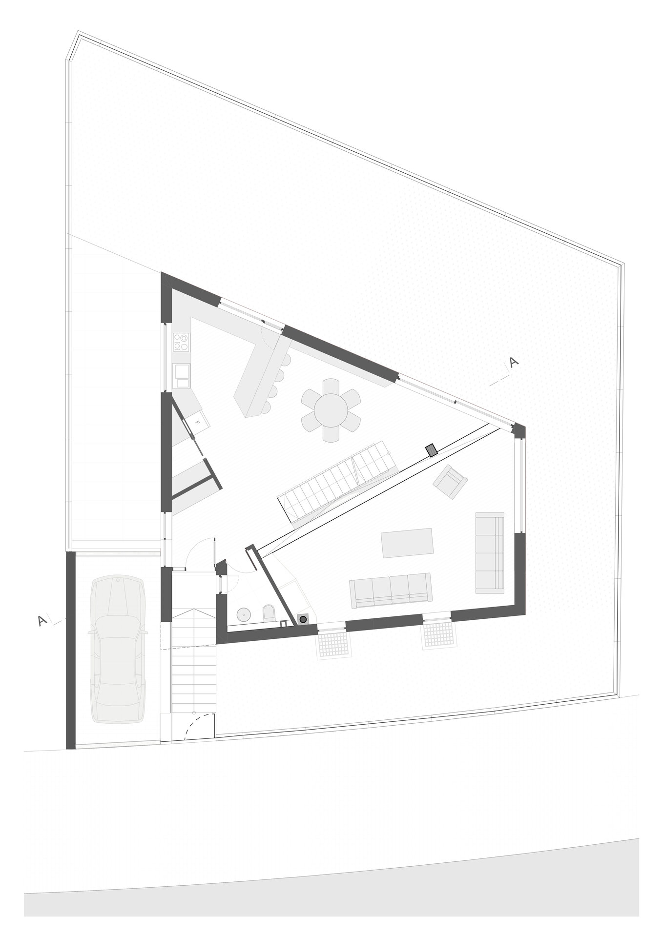
S-a dorit o casă cu multe spații interioare, generoase, care să răspundă nevoilor familiei pe termen lung. Aceste dorințe s-au suprapus cu forma neregulată a terenului, cu condiționările urbanistice și cu dorința de a realiza o casă bine integrată în sit, cu spații funcționale, interesante, orientate spre curte și spre diverse perspective exterioare. Așa s-a născut propunerea prezentată: o casă compusă pe 4 niveluri, cu o suprafață extinsă în plan până în retragerile minime obligatorii, pe alocuri cu mici extrudări, generate de nevoia de a crea o compoziție coerentă și funcțională.
Fiecare nivel are funcțiune diferită: subsolul adăpostește vehiculele, spațiile tehnice și depozitările; parterul, puțin înălțat spre stradă este conectat cu spațiul curții și înglobează zona de zi, bucătăria, spațiul comun al familiei; etajul acomodează zona de noapte, dormitoarele, iar spațiul de relaxare de la mansardă este într-o relație intimă cu terasa și exteriorul, datorită unui decupaj în acoperiș care oferă perspective asupra împrejurimilor.
Fiecare spațiu din casă are orientări diferite și generează un dialog diferit cu natura și orașul. Prin decupajul întregului volum, s-au obținut terase, logii, accente, un joc de volum care oferă intimitate și mediază spațiul interior – exterior prin jocurile de lumini și tablourile diferite ce le ofera asupra mediului înconjurător.