
Comentariul autorului:
Context
„Suntem bucuroși să anunțăm încheierea concursului nostru de arhitectură. „Grădina cu Camere” este proiectul câștigător al concursului Imagine Dumbrava Vlăsiei! Felicitări câștigătorilor și mulțumiri tuturor celor care s-au înscris în această competiție!”
14 mai 2018
Așa a început povestea concretizării unei case. Mesajul aparține unui investitor privat cu o inițiativă atipică atât pentru așa-numita „piață” a ansamblurilor de locuințe, cât și pentru practica de arhitectură (autohtonă) în sine. Mai precis, este vorba despre ideea de a construi o serie de case-model, proiectate de arhitecți români consacrați și apoi de a organiza un concurs de soluții pentru o casă suplimentară, competiție adresată tinerilor arhitecți de până în treizeci de ani. Pentru participanți, acest lucru a însemnat confruntarea, poate pentru prima oară, cu rigorile unei comenzi reale și a unei investiții semnificative, dar, mult mai important, oportunitatea de a construi.
Situația unui concurs pentru o locuință individuală pare să fie (încă) un lucru neobișnuit pentru profesie, competițiile de arhitectură fiind mai degrabă preocupate de teme „mari”, cu funcțiuni sau angrenaje urbane mult mai complexe și, în general, cu o puternică vocație publică.
Mai mult decât atât, locul propriu-zis se prefigura a fi unul străin de “tradiția românească” și particularitățile locale bine-cunoscute ale arhitecturii într-un astfel de context. Situația proiectării unei locuințe în absența oricăror date legate de cel care o va locui, dar și lipsa unei vecinătăți construite imediate sau a împrejmuirilor de orice fel, au declanșat căutarea a ceea ce este cu adevărat specific locuirii la curte.
Dincolo de aparenta promisiune a unei așezări omogene și continue de tip „American lawn”, cu case-tip adunate la periferia unei metropole, Dumbrava Vlăsiei a devenit prilejul evidențierii curții, și mai ales a grădinii, ca primă însușire a „casei pe pământ”.
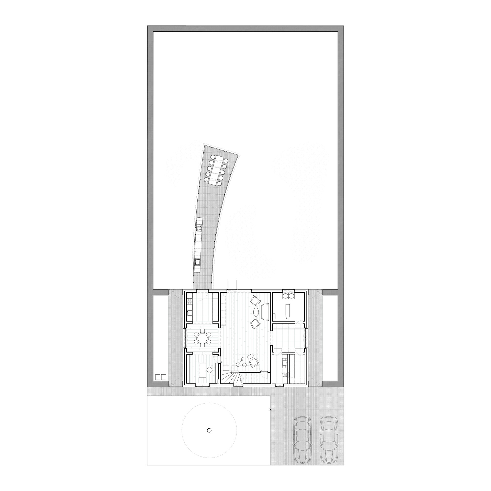
În aceste condiții, locuirea a putut fi redusă la două piese esențiale, camera/camerele și grădina, iar proiectul s-a bazat pe simpla restrângere a locuinței, care să elibereze cât de mult terenul, lăsând loc pentru ceea ce, la momentul concursului, am numit „Grădina cu camere”.
Structură
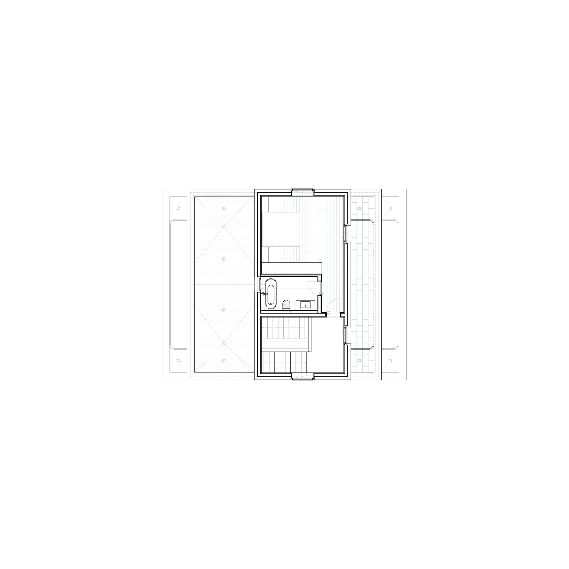
Această „simplă restrângere a locuinței” avea să dicteze o anumită ordine a construcției, gruparea tuturor încăperilor pe o porțiune cât mai restrânsă din suprafața parcelei declanșând o operațiune de stivuire/zidire a lor pe verticală. Suprapunerea dormitoarelor deasupra camerelor amplasate la cota grădinii și elevațiile-zigurat rezultate către Nord și Sud, au fost, astfel, determinate într-un mod cât se poate de direct de circumscrierea casei în silueta triunghiulară (virtuală) condiționată matematic de retragerea „h/2” față de margini. În consecință, livingul devine o cavitate interioară rezultată din limitările exterioare ale casei, iar scara un element-contrafort de sprijinire pentru umerii săi inegali.
Această dispoziție avea să determine un alt aspect important al proiectului – structura. Geometria după care sunt suprapuse camerele a revendicat betonul ca unic material de construcție, prin care să se poată materializa o astfel de dispoziție volumetrică. Construcția devine un întreg, un continuum de 15cm de beton armat atât în plan vertical, cât și în plan orizontal. Singura excepție de la această omogenitate este structura metalică a pavilionului care „plonjează” înspre exterior și aparține mai degrabă grădinii decât casei.
Problematica unui context generic a transformat, așadar, raportarea casei la sit într-o serie succesivă de pseudo-ecuații parametrice, fapt ce a redus orice fel de capricii sau afinități estetice la simpla alăturare a unui inventar de lucruri determinate cât se poate de pragmatic.
Prin urmare, vom încerca, așadar, o descriere statistică, un extras, o prescripție:
- 15cm beton (vertical/orizontal);
- 0 glafuri;
- 0 șorțuri de atic/terasă;
- 0 mobilier;
- Tencuială albă;
- Tâmplărie albă;
- Confecții metalice albe;
- Plinte îngropate albe;
- Piatră naturală albă;
- Beton dezactivat cu agregate albe;
- 1 copac (acer japonicum);
- 3 balustrade identice cu mână curentă din platbandă oțel;
- 47 de coloane din țeavă rectangulară la pavilion;
- 6 uși porte-fenêtre spre terase 100x240cm;
- 2 uși duble spre curțile laterale 210x210cm;
- 1 fereastră pătrată spre terasa necirculabilă 80x80cm;
- 1 fereastră pătrată spre stradă 140x140cm;
- 1 fereastră pătrată spre stradă 120x120cm;
- 1 fereastră pătrată spre stradă 100x100cm;
- 1 fereastră pătrată spre stradă 80x80cm;
- 1 ușă + fereastră pătrată spre grădină 250x250cm;
- 1 ușă spre pavilion grădină 120x210cm;
- 5 ferestre pătrate spre grădină 120x120cm;
- 19 praguri interioare de piatră albă;
- 10 uși filo-muro 80x210cm;
- 1 ușă filo-muro 80x270cm la birou.
Funcțiune
Faptul că locuința a fost gândită în absența unui client în adevăratul sens al cuvântului, altul decât „beneficiarul colectiv” reprezentat de promotorii/investitorii din Dumbrava Vlăsiei, a făcut ca ceea ce numeam la început o „concretizare” a casei să însemne de fapt secvența unei deveniri funcționale a cărei finalitate se va amâna până la momentul apariției celor care o vor locui.
O astfel de expectativă face ca ideea de „locuință” se se blocheze pentru un moment în suspensia misterioasă dintre proiect și pură construcție.
Aparenta incertitudine privind utilitatea firească (și inevitabilă) a casei nu trebuie însă privită ca un neajuns, lipsa unui client real, a pieselor de mobilier sau a amenajării grădinii putând fi chiar semnele unui moment privilegiat.
Casa, așa cum o vedem acum, nu pare sa aibă ceea ce numim “funcțiune”, fiind mai degrabă o alcătuire de spații fără dedicație, iar o astfel de punere în lumină, în sensul depersonalizării impuse de absența celor de mai sus, devine oportunitatea de a o descrie fără a avea un instrument de măsură care să îi contorizeze proporțiile. Din acest punct de vedere, fotografiile prezentate încearcă să expună o posibilă idealizare în raport cu scara obiectului, construcția fiind „locuită”/„însoțită” de un personaj neobișnuit, operă a sculptorului Virgil Scripcariu. Silueta îmbrăcată în ipsos se suprapune peste albul obsesiv al casei, amestecându-se cu imaginea și, în definitiv, cu situația ei abstractă.
Ne bazăm, așadar, în mod deliberat, pe efectul acestei deformări exagerate, considerând că din acest unghi casa din Dumbrava Vlăsiei, „Grădina cu camere”, vorbește cel mai bine despre locuire, în mod paradoxal, în absența ei.