
Comentariul autorului:
Locuinta „KA”_ priveste catre padure.
Locuinta „KA” reprezinta ideea unui proiect aplicat pe un teren relativ mic in suprafata de 407mp, intr-un context urban aglomerat, la limita fondului construit rigid al blocurilor (locuinte colective) si zona padurii (padurea Pustnicului-zona Baneasa).
Propunerea solutiei de partiu si ocupare a terenului implica o integrare completa a regulamentului din zona, respactand prevederile PUZ-ului avizat.
Locuinta se desfasoara pe o suprafata construita desfasurata de 306.77 mp, cu regim de inaltime S partial +P+1E+TERASA.
Bilant teritorial proiect.
S teren = 407 mp din acte si din masuratori
S construita existenta = 0.00 mp
S desfasurata existenta = 0.00 mp
POT existent = 0.00%
CUT existent = 0.00
S construita maxim propusa locuinta Sp+P+2E = 115.39 mp
S desfasurata maxim propusa locuinta Sp+P+2E = 306.77 mp
POT maxim propus locuinta Sp+P+2E = 28.35%
CUT maxim propus locuinta Sp+P+2E = 0.75
H max locuinta propusa Sp+P+2E fata de terenul sistematizat = 10.00m
Lungime maxima refacere imprejmuire = 79.46 ml,
din care: Imprejmuire TIP 1 = 46.14 ml
Imprejmuire TIP 2 = 33.32 ml
Hmax Imprejmuire TIP 1= 2.00m, TIP2 = 2.50 m
Accesul se face pe latura sudica din Drumul Padurea Neagra.
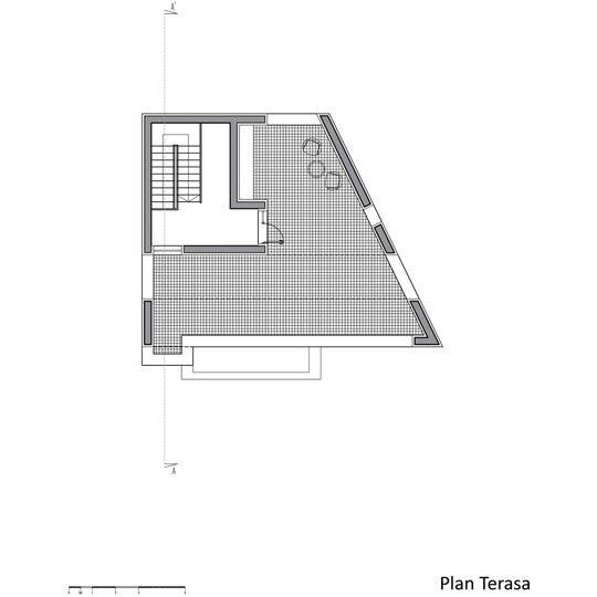
Din punct de vedere volumetric plinul masivului construit este alterat de scobirea spatiului terasei si extinderea fata de masiv a spatiului zonei de zi. Tratarea fatadelor, respectiv principala si laterala sunt astfel conformate incat sa asigure intimitatea necesare spatiului interior, oferind o orientare clara catre zona de padure prin zonele vitrate si decupajele generoase propuse in fatada principala.
Deschidererea casei si perforarea volumului casei, se orienteaza in acest fel catre zona de padure aflata vis a vis compensandu-se in acest fel lipsa spatiului curtii. Din volumul general rezultat in urma retragerilor impuse de zona, decupajele subliniaza zona de zi si spatiul terasei ca spatiu al zonei de curte urcata pe casa.
Volumetric, zonele obtinute si percepute ca niste decupaje profunde ce evidentiaza si marcheaza diferit zonele de finisaje realizand asfel delimitarea clara a zonelor de placari metalice si texturi tencuite insotite de placari de piatra naturala.
Ne lovim adeseori, de situatii in care vizibilitatea vecinatati reprezinta o problema, atat de organizare cat si de orientare a locuintei.
In contextul acestei locuinte, blocarea catre zona de spate, intoarce cumva spatele zonei de locuinte colective, oferind numai mici decupaje si aduce natura in atmosfera locuintei prin fanta terasei si vitrajul generos din cadrul parterului si a zonelor de dormitoare cu orientare clara catre zona de padure. Orientarea urmarita la nivel
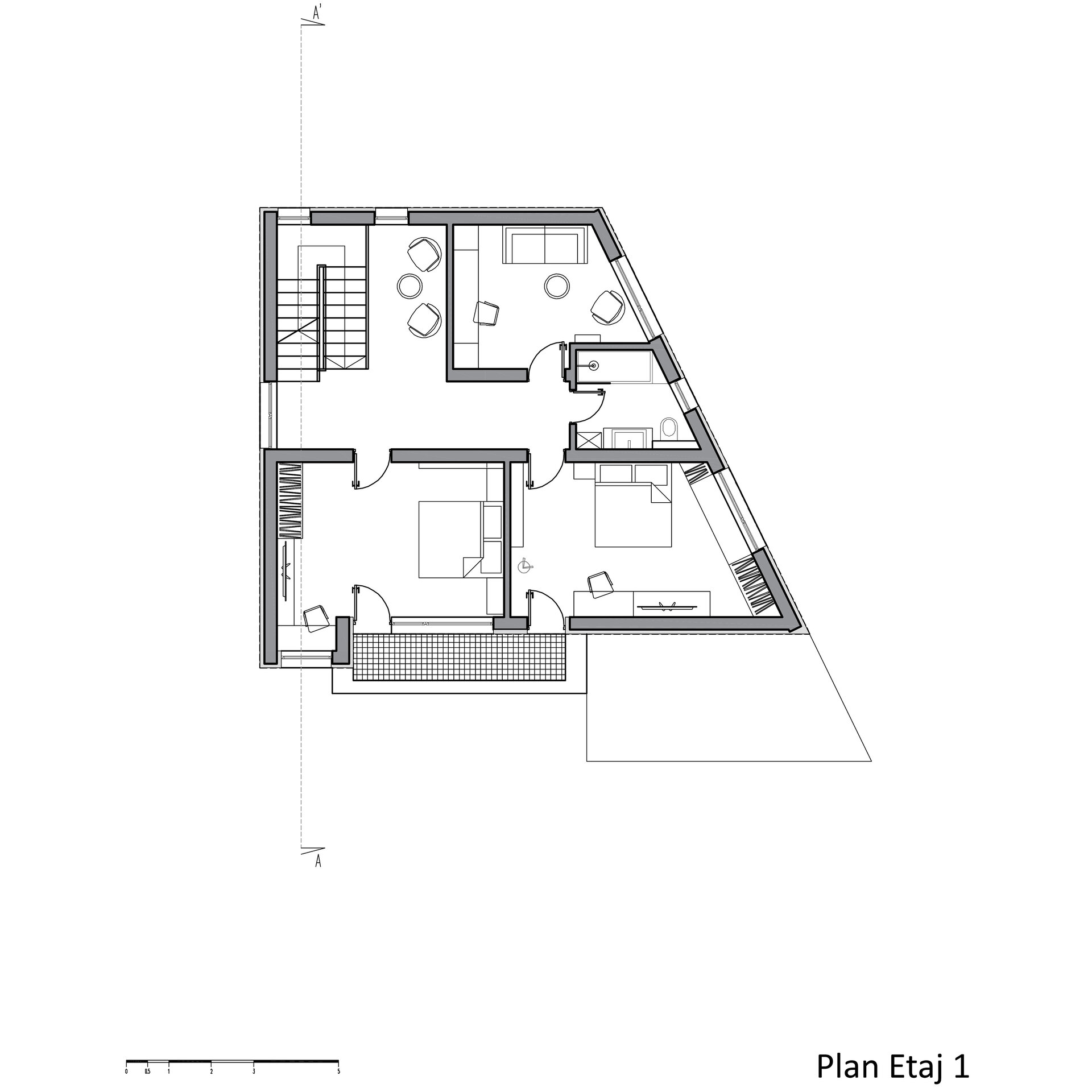
volumetric este sustinuta atat in planul fatadei cat si in sectiune, unghiul de vizibilitate si deschiderea fatadei parareste nivelul cotei de acces si sustine o deschidere catre zona de nivel 1 (etajul dormitoarelor) si perforare si deschidere totala catre zona terasei respectiv a nivelului 2.
Locuinta propusa imparte din punct de vedere functional, zona de zi folosita in mare parte de parinti in partea de parter si zona dormitoare copii spre etajul superior eliberand astfel terenul pentru o zona de terasa, spatiile tehnice si de intretinere a casei sunt proiectate catre subsol. Forma trapezoidala in plan genereaza in partea de interior o conformare a spatiului cu zone mai putin accesibile, care au fost insa exploatate la maxim prin integrarea si mascarea zonei de echipamente tehnice si sanitare cat si cu zone de depozitare ce devin foarte putin
vizibile. Pentru prima data putem spune, ca am realizat un dressing aproape invizibil in zona de hol, folosind partea de oglinzi si decoruri incat sa participe intr-un mod placut la spatiul livingului cat sa si ajute sa mareasca vizual spatiul interior creat. Catre zona de bucatarie, tot dIn considerente de spatiu, am ales o usa culisabila pe cadru metalic cu sticla securizata – cu un dessign modern si personalizat, care sa permita o mai buna utilizarea a spatiului in zona de servire a mesei cat si in zona de bucatarie.
Elementul definitoriu pentru geometria locuintei „KA”, fanta terasei, finisata cu placaj metalic cu aparenta de lemn dicteaza logica amenajarii interioare. Intr-o compozitie cu linii drepte, puternice, lemnul de stejar este omniprezent, incalzind atmosfera si fluidizand intreg spatiul, care este perceput astfel mai mare. In continuarea procesului de proiectare de arhitectura, alegerea finisajelor si a mobilierului functioneaza ca un liant intre nevoile utilizatorilor si coerenta stilistica dorita, optimizand functiunile casei in timp ce redau personalitatea membrilor familiei in noul camin.
Gama cromatica aleasa imbina culorile finisajelor naturale cu accente de culoare data de print-urile personalizate. Verdele pastelat, ocrul vesel si griurile calde alcatuiesc in proportie de 90% paleta de nuante folosite. Vedeta amenajarii o reprezinta lemnul natural de stejar, cel care isi pune amprenta in mod constant si in proportie mare asupra
ambientului. In acest fel, consideram ca folosirea elementelor naturale in proportie cat mai mare, reprezinta cu siguranta imaginea cea mai putin degradabila in timp a calitatii amenajarii.
Colaboratori finisaje:
- Elemente decorative – tapet + riglaje – Premier Decor / Valcea
- Finisaje pardoseli si bai obiecte sanitare – Delta Studio Executie
- Mobilier, canapele, mese scaune – Delta Studio
- Corpuri de iluminat – EDAR electric /Craiova
- Balustrada de sticla – Glass Design Home
- Confectie metalica – Lunix Decor
- Drapaje si perdele – Profdesmob