
Comentariul autorului:
Clientul este un colaborator de încredere al biroului de proiectare. Proprietatea sa se află în zona Dâmbului Rotund al Clujului, pe o stradă prietenoasă. Terenul prezenta o declivitate dinspre stradă înspre grădină, unde elementul principal este nucul de dimensiuni considerabile.
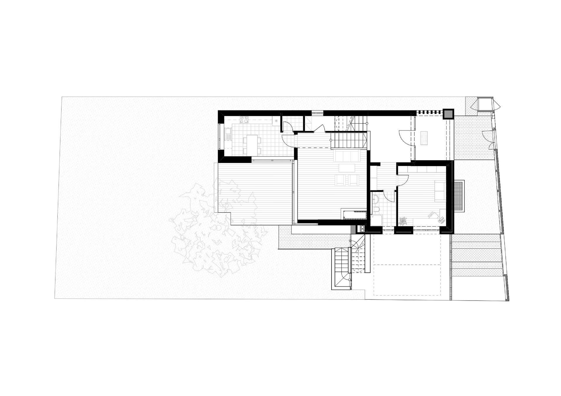
Organizarea spațială interioară pe niveluri decalate reprezintă soluția de la sine înțeleasă. După accesul prin ușa dinspre stradă printr-o serie de trepte, se ajunge la nivelurile cu dormitoare sau se coboară către zona de zi, cu bucătăria și locul de luat masa. Aceste spații se organizează în jurul terasei exterioare acoperite. O imensă grindă în consolă susține colțul exterior al terasei, evitându-se astfel realizarea unei fundații în proximitatea nucului. Relația dintre spațiile interioare, terasă și grădină este naturală și plăcută.
Execuția lucrărilor de construire s-a făcut sub supravegherea atentă a beneficiarului. Elementele de închidere exterioare de zidărie de cărămidă aparentă, componentele din lemn încleiate și tâmplăriile de lemn sunt completate lucrările de tinichigerie executate de către beneficiar pentru propria casă. Acestea cuprind învelitoarea din tablă fălțuită, închideri de fațadă din tablă fălțuită, jgheaburi, burlane, șorțuri de tablă, toate lucrate cu pricepere și plăcere.