
Comentariul autorului:
Grădinița este mai mult decât un simplu edificiu - este un mediu care oferă micilor exploratori o cale colorată către cunoaștere și dezvoltare. Inspirată de această viziune, Grădinița din Cut este concepută ca o oază de descoperire și joc care semnalizează către înțelegere, creativitate și interacțiune.
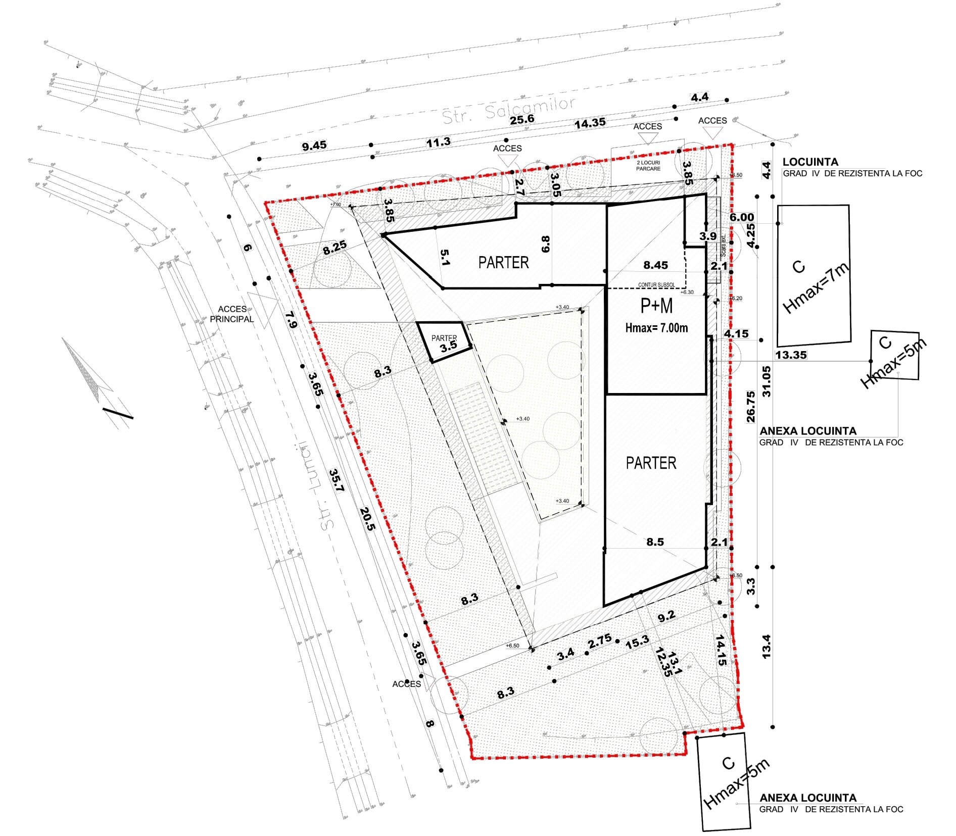
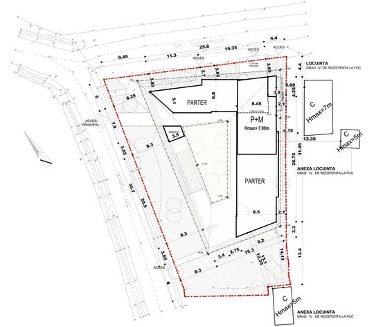
Volumetria neregulată a clădirii se îmbină cu jocul culorilor și retragerilor, formând o siluetă distinctă și prietenoasă în peisajul urban. Această abordare arhitecturală reflectă ideea că educația este un proces complex, alcătuit dintr-o varietate de aspecte și experiențe.
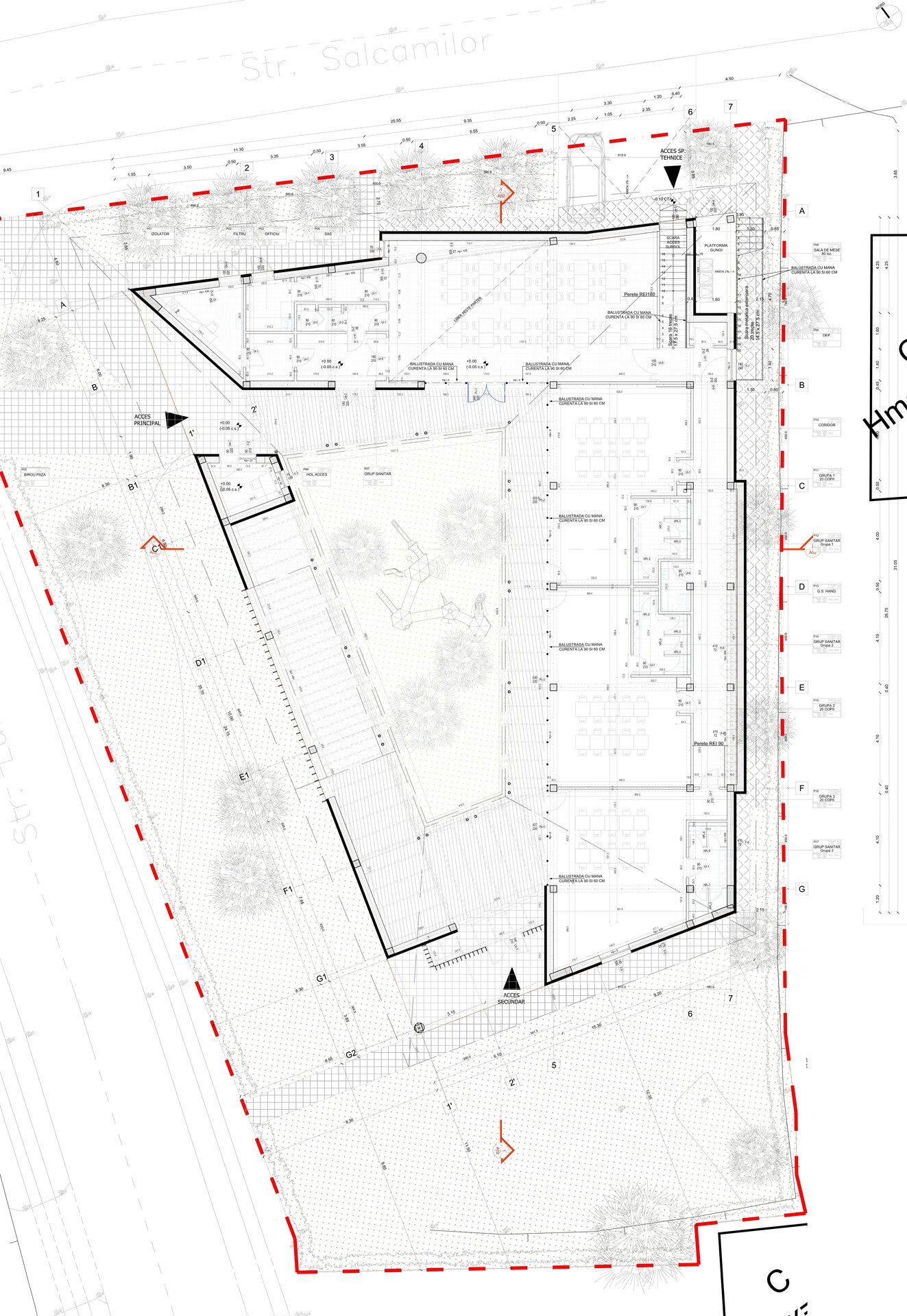
Curtea interioară servește ca o inimă a grădiniței, unde copii se pot juca și pot explora. Spațiul de joacă este un teren de aventură în sine, conceput pentru a stimula imaginația și a încuraja interacțiunea și colaborarea între copii. Această idee este dusă mai departe în planul clădirii și dispunerea sălilor de clasă care gravitează în jurul acestui spațiu central.
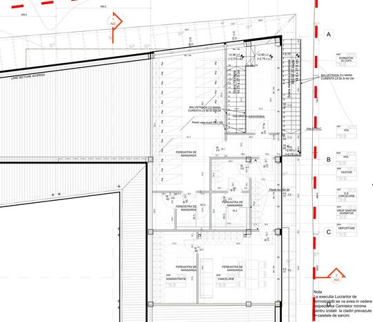
Conceptul se traduce într-o construcție cu o structură pe cadre din beton armat și o acoperire de tip șarpantă cu forme neregulate. Brise-soleil-ul vertical de pe fațadă adaugă un element estetic, dar și
contribuie la eficiența energetică și confortul interior.
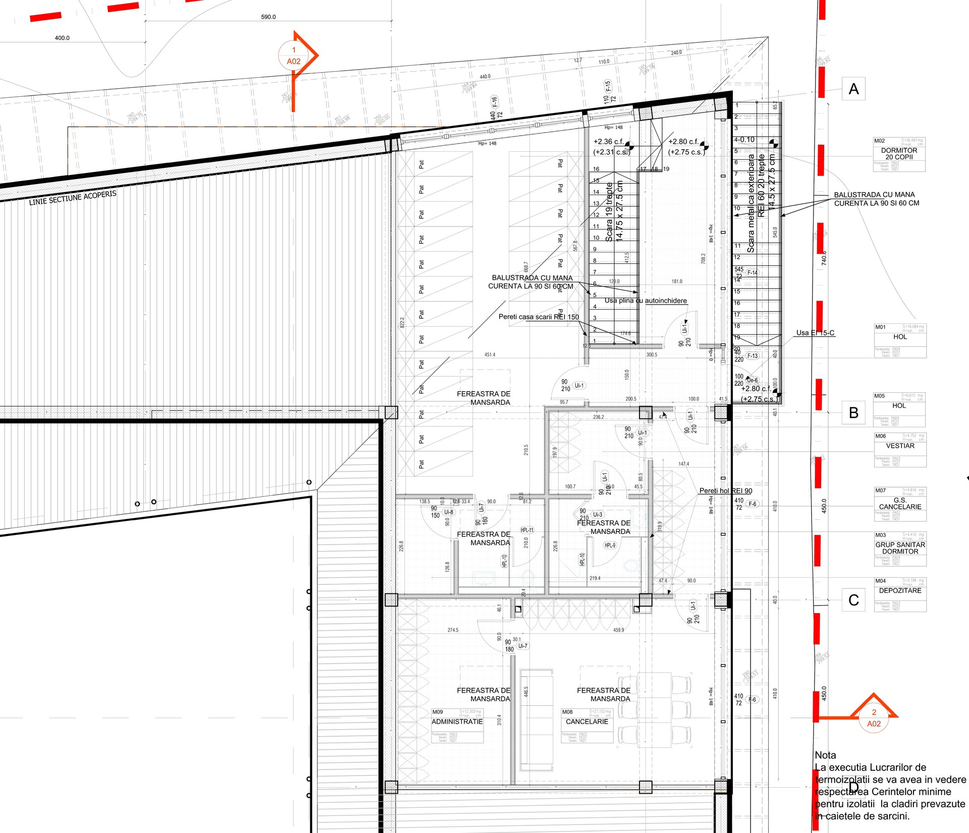
Edificiul a fost proiectat cu grija pentru a găzdui și îngriji o comunitate de maxim 60 de copii cu vârste între 3 și 6 ani, distribuiți în trei grupe distincte. În plus, pentru a răspunde nevoii de felxibilitate pentru părinți, este implementat un program prelungit pentru un număr de până la 20 de copii.