
Comentariul autorului:
Proiectul a început cu un teren în Constanţa care prezintă două avantaje majore – amplasarea la 50m de plajă şi vedere neobstrucţionată către mare spre sud. Pe teren se află o locuinţă cu etaj care a suferit multiple modificări estetice în ultimii 20 de ani.
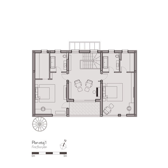
Soluţia de arhitectură a pornit de la păstrarea volumului iniţial, dar cu simplificarea geometriei existente şi cu supraetajare parţială. Imaginea rezultată este mai simplă, modestă, cu influenţe mediteraneene şi cu o atenţie deosebită dată detaliilor constructive. Etajul nou este retras de la toate cele patru laturi pentru a nu contribui considerabil la masivitatea construcţiei. Cu retragerea cea mai mare către sud, acesta este imperceptibil de la parter.
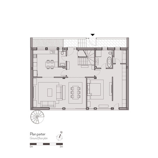
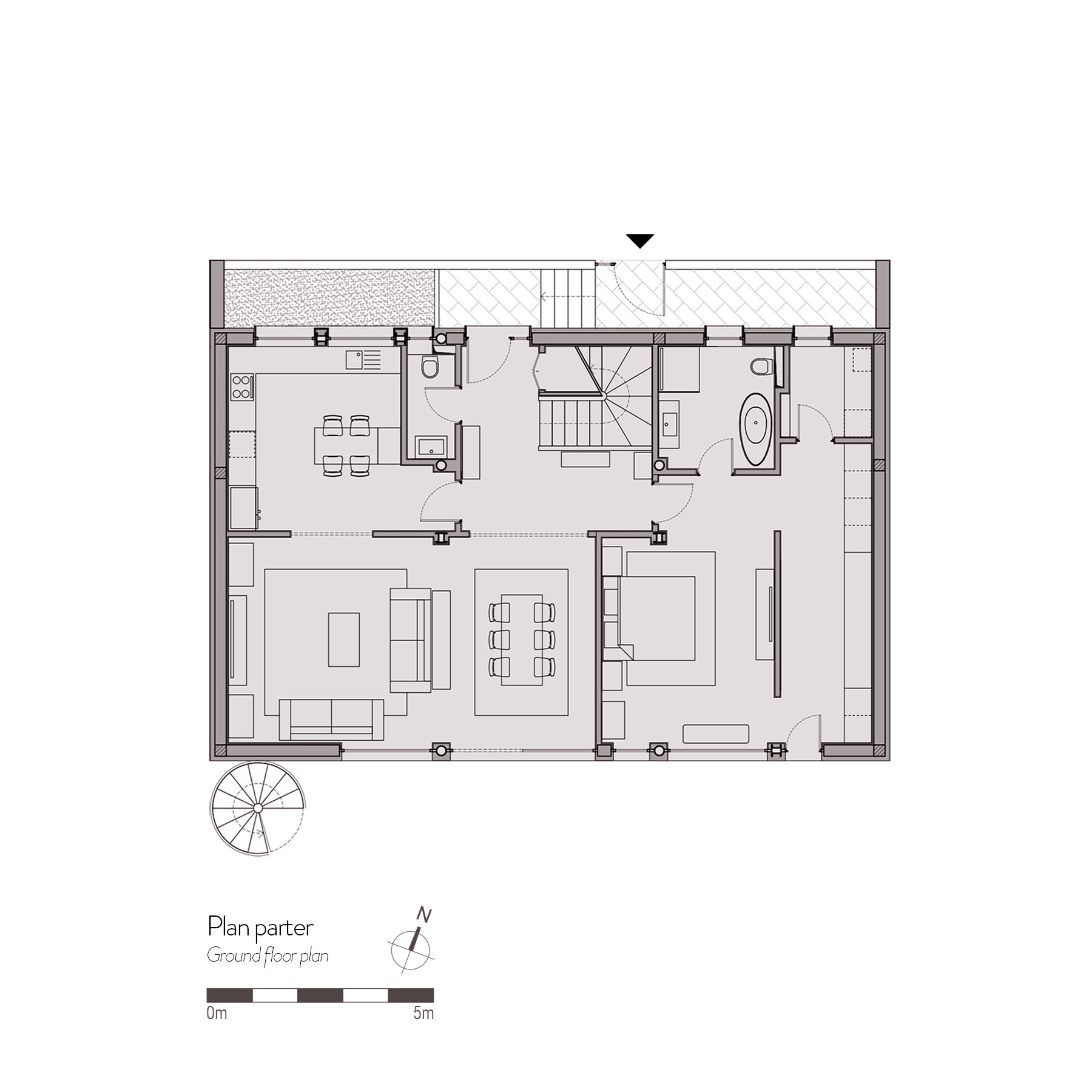
Funcţional, locuinţa este structurată orizontal pe două direcţii – spre nord, către stradă, sunt orientare toate spaţiile secundare, cu ferestre de dimensiuni mici; spre sud sunt orientate toate camerele de locuit, care au ferestre de dimensiuni mari şi vedere spre mare.
Etajul 2, cu acces separat pe o scară elicoidală exterioară nouă, deserveşte un studio cu terasă şi ferestre generoase, cu vedere spectaculoasa către mare, plaje si silueta oraşului.
Elementele de arhitectură au fost proiectate în detaliu, precum scara elicoidală, uşa principală de lemn şi balustradele. Atenţie deosebită a fost dată şi amenajării grădinii şi teraselor, cu detalii precum pavajele în dale, duşul exterior şi mobilierul proiectat.
Grădina este un spaţiu intim datorită elevaţiei de 2m dinspre spatele terenului, unde se învecinează cu o alee cu acces secundar către plajă. Arbuştii plantaţi perimetral vor creea în timp un filtru vizual către proprietăţile învecinate, iar plantele căţărătoare vor acapara calcanului dinspre vest. Singurul arbore existent iniţial pe teren a fost păstrat, deşi obstrucţionează parţial vederea către sud.
Amenajarea interioară contrastează cu simplitatea exteriorul deoarece s-a optat pentru o imagine mai clasică, cu influenţe ale stilului colonial spaniol, regăsit în elemente precum balustrada, finisajele, sau uşile mari vitrate din lemn.