
Comentariul autorului:
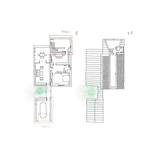
Principalele obiecte al intervențiilor a fost extinderea casei prin etapizare. Intenția sincera al conceptului se bazează creând armonie între casa existentă și contextul urban.
Ca element structural, am propus lemnul ca utilizare locală a materialelor constructiv, care este, de asemenea, o reflectare a cunoștințelor locale de prelucrare a lemnului. Extinderea din spate și cel lateral face legătură cu terasă care este un spațiu deschis acoperit. Profitând de panorama, casa se află în centrul orașului Gheorgheni, și întră în contact direct cu livadă din spatele curți.