
Comentariul autorului:
Clădirea secession a fost construită între 1900-1902 de avocatul Béla Bocskor cu meșteri italieni în stil secession austriac. Familia Bocskor a fost aspru criticată de contemporani pentru mărimea casei locuită doar de ei, fără copii, și servitori. De la început clădirea a prezentat numeroase proleme structurale, de igrasie, infiltrații de apă la acoperiș, degradarea fațadei. În jurul anului 1920 clădirea ajunge în posesia unei bănci locale, după care este cumpărată de dr. Félix Daradics. Prin anii 1950 a fost naționalizată, și a avut funcțiunea de miliție, fabrică de confecții, școală generală și școală populară de artă. În 2009 ajunge la urmașii de drept, și a fost nefolosită până în prezent. Cumpărată de Fundația pentru Școală din Cluj, a fost amenajată cu funcțiunea de birouri pentru diferite organizații și fundații locale.
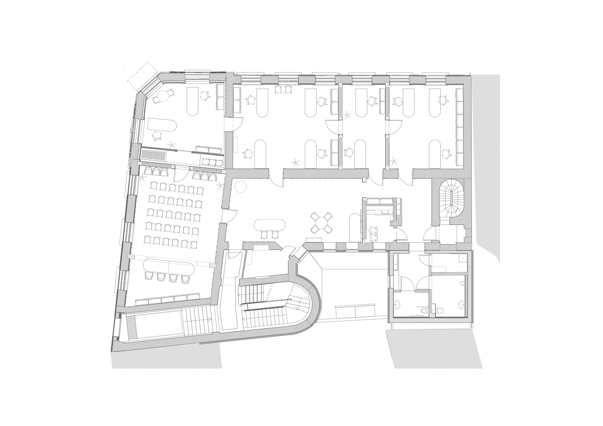
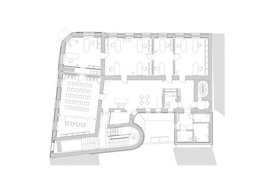
Construcția face parte intergrantă din centrul istoric al orașului conturat la începutul secolului XX. Situată la intersecție de străzi, cu o volumetrie care răspunde la această situație și la perspectivele de-a lungul străzilor, avem de a face cu o clădire bine integrată în ansamblu. Așa zisa zonă de turn de la sud-est domină împrejurimile, este într-o armonie compozițională cu fațadele principale, și în dialog cu celelalte clădiri vecine definitorii pentru zonă.
Semnele evidente ale secesiunii sunt reliefele de frunze care s-au regăsit parțial pe fațada sudică și florile de mac cu bobocii pe colțurile cele mai expuse spre stradă (sud-est), realizate din ipsos. S-au reconstituit decorațiunile din ipsos pe cele două fațade principale. Alte elemente secession sunt grilajele și balustradele din fier forjat, care s-au regăsit într-o stare geometrică acceptabilă. Ele au fost restaurate, unele reconstituite. Tâmplăriile exterioare (ușa principală de acces, ferestrele la fațadele principale) erau încă originale, într-o stare de degradare avansată. Ele s-au schimbat cu unele noi, identice, realizate cu geam dublu termopan spre interior. Ancadramentele, și celelalta decorațiuni din tencuială de pe fațade au fost reconstituite din tencuială pe bază de var. Soclul din piatră aparentă, ulterior tencuită, mai apoi placată cu piatră lipită pe ea, s-a curățat de straturile suprapuse, și s-a realizat o placare pe structură de inox, care permite aerisirea ei. Racordurile de gaz și electrice au fost înglobate în soclu. Învelitoarea existentă din țigle de beton și tablă zincată s-a schimbat cu țigle ceramice solzi și tablă zinc. În podul clădirii s-au găsit bucăți din tinichigeriile decorate și lucarnele de la învalitoarea originală. Ele s-au reconstituit din talbă zinc.
Cromatica fațadei inițiale a fost una simplă: nuanțe de ocru și tâmplării grii. Deasupra casei scării a existat un turn, pe vremuri bine lizibil din mai multe zone ale orașului. Acesta a fost reconstituit după fotografii de epocă, și s-a placat cu plăci de zinc.
În urma studiilor s-a constatat că această clădire nu a fost finalizată în totalitate conform dorințelor probabile ale proprietarului, s-au găsit multe zone tratate superficial sau simplist. Probabil au intervenit probleme financiare, au lipsit unii meșteri și alte probleme. S-a luat decizia de a completa cu soluții tehnice, decorative contemporane unele dintre aceste deficiențe, lipsuri. În același spirit s-a propus o abordare cromatică mai dinamică, de pildă au fost nenumăratele exeple de clădiri secession din Transilvania. Astfel s-a ajuns la propunerea de a zugrăvi fațadele principale în nuanțe foarte deschise de ocru, grii, verzui. Decorațiunile principale unicate în zonă s-au colorat verde deschis. Tâmplăriile au căpătat o nuanță spre auriu.
Din primii ani de existență ale clădirii sunt însemnări cu privire la probleme structurale. S-au înzidit golurile unor ferestre, s-au introdus noi pereți transversali de rigidizare, unele improvizate. Cu ocazia reabilitării s-au consolidat toate planșeele intermediare prin introducerea unor cupoane de lagătură între grinzile metalice ale bolțișoarelor din cărămidă cu armărura din suprabetonare. Pereții zonei de turn la fațada principală au prezentat fisuri, ele s-au cămășuit cu beton armat din interior. S-au desfăcut unele pereți interiori, s-au realizat cadre de rigidizare transversale de beton armat și s-au rezidit pereții de cărămidă.
Clădirea a fost termoizolată la fațadele principale din interior cu plăci de silicat.
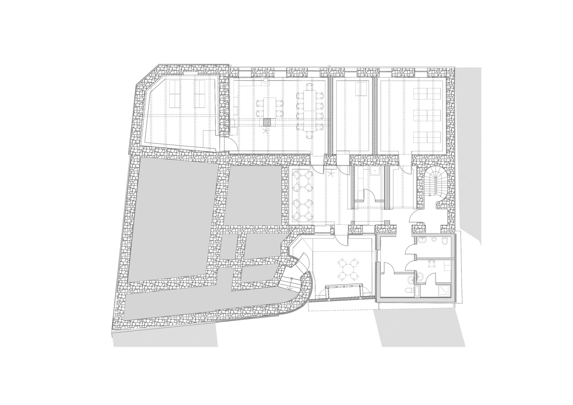
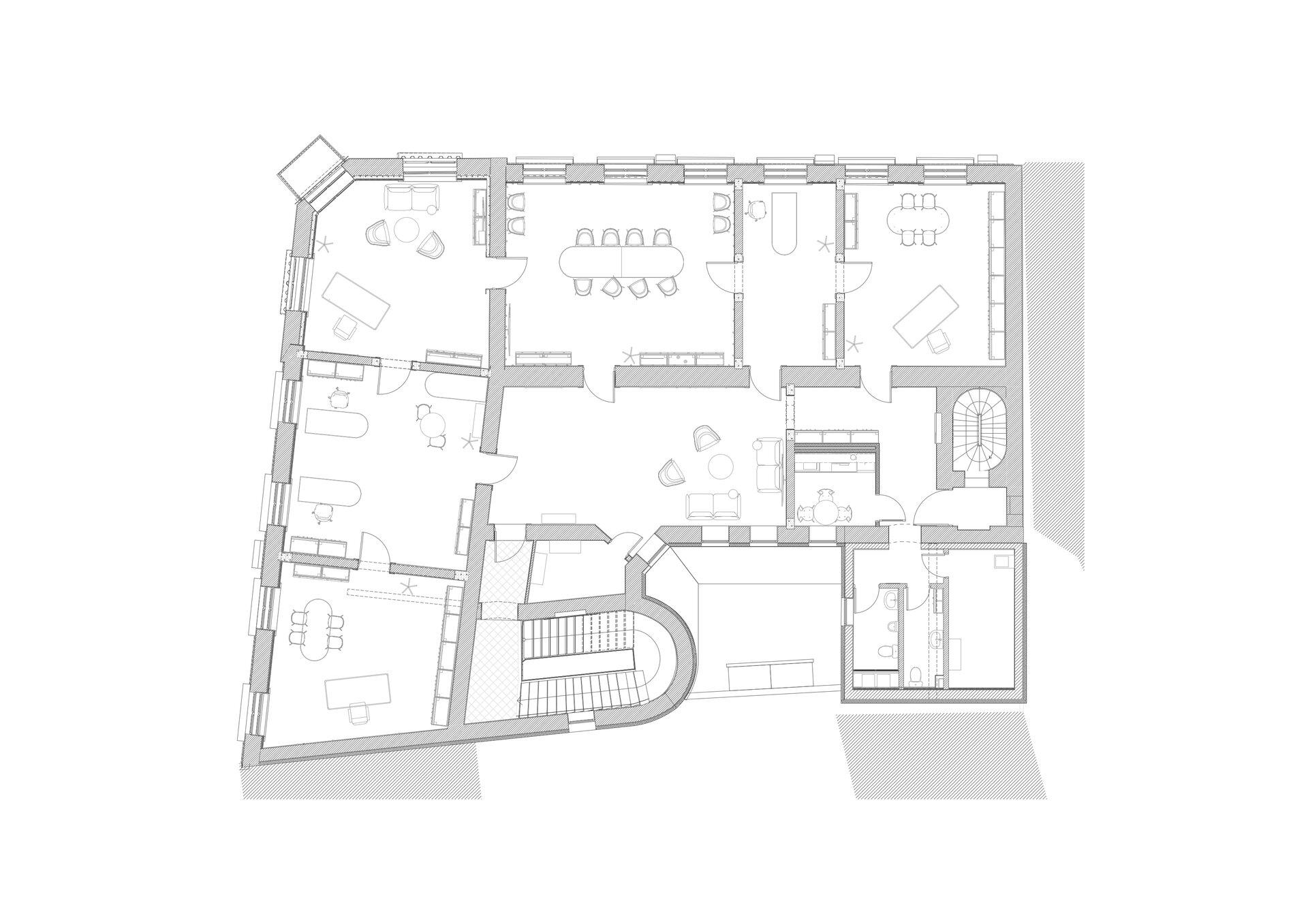
La interior s-au reconstituit ușile cu inserții mici decorative pe toc, semn al intervenției contemporane, în spiritul arhitecturii interioare concepute, și al cromaticii generale ale clădirii. Scările de marmură și piatră originale s-au reabilitat în totalitate. Pe vremuri pardoseala casei scării s-a placat cu plăci tip terrazzo, de culoare ocru, roșu și negru. S-a reușit salvarea câtorva dintre aceste plăci, și după restaurarea lor s-a refăcut pardoseala de la etaj. În restul casei scării principale s-a placate cu plăci tip terrazzo noi, unicat, de culoare deschisă grii și alb, și inserții de auriu. Restul pardoselilor sunt placate cu piatră locală și parchet stejar.
Pentru decorarea pereților interioare s-a apelat la un finisaj foarte discret realizat din semigloburi de Ipsos (ca și la fațada principală), șipci de lemn, tapet permeabil la vapori, majoritatea în culoare uni alb spre ocru. Pe locul ferestrei de la casa scării principale înzidite din considrente structurale, o fostă priveliște spre munții Harghita care a fost opturată în anii 1970 de institutul de proiectare având 5 ivele, s-a realizat de către artist plastic Ráduly Margit un placaj ceramic contemporan.
La demisol, abordarea a fost diferită față de parter și etaj. Având în vedere funcțiunile complementare birourilor și necesitatea ca pereții și planșeele să rămână permeabile la vapori, s-au curățat toate suprafețele de finisajele suprapuse în timp. Ele au rămas lizibile, sau au fost aplicate placaje îndepărtate de ele. S-au realizat nișe cu pietriș între pereți și pardoseli.
Am avut ocazia să proiectăm mobilierul întregii clădiri, cu piese unicat, discrete, în spiritul abordării de ansamblu al reabilitării.