
Comentariul autorului:
Arhitectura joacă un rol cheie fundamental în dezvoltarea și menținerea spiritului comunitar activ. Cel mai recent astfel de exemplu în acest sens fiind cartierul Piața Amzei, unde redarea unei clădiri istorice de importanță majoră culturală înapoi comunității poate reinventa și revitaliza comunitatea și viața activă din cartier, dar și regenera totodată țesutul urban.
Tema lucrării face parte dintr-o cercetare personală mai amplă ce s-a născut din nevoia de cunoaștere și înțelegere a unor aspecte specifice ale fenomenului de apartenență la comunitate. Nu întâmplător această nevoie se suprapune cu apartenența la un spațiu, la un loc, cele două influențându-se una pe alta definitoriu. Această nevoie de apartenență a generat căutările iniţiale și mai apoi proiectul de diplomă, al cărui intenție nu este deloc întâmplătoare. Aici, în cartierul Dacia-Eminescu, unde propun un centru comunitar pentru tineri, a început pentru mine o perioadă ce avea să fie una de descoperire a orașului, în toate nuanțele lui. Ideea de un loc al meu și de un oraș al nostru au început să se contureze și sa aibă din ce în ce mai multă însemnătate, atât personal cât și profesional.
Atunci când „acasă” a devenit un alt cartier, mult mai închegat și strâns decât cel din Dacia - Eminescu, am înțeles că ceva lipsește acelei comunități, poate însăși comunitatea. Cu siguranță și ceilalți locuitori simt aceasta nevoie, dar lipsa unor spații special dedicate, create sau amenajate în acest sens afectează calitatea locuirii din zonă.
În acest sens, amplasamentul și tema proiectului de diplomă s-au ales reciproc într-un mod firesc, în perspectiva mea. Cred că acest cartier este plin de esență și merită repus în lumină, acest lucru fiind imposibil fără intervenții urbane atent puse în scena comunității, unde actori sunt locuitorii și nu numai. În acest mod se creează noi centre de interes cultural și social care animă peisajul urban al orașului.
Centrul istoric extins al orașului București are încă aceasta putere revitalizantă, de care trebuie să ținem cont și să o speculăm, măcar acum în al doisprezecelea ceas, dacă ne asumăm acest lucru, noi ca locuitori și noi ca profesioniști.
Toate schimbările de paradigmă din ultimele decenii cauzate de evoluție, dar și de ultimul strat de istorie ce s-a așezat peste România au dus împreună la un impas în ceea ce privește identificarea reală a valorilor cu adevărat importante de către populație și chiar și autorități. Identitatea este pierduta, la fel ca semnificația și în mod evident, apartenența. Individul, în special după o viață trăită în comunism, nu știe să mai apeleze la cultura locală, la tradiție sau la istoria sa reală. Deceniile de socialism manifestate prin demolări, edificări de forme fără fond și ascunderea trecutului au creat, în timp, oameni ce nu mai știu să locuiască în comunități reale și care nu își cunosc identitatea orașului.
Arhitectura este poate cel mai important instrument de a aduce aminte, de a spune o poveste și de a aparține. Folosind acest instrument în vederea renașterii comunității și a identității locale poate fi cheia în situația actuală a Bucureștiului. Spațiul public necesită revitalizare și proiecte de calitate care să genereze comunitate în jurul lor, deci apartenentă. Altfel, putem schimba imaginea orașului și reface puzzle-ul de mult stricat.
De-a lungul veacurilor în care acest oraș s-a format, existența atâtor comunități foarte închegate a generat, în fapt, orașul, acesta formând la rândul său apoi, o altă parte din comunitățile sale, existând o relație de interdependență între cele două. Comunitățile și-au format în acest fel propriile seturi de valori, creând astfel o anumită identitate, un specific, o semnificație. Este important să înțelegem cum, făcând rabat de la acestea, calitatea locuirii are de suferit drastic, deci și viața în sine.
Recenta restaurare a celebrei Case Mița Biciclista și redarea ei comunității din cartierul Amzei ne arată cum patrimoniul construit, dar și arhitectura, în general, precum și bunele practici pot recupera dorința de comunitate și regenera sentimentul de apartenență. Sunt necesare centre comunitare care să educe și să readucă locuitorii în spațiul public. Mai multe clădiri redate comunității sau construite special cu funcțiuni care sa o deservească, precum și măsuri de repietonalizare a străzilor și redarea spațiului public înapoi oamenilor pot rezolva situația actuală complicată a Bucureștiului, sau măcar să declanșeze un proces de reformă în acest sens.
În ceea ce privește segmentul aflat între Piața Gemeni și Calea Moșilor a Bulevardului Dacia, un astfel de centru comunitar care să trezească interesul locuitorilor pentru comunitatea din care fac parte, să sporească calitatea vieții din spațiul public și nu numai și să renască identitatea și aparența oamenilor din zonă poate fi cheia și o perspectivă de dezvoltare pe mai departe în vederea păstrării și salvării patrimoniului construit și a identității locale.
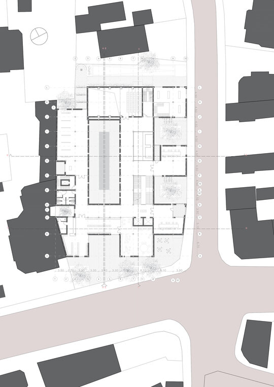
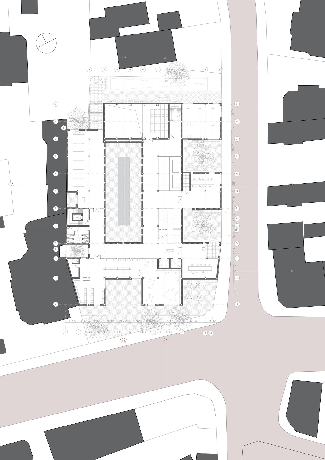
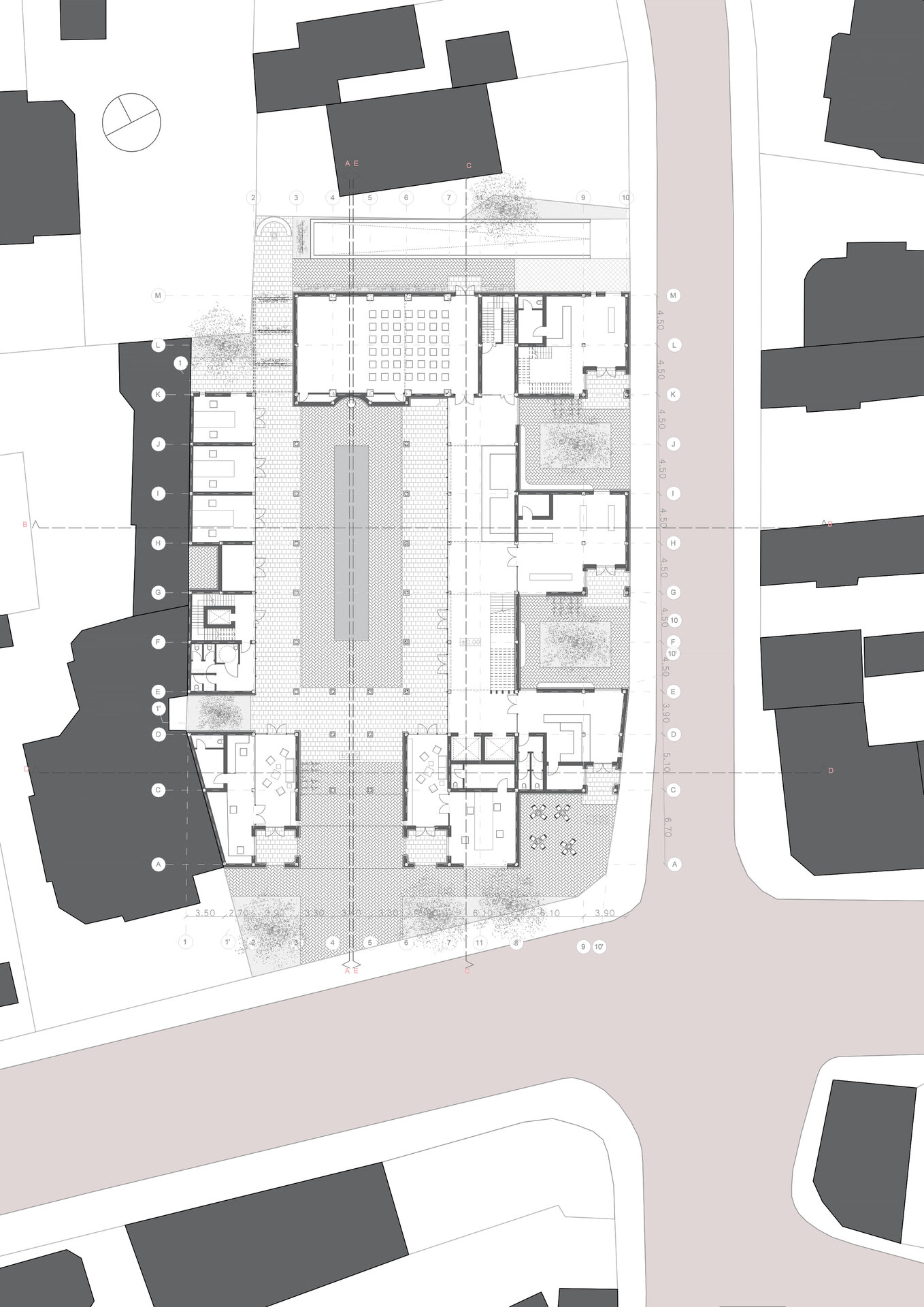
Acest set de concluzii m-a ajutat în demersul realizării proiectului de diplomă, în primul rând la nivel de intenție și căutări personale, dar și în ceea ce privește modul de abordare a soluției de arhitectură. Programul și amplasamentul s-au ales cumva unul pe celălalt, în sensul în care am simțit cum comunitatea din acest cartier este dezbinată și în nevoie de un element catalizator. Astfel, propun edificarea unui centru comunitar pentru tineri pe Bulevardul Dacia, colț cu strada Toamnei, care să funcționeze ca un magnet pentru toate categoriile de vârstă, nu doar pentru cei mai mici, similar cu situațiile prezentate în analiza exemplelor.
În ceea ce privește volumul, demersul a plecat de la studiul tipologiei, tocmai pentru a face trimitere la identitatea locală și la semnificația locului și arhitecturii din zonă, propunând un pas urban, asemănător cu cel format de casele vagon de pe strada Toamnei, dar un front pe cât de închis la bulevard, specific acestuia.
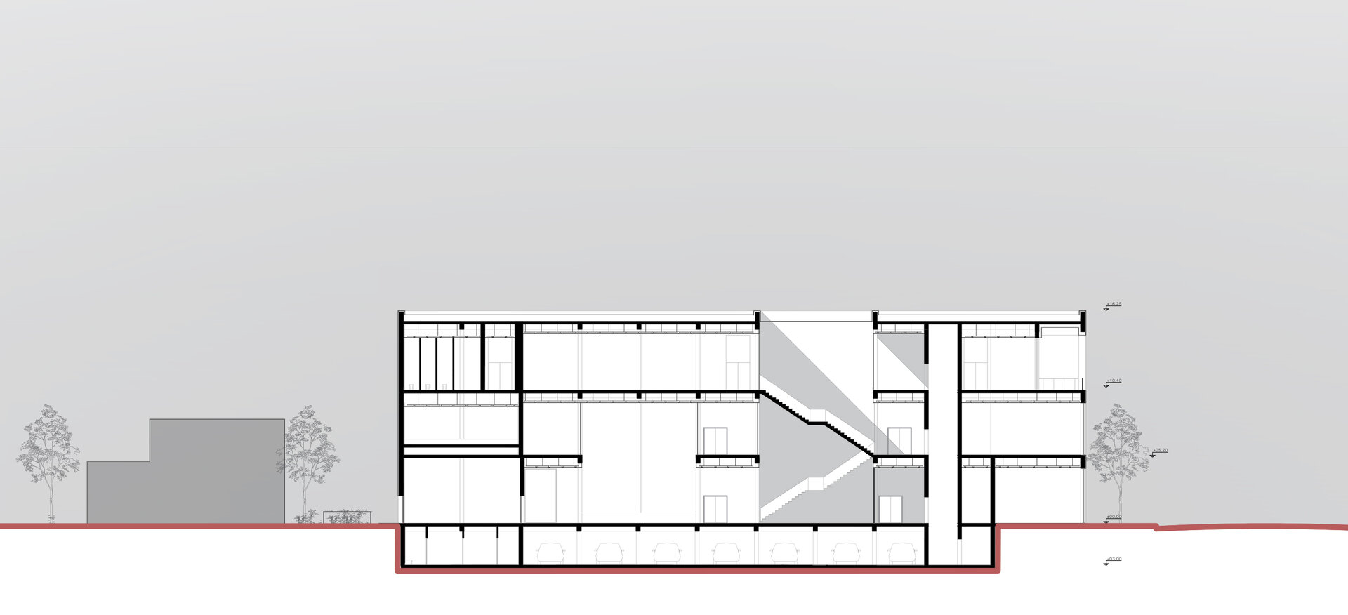
Intenția generală este de a crea astfel un obiect perfect încadrat în context, dar care să genereze interes prin prisma noutății sale, reprezentând un pretext pentru întâlnire pentru locuitorii din cadrul comunității. În acest fel, aceștia, mai ales tinerii, vor deveni mult mai conștienți de cadrul urban în care își duc viața, dar vor beneficia și de spațiu public de calitate, care va genera după sine schimbări. Funcțiunile cuprinse de centru sunt diverse: spaţii dedicate pentru workshopuri, o sală multifuncțională, bibliotecă și sală de lectură şi co-working, spații comerciale sau de închiriat pentru mici birouri, precum şi spaţii exterioare generoase. Poate cel mai special spaţiu al centrului este nu întâmplator unul exterior, și anume curtea interioară delimitată de portic. Datorită funcţiunii alese, am luat decizia de a pastra indicii urbanistici mai scăzuți decât poate în cazul unui program de locuire colectivă, unde înălţimile de nivel sunt mai mici şi numărul de etaje mult mai mare. Astfel, am încercat să încadrez propunerea în context într-un mod mai puţin intruziv din acest punct de vedere, sporind spaţiile exterioare şi calitatea spaţiului prin aceste treceri de la interior la exterior. Folosindu-mă în acest fel de teren, ramânând practic needificat dar în acelaşi timp utilizat, am reuşit să creez un spaţiul accesibil pentru întreaga comunitate, care în acelaşi timp trimite prin formă şi esență către timpuri uitate şi care educă tânara generaţie prin arhitectură şi spaţiu de calitate.