
Comentariul autorului:
Amplasat intr-un tesut edificat cu imobile repetitive si terne(blocuri P+8), proiectul se doreste o rezolvare arhitecturala minimalista adaptata functiunii publice de invatamant superior - Facultatea de Farmacie.
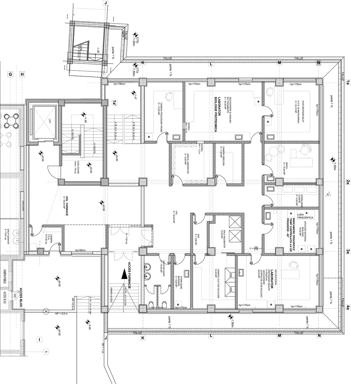
Conceptul s-a realizat pornindu-se de la efervescenta reactiilor ce au fost materializate in plastica de fatada prin goluri amplasate si bordate arhitectural brownian. Cladirea are demisol, parter si 3 etaje, cuprinde functiuni de laboratoare, birouri, vestiare, sali de clasa, spatii anexa, casa scarii, cu o suprafata construita de 2290 mp.
Proiectul a urmarit individualizarea si evidentierea volumului cladirii in dialog cu imaginea de ansamblu a zonei inconjuratoare, iar la interior prin colorit si finisaje realizarea unor spatii luminoase, optimiste, tineresti si pretabile functiunii de invatamant.