
Comentariul autorului:
Centrul comercial Mercur a jucat de la bun inceput, din 1973, un rol esențial la nivelul orasului, si nu numai, atât in spațiul social, comercial, cât și cel construit. Insa,
după 1990 a început un proces lent de degradare, care s-a incercat a se incetini printr-o serie de intervenții de cosmetizare, superficială, in anii 2000, care nu au raspuns exigentelor comerciale. Astfel, acesta, a intrat intr-un proces accelerat de degradare, care a condus la “depopulare” si “abandon” atât in ceea ce-i privește pe chiriași, aceștia relocandu-și afacerile, cât și în conștiința locuitorilor.Însă, In acest interval de 20 de ani de fractură, centrul
comercial Mercur a reușit să - și păstreze statutul de reper in memoria afectivă a locuitorilor.
“Agățându-ne” de acest atu, al memoriei afective, prin soluția realizată, am incercat, o reacție “de soc” printr-o intervenție de “resuscitare” pe toate planurile: social, cultural, comercial, prin reactivarea lui ca element de continuitate si noutate.
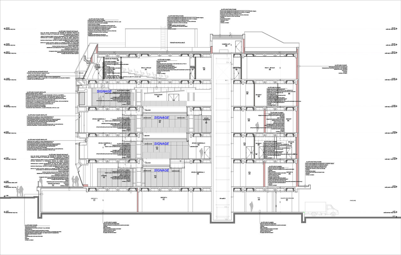
provocare: refacerea integrală a instalațiilor conform
normelor in vigoare
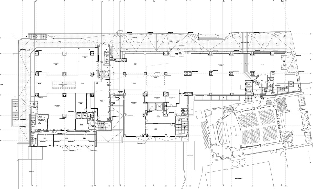
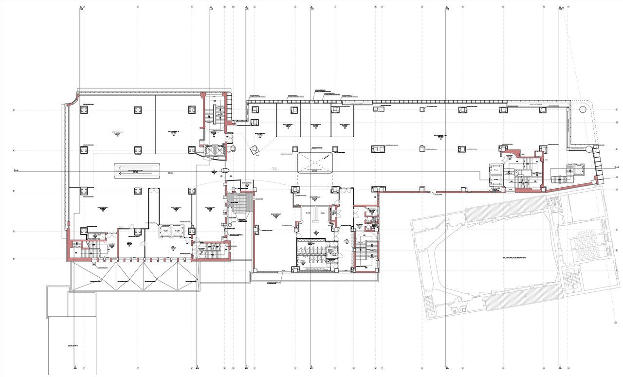
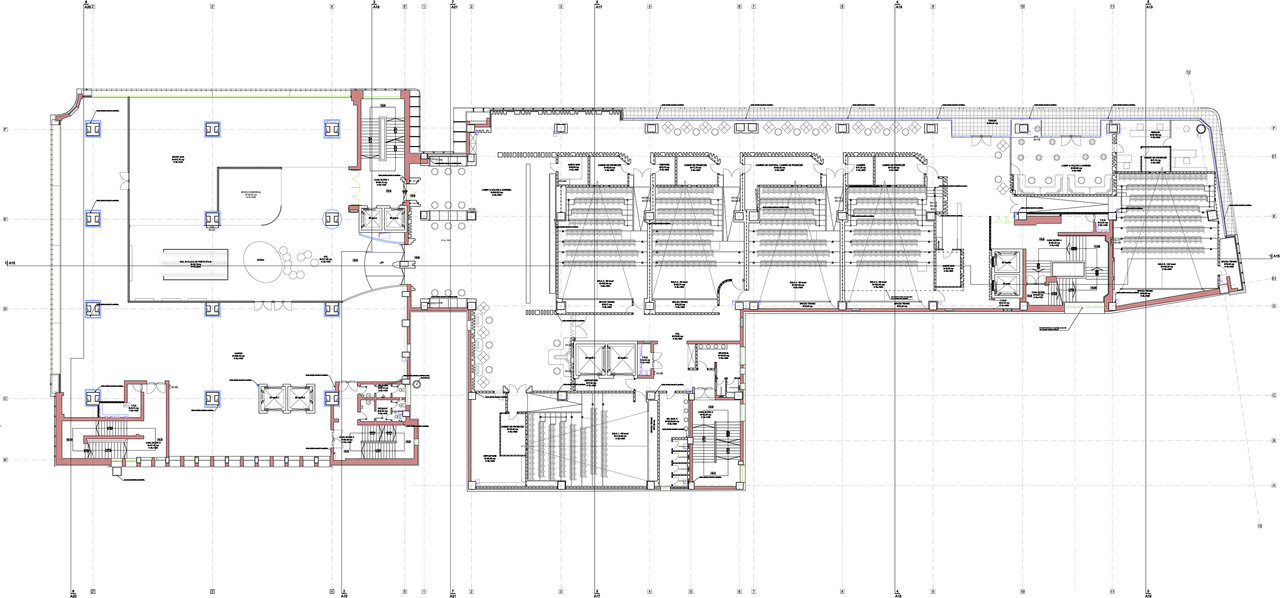
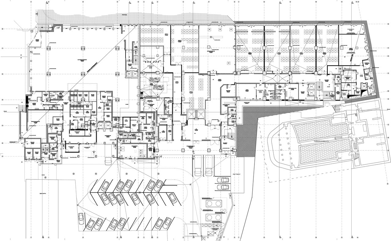
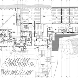
provocare: realizarea de noi circulații verticale în
structura existentă a clădirii
provocare: timpul de proiectare și implementare
proiect 6 luni
provocare: interacțiunea dintre autorități, arhitect
și beneficiar
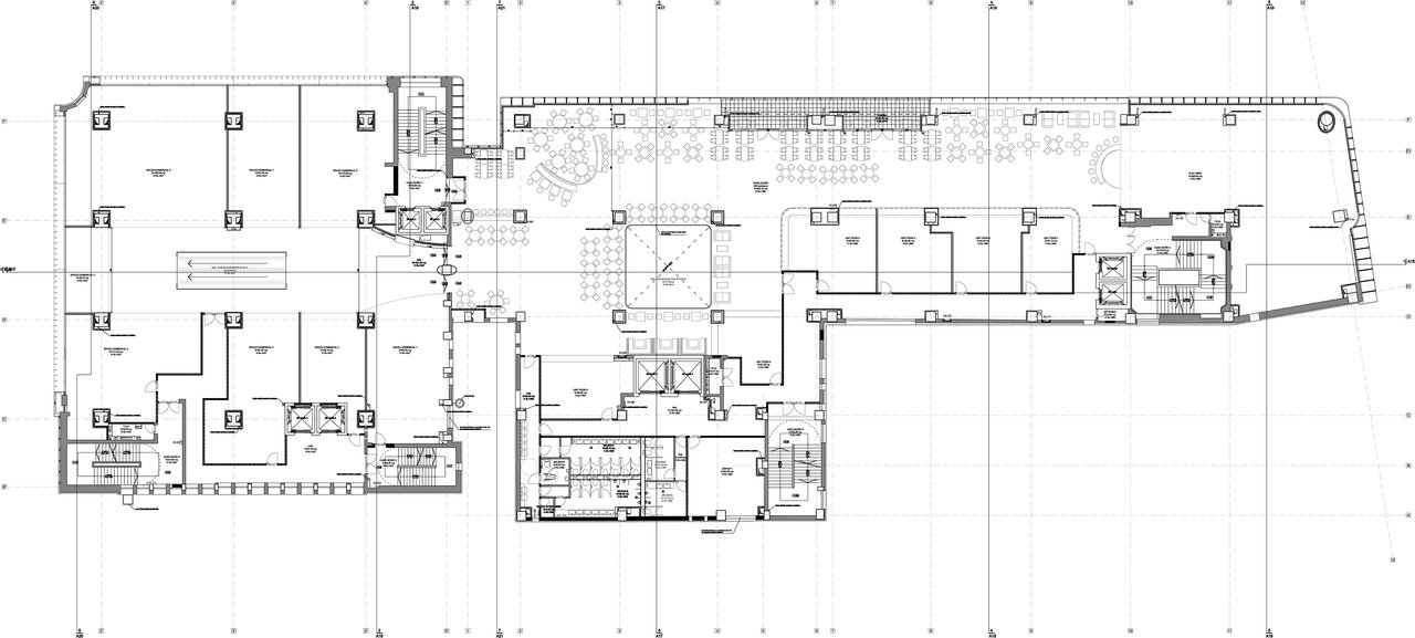
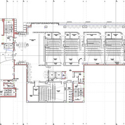
provocare: reconfigurarea spațiului interior pentru a
raspunde noilor cerințe comerciale/ de marketing
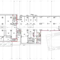
provocare: implementarea unui sistem de fațadă ventilată
pe o structura existentă, care să ajute la sporirea
eficienței energetice a clădirii
provocare: reorganizarea spațiilor de depozitare și
a spațiilor tehnice
provocare: remodelarea fațadelor
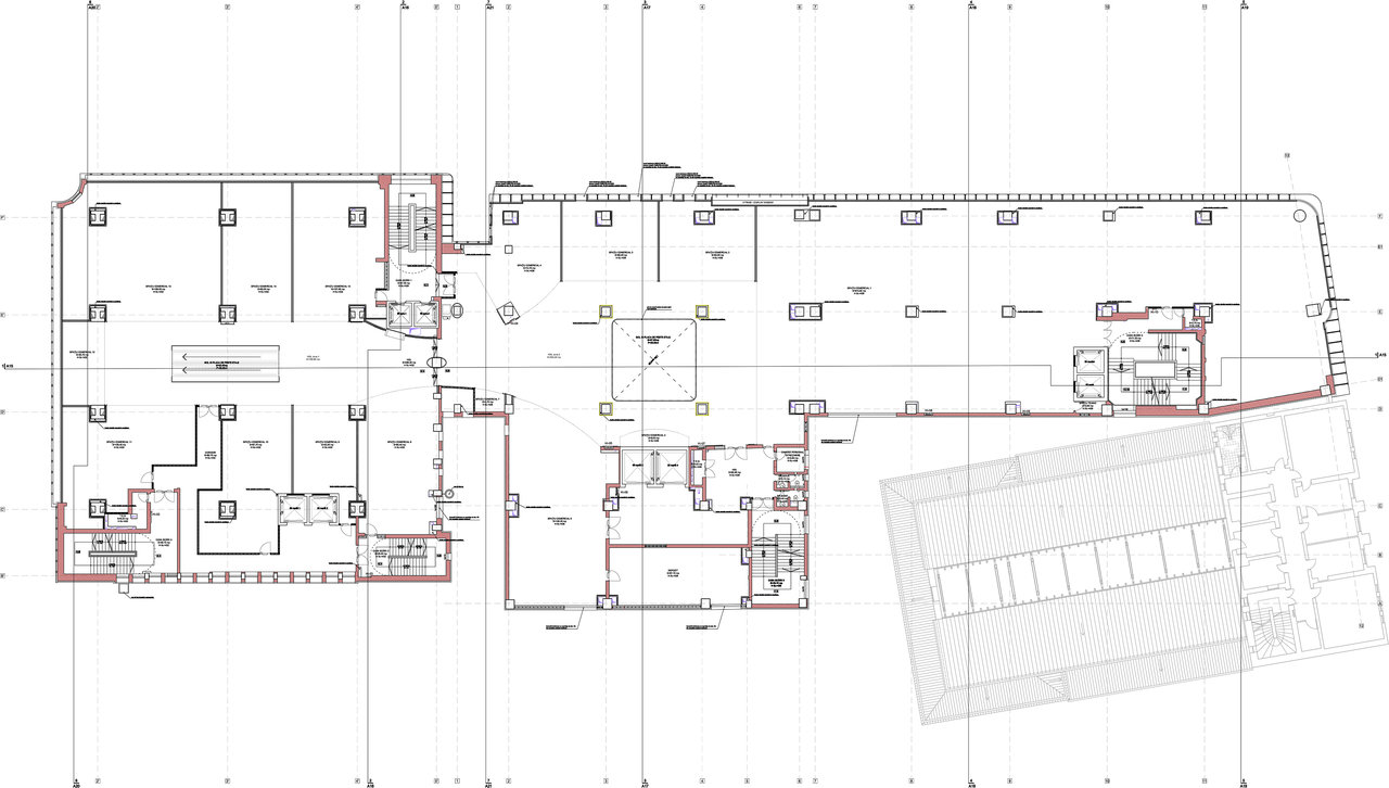
provocare: mutarea accesului de pe latura de est
a clădirii pe la latura de nord, intervenție impusă
de solutiile de marketing
provocare : realizarea comunicării spațiale între nivele
prin realizarea unor goluri prin planșeele de la
etajul 1/ etajul 2/ etajul 3