
Comentariul autorului:
Proiectul este amplasat într-unul dintre cartierele limitrofe ale orașului Timișoara, într-o zonă nou construită cu un caracter eterogen, atât din punctul de vedere al volumelor construite, al aliniamentului acestora cât și al culorilor folosite. Am ales astfel să propunem o volumetrie doar în alb și negru.
Voumetria aleasă are un rol dublu, acela de a pune în evidență soluția în contextul amintit dar și de a ascunde dinspre stradă și exterior spațiul privat, atât cel interior cât și al curții. Culoarea ALBĂ pune în evidență dinamica orizontal/verticală a volumetriei pe când NEGRUL are rolul de a lărgi vizual deschiderile și de a accentua prezența golurilor.
Fațadele casei au o dinamică diferită, în relație cu punctele cardinale către care acestea se raportează. Fațada principală aflată la stradă și orientată spre est accentuează mișcarea orizontală a volumelor, preluând dinamica străzii. Înspre sud, fațada are retrageri pronunțate ale volumelor majore, pentru a oferi spațiilor interioare cât mai multă lumină directă. Spre vest fațada devine mai statică, mult vitrată, deschizând vederea dinspre interior spre curte, spațiul destinat relaxarii și piscină. Fațada nordică este mai închisă, cu volume mai fragmentate, având o serie de fante înguste care introduc în spațiul central lumină indirectă.
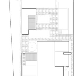
Toate traseele de mișcare, atât cele orizontale cât și cele verticale se întâlnesc în camera de zi a casei care le ordonează, asemenea unui adevărat centru direcțional. Spațiul central controlează de asemenea și ambientul, fiind astfel creat încât să faciliteze circulația naturală a curenților de aer. Spațiul înalt al scării permite acest lucru, eliminând aerul cald pe latura de nord, desupra camerei de zi.
Etajul este conceput sub forma a două zone private, una destinată dormitorului matrimonial și anexelor sale și o alta formată din camerele copiilor. Acestea sunt separate de o pasarelă care controlează vizual zona de zi.
Curtea aflată în spate are două zone, una preponderent minerală, aflată în apropierea casei, compusă dintr-un spațiu de relaxare detasat de volumul locuinței și piscina aflată în zona însorită și alta amenajată peisajer înspre spatele curții.