
Comentariul autorului:
Locuinta este amplasata in sudul orasului, int-o zona caracterizata de parcele dimensiuni reduse si adancime mare comparativ cu deschiderea la strada. Organizarea liniara a functiunilor este determinata de amprenta terenului. Dimensiunile ce se inscriu in media zonei contrasteaza cu simplitatea volumului si tratarea omogena a fatadelor acestuia. Locuinta a fost dezvoltata pornind de la ideea de eficienta energetica maxima ( atat in exploatare cat si ca proces constructiv, materiale) si durata de executie minima.
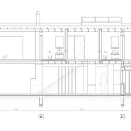
Constructia este realizata din panouri prefabricate din cherestea, stalpi si grinzi din lemn asamblate pe suportul conferit de fundatii si de placa de parter din beton armat.
Izolatia inserata in panouri, stratul termoizolant exterior continuu si fatada ventilata in combinatie cu dimensiunea golurilor si vitrajul triplu si protectia solara exterioara(jaluzele din aluminiu) asigura o eficienta termica extrem de ridicata. In plus instalatia de incalzire interconecteaza o centrala termica clasica cu un sistem solar de incalzire al apei calde menajere si cu un semineu capabil sa prepare agent termic.
Etanseitatea este asigurata de o membrana exterioara climatica permeabila unidirectional la vapori, rezistenta UV precum si de o membrana de vapori continua integrata panourilor montata la interior. Placajul ventilat exterior este realizat din elemente din pin nordic termotratat. Lemnul exterior nu este tratat suplimentar evoluand in timp ( din punct de vedere cromatic- expunere UV) odata cu casa.
Constructia a fost pregatita astfel inact in intervalul aprilie - iulie intreagul ansamblu din elemente de lemn preasamblate in atelier a fost confectionat, transportat in santier si montat pe pozitie, fixat si interconectat prin inchiderea interioara si exterioara cu placi OSB. Elementele au fost debitate si preasamblate in conformitate cu proiectul tehnic, dimensiunile elementelor fiind extrase din modelul structural 3D.