Ediții: 2023 | 2021 | 2018 | 2016 | 2014 | 2012

Extindere Liceu Teoretic „Dante Alighieri”

Autori:
Liviu Marian Fabian, Lucian Marius Luţă
Colaboratori:
Proiectant general : S.C. Vienna Consulting Engineering S.R.L.
Structura : DuctilTech Srl
Instalatii : S.C. Solid Install S.R.L.
Executant : S.C. ACM 4 S.A.
Beneficiar:
Liceul Teoretic "Dante Alighieri"
Localizare:
România, Bucureşti, str. Fuiorului nr. 9 vezi harta
Indicatori:
RH: S+P+2 / Sd: 3900 m2 / Su: 3120 m2 / POT: 27% / CUT: 0.6
Extinderea Liceului Teoretic "Dante Alighieri" a aparut cu scopul de a realiza un centru de invatamant integrat ce sa porneasca de la ciclul primar pana la cel liceal si care sa fie prevazut cu toate tipurile de dotari: spatii de interactiune, dotari de tip after school, de alimentatie publica si dotari sportive.
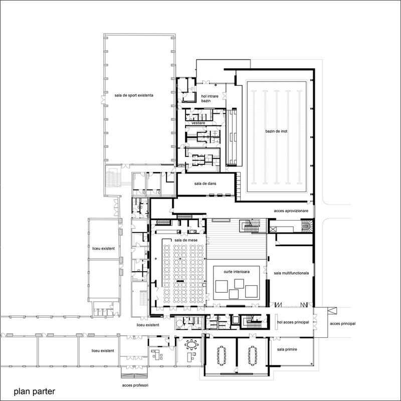
Terenul pe care a fost realizata extinderea, spre latura de sud a liceului, a beneficiat de existenta unui bazin de inot exterior, nefunctional, aflat in stare avansata de degradare. Ideea a fost ca acest bazin sa fie integrat in ansamblul interventiei ca bazin acoperit, iar zona dintre bazin si sala de sport existenta sa fie ocupata de o sala de dans, de vestiare si de alte anexe specifice.
Ansamblul rezultat in urma interventiei poate fi structurat in 4 elemente functionale si compozitionale:
1. Corpul existent al liceului;
2. Spatiile sportive - bazin de inot, sala de dans, anexe;
3. Spatiile educationale - sali de clasa, dotari de tip after school;
4. Spatiile publice – sala multifunctionala, sala de mese, curtea interioara si cele 3 terase.

Curtea interioara este elementul central al interventiei, un spatiu liber care aduna in jurul lui toate cele 4 parti compozitionale. Spatiile publice de la parter, circulatiile din corpul educational, terasa cu pergola de la etajul 2 si sala de dans adiacenta corpului sportiv, sunt deschise spre curtea interioara care devine astfel nucleul centripet al intregii interventii - un loc liber ce se transforma in spatiu de recreatie, care functioneaza ca prelungire a salii de mese si a salii multifunctionale, adiacente intrarii principale.
Corpul ce contine salile de clasa (educational) se remarca prin peretii perforati cu goluri aparent aleatoriu dispuse. Compozitia fatadelor a fost conceputa astfel incat ponderea golurilor sa fie in mod echilibrat repartizata in functie de adancimea camerelor, de suprafata utila si de necesitatile de iluminare si ventilare naturala.
Fatada, ce din exterior pare o carcasa perforata mai mult sau mai putin uniform, capata un alt caracter privita din interior. Fiecare gol patrat surprinde un fragment al curtii inverzite de pe cele doua laturi ale scolii si il trasforma intr-o piesa de puzzle.
Modul in care lumina patrunde, filtrata mai intai de perdeaua de copaci si apoi de fatada cu perforatii, poate deveni un stimulent al imaginatiei si al creativitatii copiilor ce se formeaza in aceste sali de clasa.
Alaturarea cu corpul existent al unitatii de invatamant, cu imagine atat de familiara, amplifica efectul de contrast, dar formeaza si o punte intre cele doua ipostaze, intre cele doua tipuri de abordare, daca privim "textura" corpului extinderii ca pe o interpretare intr-o cheie ludica a fatadelor uniforme, regulate si standardizate ale liceului.

Panouri pentru expoziție

Click pe panouri pentru a le vedea la mărimea orginală (se vor deschide într-o fereastră nouă)